Te Huur KMO unit op bedrijvenpark Steenoven te Malle
€ 1.500
Een pand van CEUSTERS
Favoriet
Jouw zoektocht
Jouw scoretabel voor dit pand
Aan het laden...
Jouw geplande bezichtigingen
Aan het laden...
Overzicht
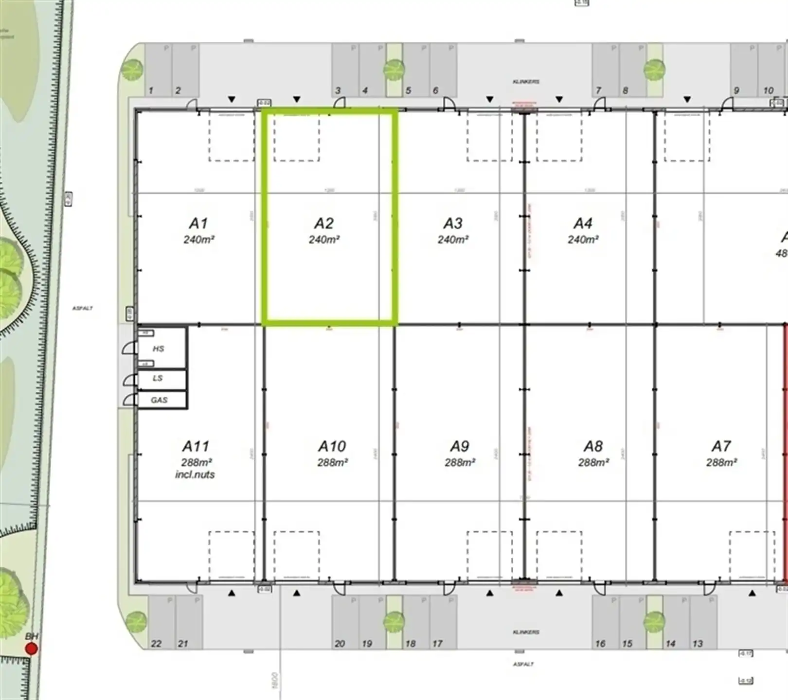
- 240 m² bewoonbaar
Beschrijving
Nieuwbouw polyvalent "state of the art" KMO-unit gelegen in een zijstraat van de Antwerpsesteenweg (N12) te Malle in een groene omgeving en goed bereikbaar vanaf de autostrades E34 Antwerpen-Eindhoven, alsmede de E19 Antwerpen-Breda. Bestemming volgens het vigerende gewestplan: industriezone.
In dit project worden thans 1 KMO units te huur aangeboden. Unit A02(N2).
Technische specificaties:
- Zie lastenboek (op aanvraag beschikbaar)
- 2 parkeerplaatsen
- De bedrijfsunits zijn opgeleverd conform de EPB 2020 normering en zullen bijgevolg zeer milieuvriendelijk zijn.
- De units zijn o.a. voorzien van polybetonvloer, elektrisch bedienbare poort, en raampartij in voorgevel (waardoor mogelijkheid tot het realiseren van een kleinschalige kantoorruimte)
- vrije hoogte ca. 6 meter.
Huurvoorwaarden/bijkomende kosten:
- Huur van gemeen recht. Contract op basis van zgn. 3-6-9 jaar.
- Onroerende voorheffing: ten laste van de huurder.
- Servicekosten (incl. aandeel verzekering gebouw, groenonderhoud en reiniging glaspartijen: maandelijkse provisie indicatief € 125,--)
- Eigen verbruik nutsvoorzieningen: gas, water, elektriciteit, data,...
- De huurprijs zal worden belast met BTW.
Bezoek ter plaatse na telefonische afspraak met uw makelaar.
Energie
- E-peil: E0
- Beglazing: Onbekend
Op de kaart

Financieel
| Prijs | |
|---|---|
| Maandelijkse kosten | € 0 |
| Kadastraal inkomen (niet geïndexeerd) | € 0 |
| Kadastraal inkomen (geïndexeerd) | € 0 |
Bijkomende info
Gebouw
| Bouwcertificaat | Nee |
|---|---|
| Bewoonbaar (m²) | 240 |
| Verdieping | 0 |
| Badkamers | 0 |
| Slaapkamers | 0 |
| Verdiepingen | 0 |
| Garages | 0 |
| Parkeerplaatsen | 0 |
| Doucheruimtes | 0 |
| Toiletten | 0 |
Faciliteiten
| Elektrisch keuringsattest | Nee |
|---|
Perceel
| Overstromingsgevoelig | Geen |
|---|---|
| Voorkeurrecht | Ja |
| Bebouwde oppervlakte (m²) | 0 |
| Tuin oppervlakte (m²) | 0 |
| Oppervlakte terras (m²) | 0 |
Vergunning
| Vergunning | Geen beschikbaar |
|---|---|
| Verkavelingsvergunning | Geen beschikbaar |
Uitrusting
| Investeringspand | Nee |
|---|---|
| Geschikt voor praktijk | Nee |
| Parking | Nee |
| Garage | Nee |
| Thuiskantoor | Nee |
| Kelder | Nee |
| Zolder | Nee |
| Tuin | Nee |
| Terras | Nee |
| Lift | Nee |
| Rioolaansluiting | Nee |
| Gasaansluiting | Nee |
| Wateraansluiting | Nee |
| Elektriciteitsaansluiting | Nee |
| TV aansluiting | Nee |
| Internetaansluiting | Nee |
| Telefoonaansluiting | Nee |
Appartementsblok
| Naam residentie | STEENOVENSTRAAT 2 MALLE |
|---|---|
| Lift | Nee |
Een pand van
CEUSTERS
CEUSTERS
Onze experts in property management en vastgoedadvies stellen een kwalitatieve dienstverlening voorop. Creatief en flexibel gaat ons team op zoek naar kansen en oplossingen voor elke klant. Telkens een stapje verder. Naast onze kantoren in Antwerpen, Gent, Brussel, Hasselt en Rotterdam (Nederland), opereert CEUSTERS vanuit zes andere vestigingen verspreid over heel België. In deze snel veranderende wereld staat ons sterk inzicht in de lokale markt garant voor continuïteit.
STEENOVENSTRAAT 2 MALLE
Leer meer over vastgoed
04 January 2026
Zoek je een kantoor, een magazijn of… iets ertussenin? Bedrijfsvastgoed uitgelegd
05 November 2024
Bedrijfsvastgoed in transitie: ontdek de toekomst van werkplekken
16 October 2024
Opbrengsteigendom: een slim pad naar passief inkomen en vermogensgroei
09 September 2024