Nieuw
Kantoor met zonnige tuin met optie ruime garage
Favoriet
Jouw zoektocht
Jouw scoretabel voor dit pand
Aan het laden...
Jouw geplande bezichtigingen
Aan het laden...
Overzicht
- 210 m² bewoonbaar
- 988 m² grond
- 1 Toilet(ten)
- 4 Garage(s)
Beschrijving
In het hart van Malle bevindt zich dit volledig gerenoveerde handelspand met als mogelijke optie de garage voor 200 euro/maand erbij.
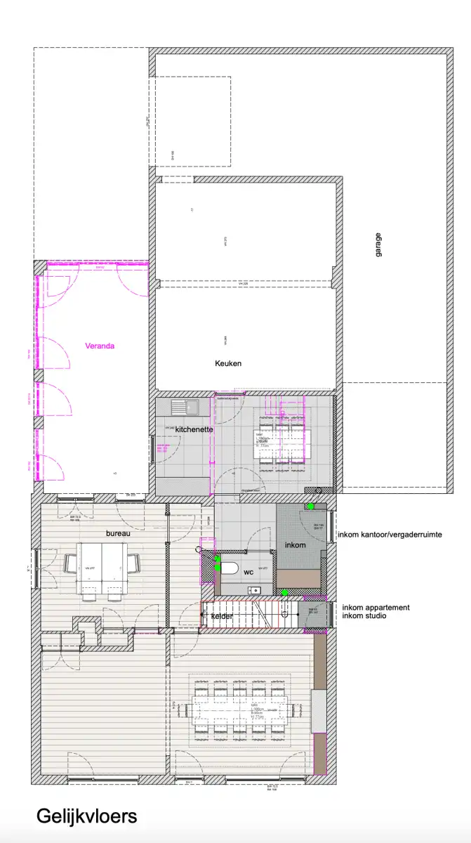
Indeling:
Gelijkvloers handelsruimte met aparte inkom:
Vergaderruimte
Afzonderlijk kantoor
Polyvalente ruimte
keuken
Toilet
Grote zonnige tuin.
Zeer centrale ligging dichtbij hartje Malle.
Technische pluspunten:
Nieuw dak - 18 zonnepanelen - Geïsoleerde muren (met crepi) & vloeren - - Alle leidingen vernieuwd - Oplaadpunt voor elektrisch rijden
EPC: B - Asbestvrij - Centrale verwarming op gas - Elektriciteit conform AREI
Meer info of interesse in een bezoek? Contacteer ons via laila@immodor.be of bel +32 477 30 85 59
Indeling:
Gelijkvloers handelsruimte met aparte inkom:
Vergaderruimte
Afzonderlijk kantoor
Polyvalente ruimte
keuken
Toilet
Grote zonnige tuin.
Zeer centrale ligging dichtbij hartje Malle.
Technische pluspunten:
Nieuw dak - 18 zonnepanelen - Geïsoleerde muren (met crepi) & vloeren - - Alle leidingen vernieuwd - Oplaadpunt voor elektrisch rijden
EPC: B - Asbestvrij - Centrale verwarming op gas - Elektriciteit conform AREI
Meer info of interesse in een bezoek? Contacteer ons via laila@immodor.be of bel +32 477 30 85 59
Energie
![]() |
- Energieverbruik: 151 kWh/m²/jaar
Op de kaart

Financieel
| Prijs |
|---|
Bijkomende info
Gebouw
| Bouwjaar | 1946 |
|---|---|
| Renovatie jaar | 2024 |
| Staat | Zo goed als nieuw |
| Bewoonbaar (m²) | 210 |
| Verdieping | 1 |
| Gevels | 3 |
| Badkamers | 0 |
| Slaapkamers | 0 |
| Garages | 4 |
| Parkeerplaatsen | 0 |
| Toiletten | 1 |
Faciliteiten
| Type vloer | |
|---|---|
| Elektrisch keuringsattest | Ja |
Perceel
| Overstromingsgevoelig | Geen |
|---|---|
| P-score | A |
| G-score | A |
| Voorkeurrecht | Nee |
| Totale oppervlakte (m²) | 988 |
| Bebouwde oppervlakte (m²) | 210 |
| Tuin oppervlakte (m²) | 0 |
| Oriëntatie voorgevel | Zuid |
| Oriëntatie terras | West |
Vergunning
| Vergunning | Vergunning beschikbaar |
|---|---|
| Verkavelingsvergunning | Geen beschikbaar |
Uitrusting
| Geschikt voor praktijk | Ja |
|---|---|
| Parking | Ja |
| Garage | Ja |
| Thuiskantoor | Ja |
| Kelder | Ja |
| Tuin | Nee |
| Terras | Nee |
| Gasaansluiting | Ja |
| Wateraansluiting | Ja |
| Elektriciteitsaansluiting | Ja |
| TV aansluiting | Ja |
| Telefoonaansluiting | Ja |
Leer meer over vastgoed
04 January 2026
Zoek je een kantoor, een magazijn of… iets ertussenin? Bedrijfsvastgoed uitgelegd
05 November 2024
Bedrijfsvastgoed in transitie: ontdek de toekomst van werkplekken
16 October 2024
Opbrengsteigendom: een slim pad naar passief inkomen en vermogensgroei
09 September 2024
