Geleegweg 1, 2610 Wilrijk
Prijs op aanvraag
Een pand van DGI
Jouw zoektocht
Overzicht
Beschrijving
--------
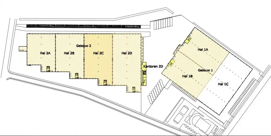
te huur - magazijn (1 unit, 3128 m²)
--------
Dit logistieke complex aan de Geleegweg 1 in Wilrijk biedt een combinatie van opslag en uitstekende bereikbaarheid. Gelegen langs de A12, aan de rand van Antwerpen, positioneert dit gebouw zich op een strategisch knooppunt voor grootschalige distributie.
Hoogtepunten
- Meerdere laadkades aanwezig voor gelijktijdige overslag;
- Strategische ligging direct langs de A12;
- Vlotte verbinding met de E19 op 15 minuten;
- Ruime manoeuvreerruimte voor vrachtverkeer;
- Functionele magazijnruimte voor logistieke activiteiten;
- Nabijheid van de Haven van Antwerpen;
- Gelegen in een gevestigde commerciële en industriële zone.
Locatie & Bereikbaarheid
De site geniet van een ligging op de as Antwerpen-Brussel. Door de directe nabijheid van de A12 en de snelle aansluiting op de E19, optimaliseer je de transporttijden naar zowel de Antwerpse haven als het hinterland. De Geleegweg is specifiek ontsloten voor logistiek verkeer, waardoor de operationele continuïteit gewaarborgd blijft.
Transportoverzicht:
- Toegankelijk via de fietssnelweg F1 (Antwerpen-Mechelen) en lokale routes in Wilrijk;
- Directe ontsluiting via de A12; de oprit naar de E19 bevindt zich op circa 15 minuten rijden;
- Diverse bushaltes op loopafstand met verbindingen naar Antwerpen-Centrum en omliggende gemeenten;
- De Haven van Antwerpen ligt op circa 15-20 minuten; Antwerp Airport (Deurne) op circa 15 minuten.
Het Gebouw
Het complex straalt een professionele en functionele dynamiek uit, passend bij een grootschalige logistieke entiteit.
Indeling & Techniek:
De kern van het gebouw bestaat uit een ruim magazijn dat technisch is uitgerust voor intensief gebruik. De aanwezigheid van verschillende laadkades garandeert een vlotte doorstroming bij het laden en lossen van diverse voertuigtypes. De interne indeling is ontworpen om grote volumes te verwerken, waarbij de vrije hoogte en de vloerbelasting voldoen aan de eisen van moderne logistieke dienstverlening. Dankzij de ruime opzet van de site rondom het gebouw is er voldoende capaciteit voor het aan- en afrijden van zwaar vrachtverkeer, wat de dagelijkse operationele kracht van deze locatie versterkt.
Interesse ?
Dit logistieke complex biedt de noodzakelijke infrastructuur en strategische positionering om je distributie-activiteiten rond Antwerpen te optimaliseren. De combinatie van de ligging langs de A12 en de aanwezige laadfaciliteiten vormt een solide basis voor een efficiënte supply chain.
Neem contact op met DGI voor meer informatie of om een bezichtiging van de site aan de Geleegweg 1 in te plannen.
Energie
Op de kaart

Financieel
| Prijs |
|---|