Semi industrieel
Een pand van CEUSTERS
Overzicht
- 670 m² bewoonbaar
Beschrijving
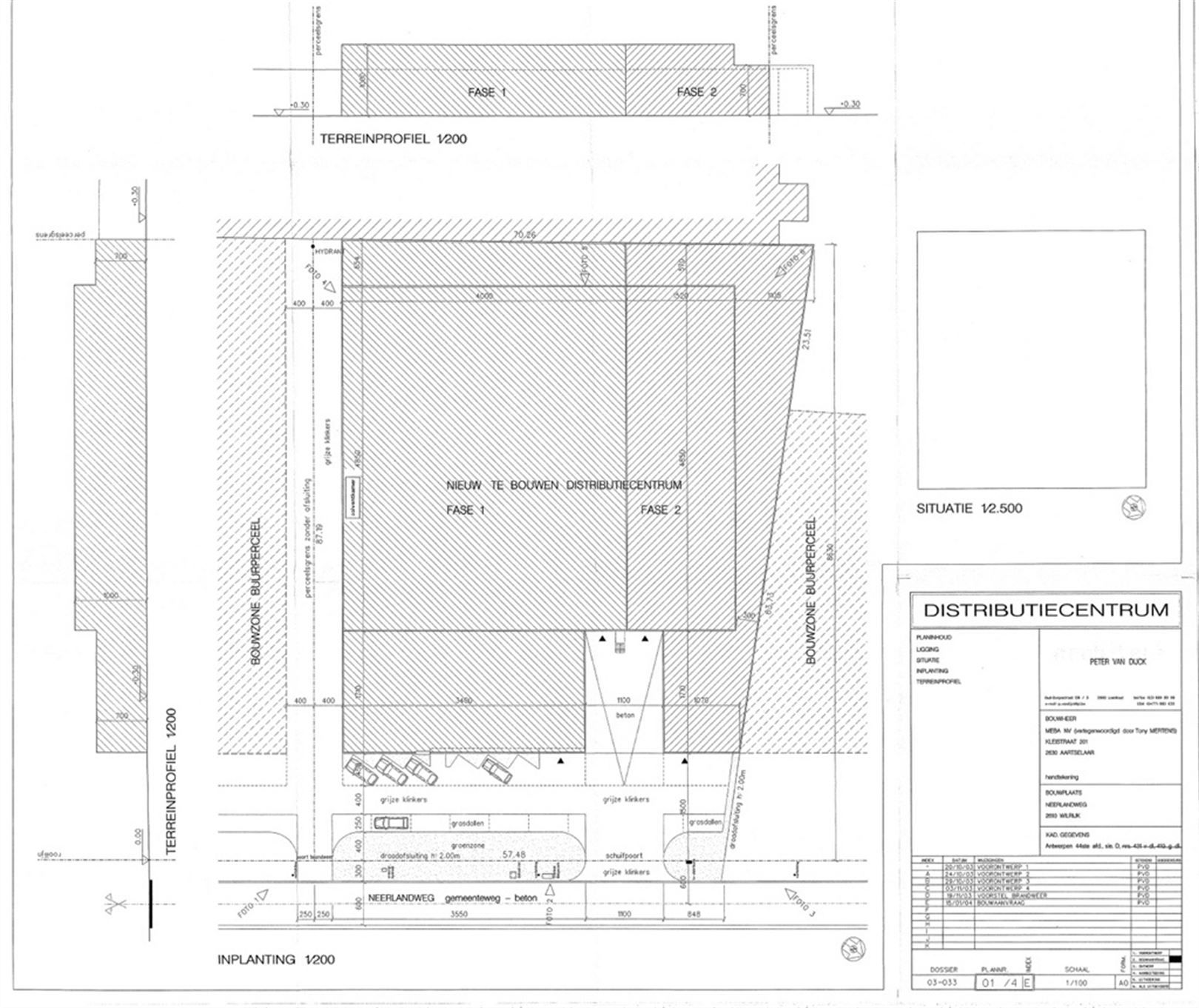
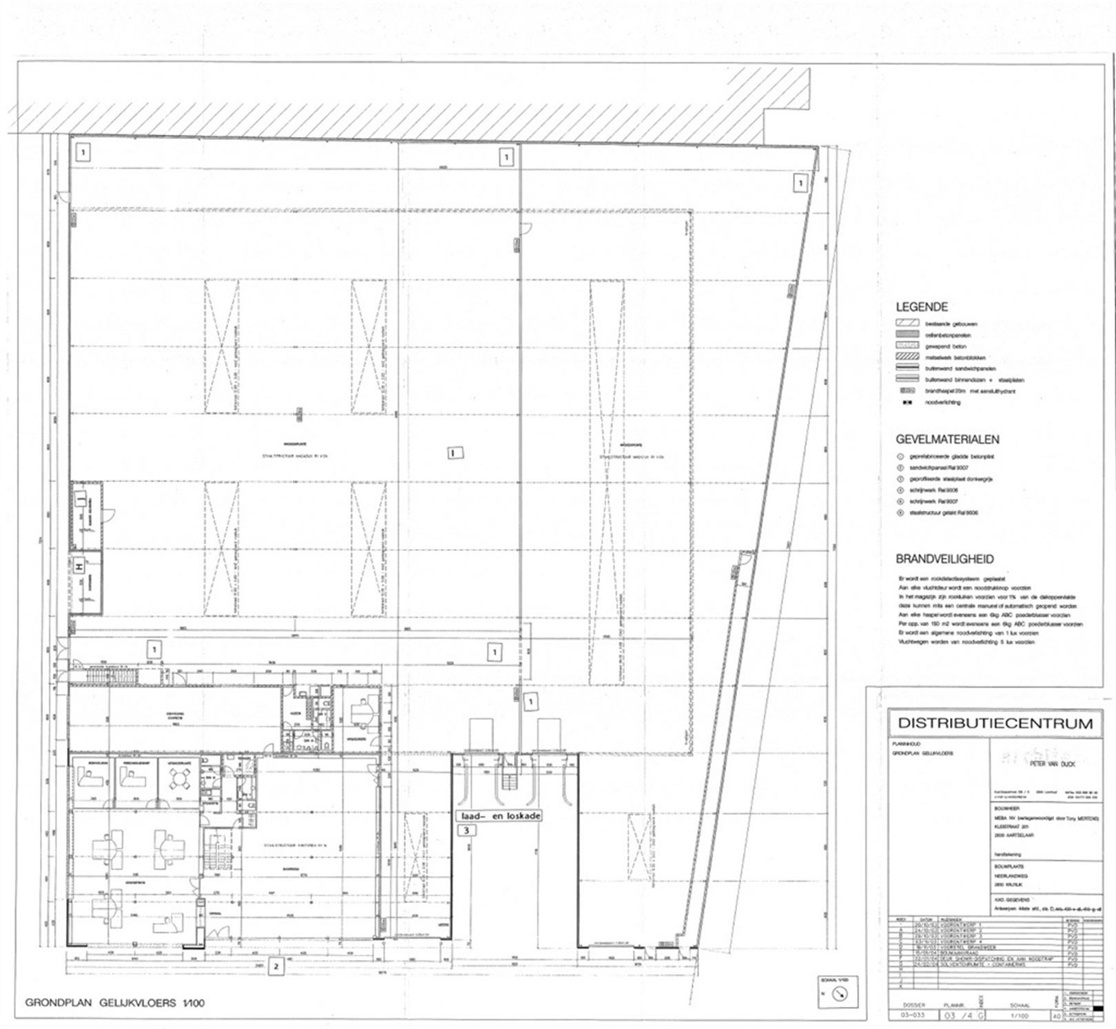
Polyvalent, recent bedrijfsgebouw op IZ Neerland. De site is volgens het vigerende gewestplan gelegen in een zone voor industrie (donker paars). Detailhandel is dus niet mogelijk. De site is uitstekend bereikbaar via de A12 Antwerpen - Brussel. Het gebouw dateert van 2004 en werd gebouwd door Willy Naessens.
Momenteel beschikbaar: kantoor op de GLV verdieping (560m²) & een magazijn van 110m².
Deze unit is voorzien van alle hedendaagse technische faciliteiten:
- Magazijnen: uitgerust magazijn, verwarming op gas, 1 kleine automatische sectionaalpoort,...
- Kantoren/showroom: Meerdere polyvalente ruimtes die dienst kunnen doen als kantoren, showroomruimte en/of B2B showroom, inclusief sanitair, keuken, eetruimte + terras, vergaderzaal,...
Vrije hoogte klein magazijn: min. 3m
Recent werden 2 laadpalen voor PHEV's en elektrische voertuigen geïnstalleerd.
Bijkomende kosten:
- Onroerende voorheffing: Totaliteit (AJ 2019: 18.225EUR) - Magazijnruimte: ca. 2,85 EUR/m²/jaar - Kantoorruimte: ca.7,50 EUR/m²/jaar
- Servicekost (incl. aandeel verzekering gebouw, groenonderhoud en reiniging glaspartijen): ca. 1,65 EUR/m²/jaar
- Eigen verbruik nutsvoorzieningen: gas, water, elektriciteit, data,...
- Plannen (PDF) op aanvraag
- Keuring elektrische installatie: niet van toepassing
- Bodemattest: op aanvraag
Bezoek ter plaatse na telefonisch afspraak met uw expert in bedrijfsvastgoed!
Energie
- E-peil: E0
- Beglazing: Onbekend
Op de kaart

Financieel
| Maandelijkse kosten | € 0 |
|---|---|
| Kadastraal inkomen (niet geïndexeerd) | € 0 |
| Kadastraal inkomen (geïndexeerd) | € 0 |
Bijkomende info
Gebouw
| Bouwcertificaat | Nee |
|---|---|
| Bewoonbaar (m²) | 670 |
| Verdieping | 0 |
| Badkamers | 0 |
| Slaapkamers | 0 |
| Verdiepingen | 0 |
| Garages | 0 |
| Parkeerplaatsen | 0 |
| Doucheruimtes | 0 |
| Toiletten | 0 |
Faciliteiten
| Elektrisch keuringsattest | Nee |
|---|
Perceel
| Overstromingsgevoelig | Geen |
|---|---|
| Voorkeurrecht | Nee |
| Bebouwde oppervlakte (m²) | 0 |
| Tuin oppervlakte (m²) | 0 |
| Oppervlakte terras (m²) | 0 |
Uitrusting
| Investeringspand | Nee |
|---|---|
| Geschikt voor praktijk | Nee |
| Parking | Nee |
| Garage | Nee |
| Thuiskantoor | Nee |
| Kelder | Nee |
| Zolder | Nee |
| Tuin | Nee |
| Terras | Nee |
| Lift | Nee |
| Rioolaansluiting | Nee |
| Gasaansluiting | Nee |
| Wateraansluiting | Nee |
| Elektriciteitsaansluiting | Nee |
| TV aansluiting | Nee |
| Internetaansluiting | Nee |
| Telefoonaansluiting | Nee |
Appartementsblok
| Lift | Nee |
|---|