Beschikbaar vanaf 1 feb. 2026
Nieuw Virtual tour
Appartement met terras, op de stadsrand van Mechelen
€ 885 (+€ 20)
Een pand van Immo Vercammen
Overzicht
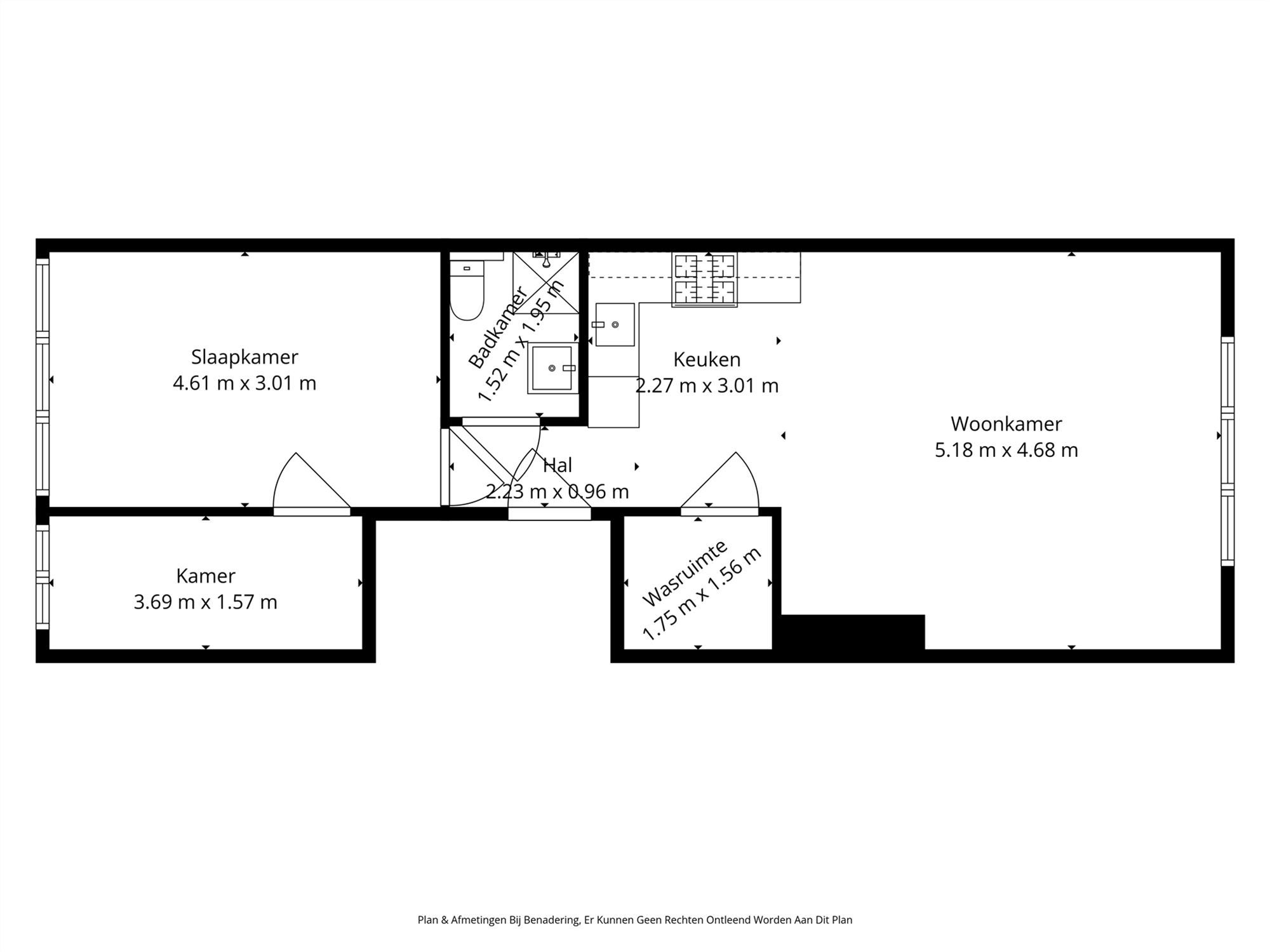
- 70 m² bewoonbaar
- 2 Slaapkamer(s)
- 1 Badkamer(s)
- 1 Garage(s)
Beschrijving
Aangenaam appartement op de stadsrand van Mechelen. Het appartement beschikt over twee slaapkamers, waarvan één doorloopkamer, een lichtrijke leefruimte met toegang tot een terras, een praktisch ingerichte keuken en badkamer, en een inpandige garage. Dankzij de vlotte verbinding met het centrum en de invalswegen is dit een ideale woonst voor wie goed bereikbaar wil wonen. Beschikbaar vanaf 1 februari 2026.
Energie
![]() |
- EPC Certificaat: 20221111-0002723039-RES-1
- Energieverbruik: 271 kWh/m²/jaar
- E-peil: E0
- Beglazing: Standaard dubbel
Zelfcheck
Op de kaart

Virtual tour
Ontdek het hele pand alvorens je bezoek via de virtuele tour, werkelijkheid gemaakt door Walkly. Geen verassingen tijdens het bezoek!
Beleef de virtuele tourFinancieel
| Prijs | |
|---|---|
| Maandelijkse kosten | € 20 |
| Kadastraal inkomen (niet geïndexeerd) | € 0 |
| Kadastraal inkomen (geïndexeerd) | € 0 |
Bijkomende info
Gebouw
| Bouwjaar | 1967 |
|---|---|
| Bouwcertificaat | Nee |
| Bewoonbaar (m²) | 70 |
| Verdieping | 1 |
| Badkamers | 1 |
| Slaapkamers | 2 |
| Verdiepingen | 0 |
| Garages | 1 |
| Parkeerplaatsen | 0 |
| Doucheruimtes | 0 |
| Toiletten | 0 |
Faciliteiten
| Materiaal ramenomlijstingen | PVC |
|---|---|
| Beglazing | Standaard dubbel |
| Elektrisch keuringsattest | Nee |
Perceel
| Overstromingsgevoelig | Geen |
|---|---|
| P-score | A |
| G-score | A |
| Voorkeurrecht | Nee |
| Bebouwde oppervlakte (m²) | 0 |
| Tuin oppervlakte (m²) | 0 |
| Oppervlakte terras (m²) | 0 |
Vergunning
| Vergunning | Vergunning beschikbaar |
|---|
Uitrusting
| Investeringspand | Nee |
|---|---|
| Geschikt voor praktijk | Nee |
| Parking | Nee |
| Garage | Ja |
| Thuiskantoor | Nee |
| Kelder | Nee |
| Zolder | Nee |
| Tuin | Nee |
| Terras | Ja |
| Lift | Nee |
| Rioolaansluiting | Ja |
| Gasaansluiting | Ja |
| Wateraansluiting | Ja |
| Elektriciteitsaansluiting | Ja |
| TV aansluiting | Ja |
| Internetaansluiting | Ja |
| Telefoonaansluiting | Ja |
Appartementsblok
| Lift | Nee |
|---|
Een pand van
Immo Vercammen
U weet intussen wel waarom ...
Immo Vercammen en Immo Vercammen Exclusief zijn u graag van dienst.
Uw vastgoedpartner met zijn kenmerkende betrouwbaarheid en 100% inzet.
OUDE LIERSEBAAN 91 / 1 MECHELEN
Leer meer over vastgoed
26 October 2025
Fake huuradvertenties op Facebook
06 July 2025
Wie betaalt herstellingen aan de huurwoning?
01 July 2025
Ik wil mijn huurcontract opzeggen. Hoe doe ik dit?
20 April 2025
