Nieuwbouw winkelunit van 1.000 m²
€ 11.250
Een pand van CEUSTERS
Overzicht
- 1000 m² bewoonbaar
Beschrijving
Unieke commerciële ruimte van 1.000m² te huur, gelegen in de Keerdokwijk in Mechelen.
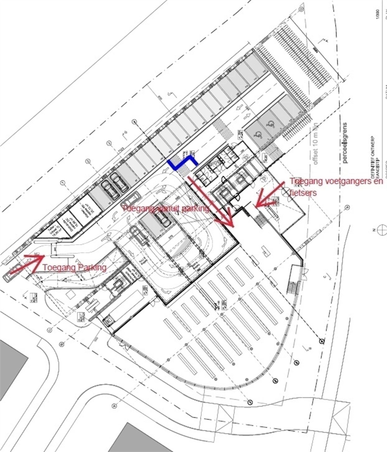
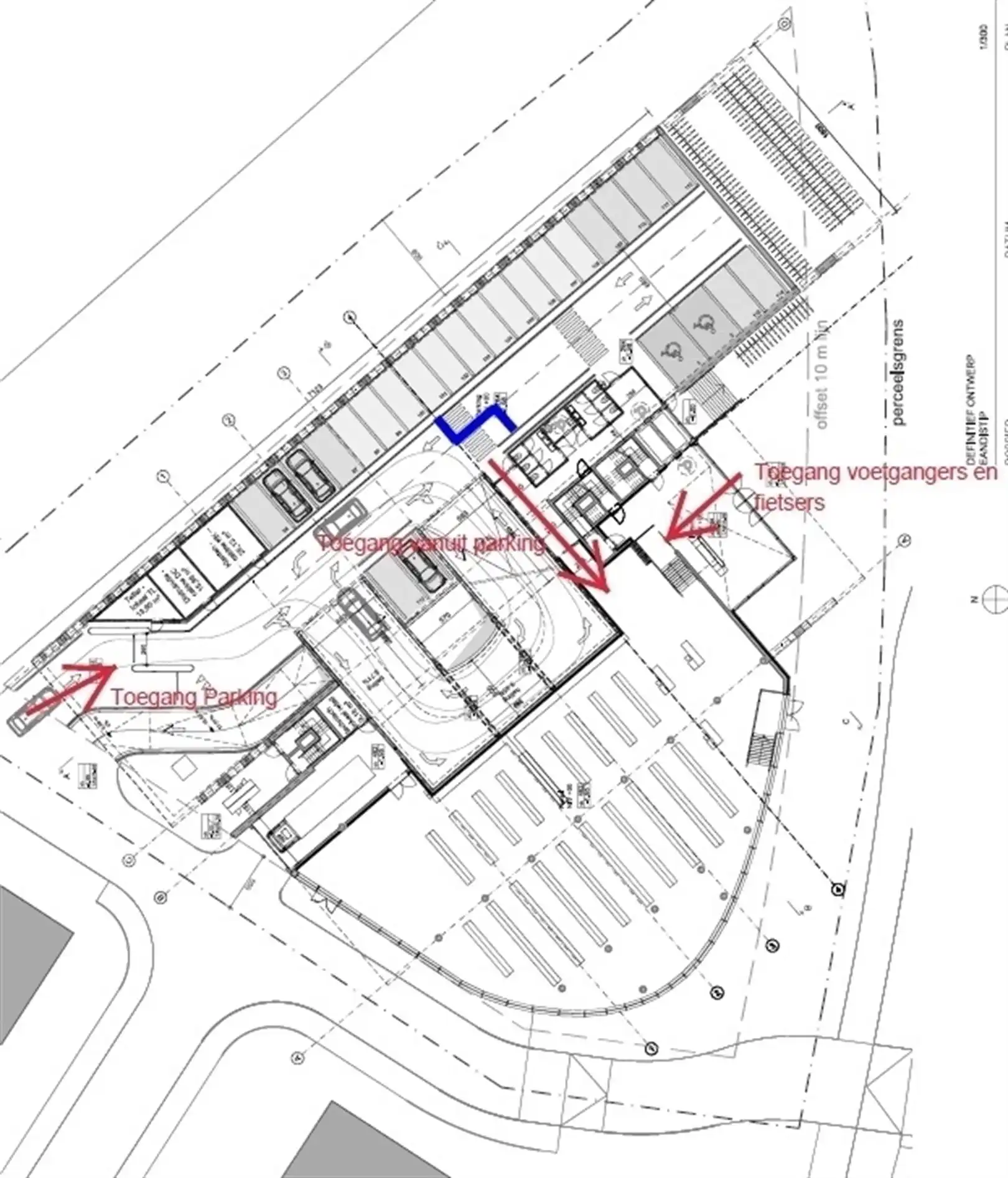
Het gebouw Eandistip omvat een commercieel gelijkvloers, kantoren (van VOKA) op de verdiepingen, openbare dakterrassen en een ondergrondse parking, beheerd door Indigo.
De commerciële ruimte heeft in totaal drie toegangen: via de parking, de gemeenschappelijke gang van de kantoren en de straat.
Beschikbaar vanaf: 18/11/2025
MOGELIJKHEID TOT OPSPLITSING VAN DE RUIMTE
De totale oppervlakte van 1.000m² kan worden opgedeeld in twee units:
- Unit 1 (next): 522m²
- Unit 2 (start): 477m²
TROEVEN VAN DEZE LOCATIE
*Strategisch ligging:
Vernieuwde Keerdokwijk, een dynamische stadsontwikkeling met een ideale mix van wonen, werken en commerciële activiteiten.
*Uitstekende bereikbaarheid:
Vlotte verbinding met de E19 en het stadscentrum. Recht onder de commerciële ruimte bevinden zich ondergrondse parkeerplaatsen, wat extra gemak biedt voor klanten en bezoekers.
*Moderne ontwikkeling:
De Keerdokwijk trekt steeds meer bewoners en bezoekers, wat zorgt voor een groeiende klantenbasis.
ONTWIKKELINGEN - KEERDOKWIJK
Momenteel wordt deze plek getransformeerd tot een moderne duurzame stadswijk. Zo krijgt het gebied ca. 570 woningen, een centraal ontmoetingsplein, vernieuwde kades en een stadspark met een microbos.
In 2024 is de gloednieuwe McDonald's geopend. In 2025 worden de eerste woningen (DOK+ en D'île Malines) opgeleverd. Daarnaast openen in 2025 het vernieuwde Rode Kruisplein en de fiets- en voetgangersbrug naar Winketkaai.
Energie
- E-peil: E0
- Beglazing: Onbekend
Op de kaart

Financieel
| Prijs | |
|---|---|
| Maandelijkse kosten | € 0 |
| Kadastraal inkomen (niet geïndexeerd) | € 0 |
| Kadastraal inkomen (geïndexeerd) | € 0 |
Bijkomende info
Gebouw
| Bouwcertificaat | Nee |
|---|---|
| Bewoonbaar (m²) | 1000 |
| Verdieping | 0 |
| Badkamers | 0 |
| Slaapkamers | 0 |
| Verdiepingen | 0 |
| Garages | 0 |
| Parkeerplaatsen | 0 |
| Doucheruimtes | 0 |
| Toiletten | 0 |
Faciliteiten
| Elektrisch keuringsattest | Nee |
|---|
Perceel
| Overstromingsgevoelig | Geen |
|---|---|
| Voorkeurrecht | Ja |
| Bebouwde oppervlakte (m²) | 0 |
| Tuin oppervlakte (m²) | 0 |
| Oppervlakte terras (m²) | 0 |
Vergunning
| Vergunning | Geen beschikbaar |
|---|---|
| Verkavelingsvergunning | Geen beschikbaar |
Uitrusting
| Investeringspand | Nee |
|---|---|
| Geschikt voor praktijk | Nee |
| Parking | Nee |
| Garage | Nee |
| Thuiskantoor | Nee |
| Kelder | Nee |
| Zolder | Nee |
| Tuin | Nee |
| Terras | Nee |
| Lift | Nee |
| Rioolaansluiting | Nee |
| Gasaansluiting | Nee |
| Wateraansluiting | Nee |
| Elektriciteitsaansluiting | Nee |
| TV aansluiting | Nee |
| Internetaansluiting | Nee |
| Telefoonaansluiting | Nee |
Appartementsblok
| Lift | Nee |
|---|