Moderne kantoorruimte 3.1 te huur aan het station van Mechelen
Een pand van OREON PROPERTIES
Jouw zoektocht
Overzicht
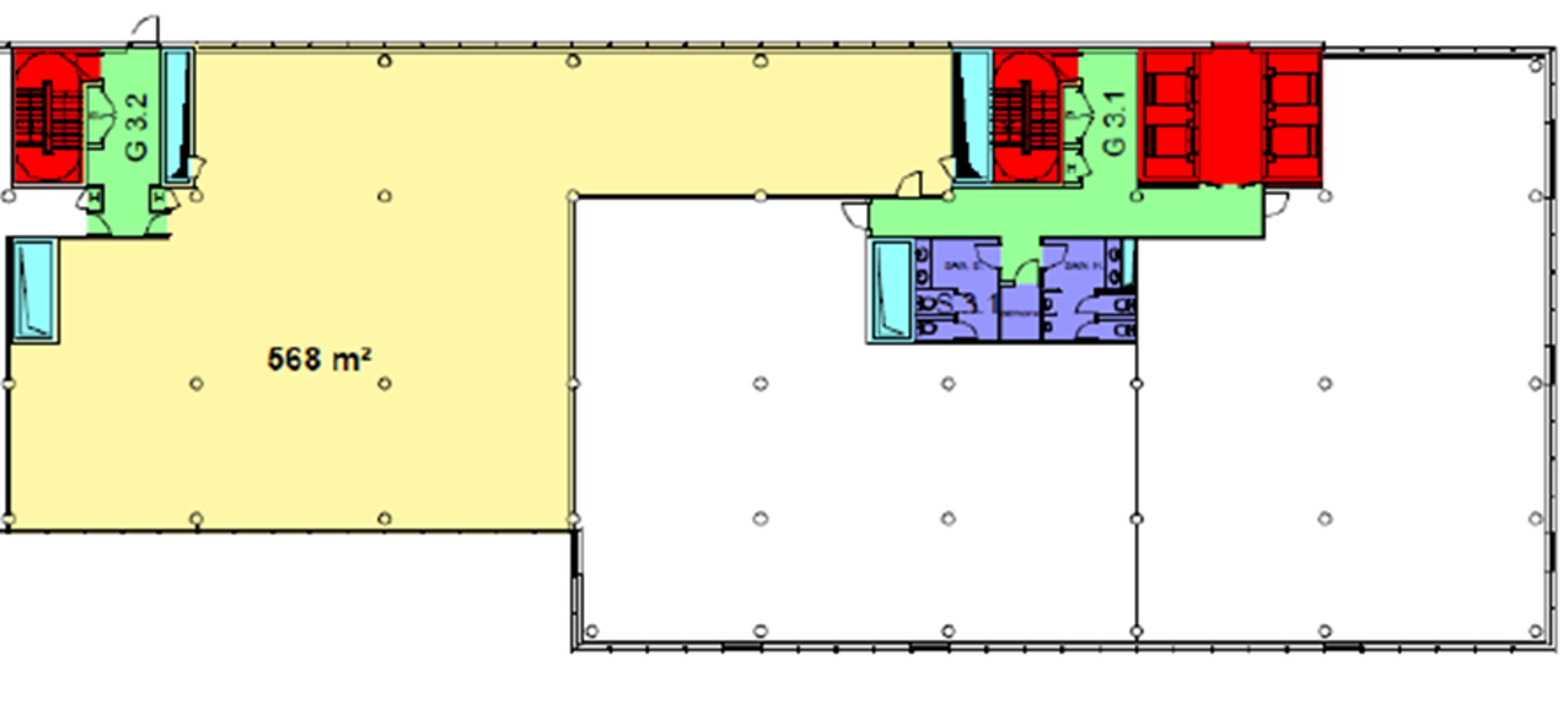
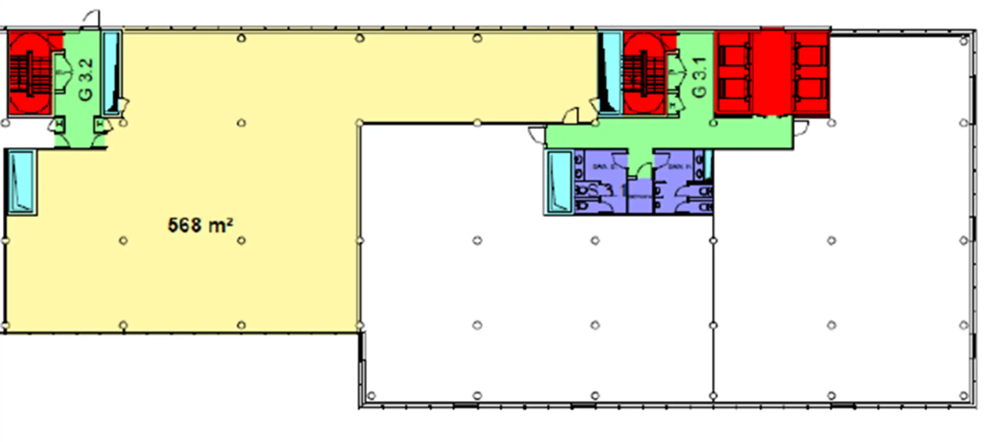
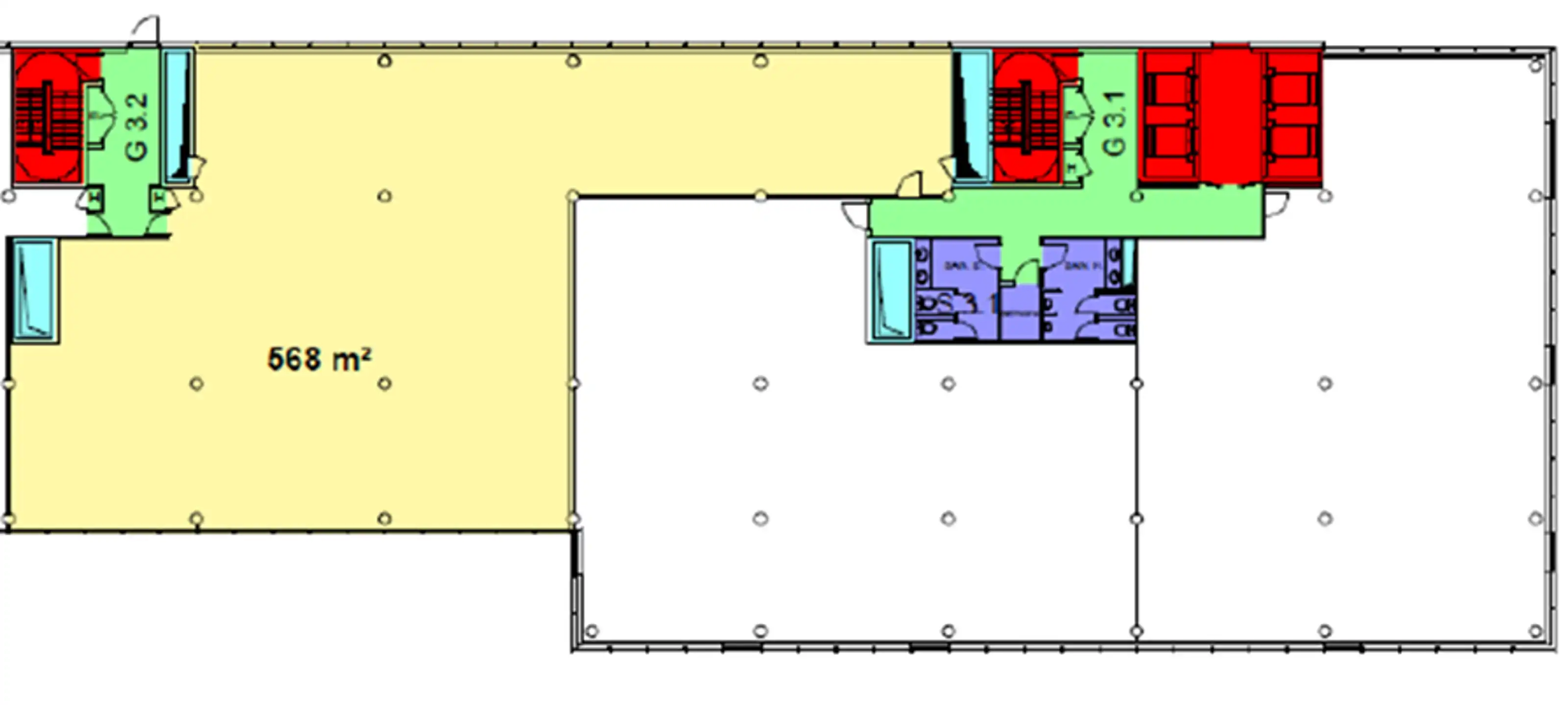
- 568 m² bewoonbaar
Beschrijving
Modern open space kantoor te huur in Mechelen, pal aan het station en op enkele minuten van de E19 richting Brussel en Antwerpen. De kantoorruimte maakt deel uit van een verzorgd complex met een representatieve inkomhal en gemeenschappelijke receptie.
Binnenin vind je een lichtrijke open space met moderne afwerking, verhoogde vloer, ingebouwde LED-verlichting, klimaatregeling en voorzieningen voor kitchenette. Dankzij de grote raampartijen en flexibele indeling is dit een aangename, efficiënte werkplek voor elk type onderneming.
Financiële voorwaarden:
Huurprijs: €140/m²/jaar
Gem. kosten €44/m²/jaar
Onroerende voorheffing €19/m²/jaar
Een kantoorruimte nabij station Mechelen die comfort, zichtbaarheid en bereikbaarheid moeiteloos combineert. Ideaal voor bedrijven die professioneel willen uitblinken op een toplocatie.
Energie
Op de kaart

Financieel
| Prijs |
|---|
Bijkomende info
Gebouw
| Bewoonbaar (m²) | 568 |
|---|---|
| Verdieping | 3 |
| Badkamers | 0 |
| Slaapkamers | 0 |
| Verdiepingen | 3 |
| Parkeerplaatsen | 0 |
Faciliteiten
| Type vloer |
|---|
Perceel
| Tuin oppervlakte (m²) | 0 |
|---|
Vergunning
| Vergunning | Geen beschikbaar |
|---|---|
| Verkavelingsvergunning | Geen beschikbaar |
Uitrusting
| Parking | Nee |
|---|---|
| Garage | Nee |
| Tuin | Nee |
| Terras | Nee |