> Te huur > Mechelen > Kantoor > Moderne kantoorruimte te huur aan het station van Mechelen

Moderne kantoorruimte te huur aan het station van Mechelen

Een pand van OREON PROPERTIES

Volledige aanbod

Overzicht


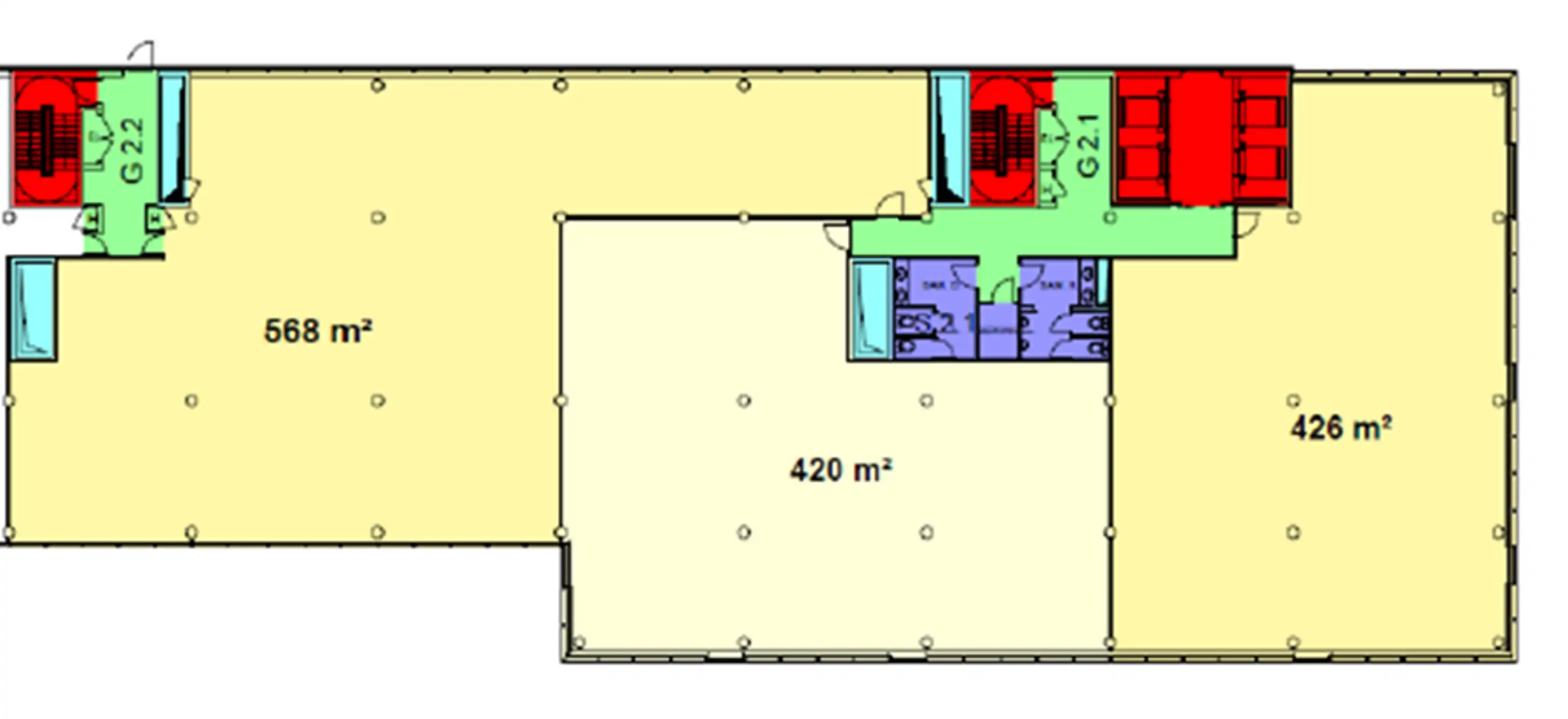
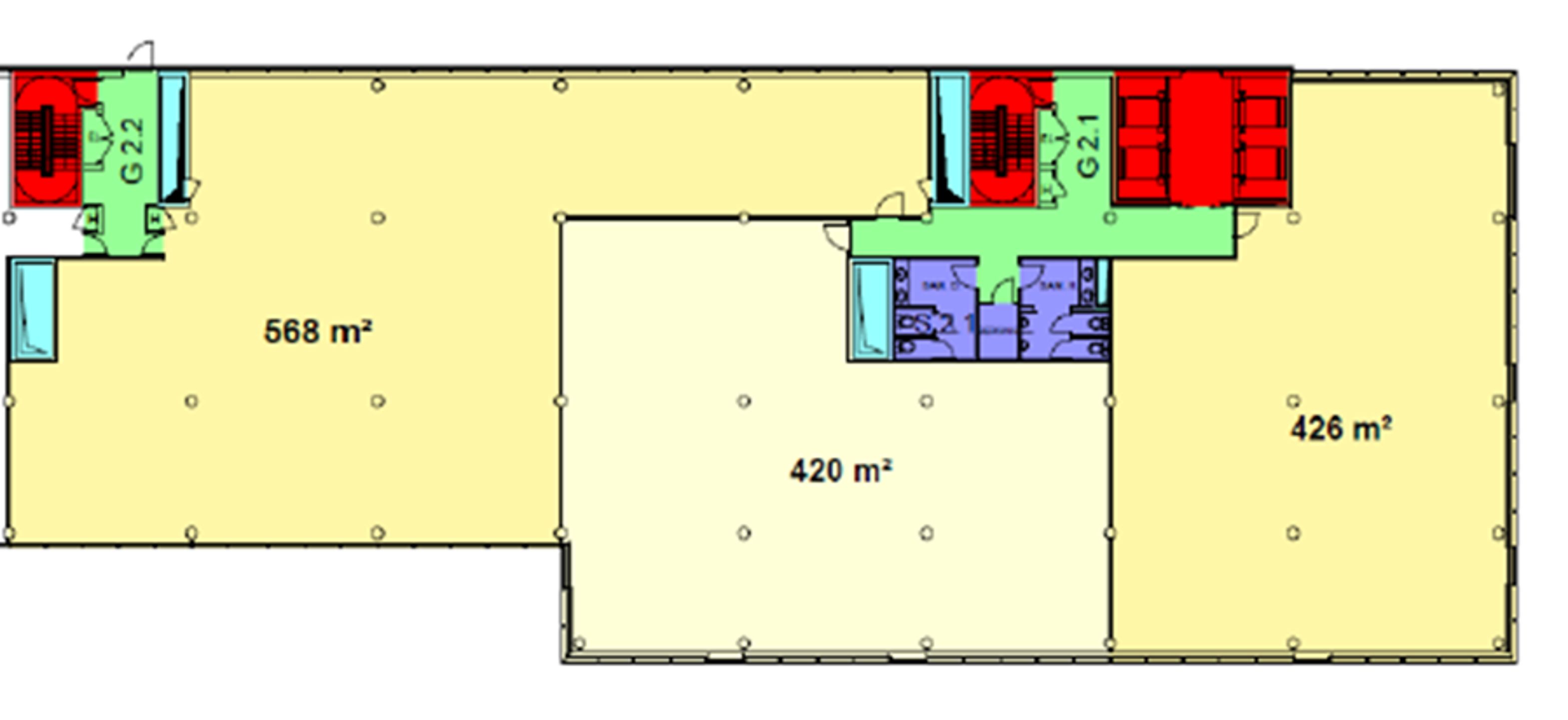
  • 420 m² bewoonbaar

Beschrijving


Kantoorruimte te huur in Mechelen op toplocatie tegenover het station. Modern gebouw met lift, receptie, vergaderzalen en bedrijfsrestaurant. Ondergrondse parkeergarage en extra parkeerplaatsen aan de straat en op de openbare parking. Een zichtlocatie met uitstekende bereikbaarheid en professionele uitstraling.

Modern open space kantoor te huur in Mechelen, pal aan het station en op enkele minuten van de E19 richting Brussel en Antwerpen. De kantoorruimte maakt deel uit van een verzorgd complex met een representatieve inkomhal en gemeenschappelijke receptie.


Binnenin vind je een lichtrijke open space met moderne afwerking, verhoogde vloer, ingebouwde LED-verlichting, klimaatregeling en voorzieningen voor kitchenette. Dankzij de grote raampartijen en flexibele indeling is dit een aangename, efficiënte werkplek voor elk type onderneming.

Financiële voorwaarden:
Huurprijs: €140/m²/jaar
Gem. kosten €44/m²/jaar
Onroerende voorheffing €19/m²/jaar



    Een kantoorruimte nabij station Mechelen die comfort, zichtbaarheid en bereikbaarheid moeiteloos combineert. Ideaal voor bedrijven die professioneel willen uitblinken op een toplocatie.

    Energie


    Op de kaart


    map placeholder

    Financieel


    Prijs € 4.900

    Bijkomende info


    Gebouw
    Bewoonbaar (m²) 420
    Verdieping 2
    Badkamers 0
    Slaapkamers 0
    Parkeerplaatsen 0
    Faciliteiten
    Type vloer
    Perceel
    Tuin oppervlakte (m²) 0
    Vergunning
    Vergunning Geen beschikbaar
    Verkavelingsvergunning Geen beschikbaar
    Uitrusting
    Parking Nee
    Garage Nee
    Tuin Nee
    Terras Nee

    Een pand van


    OREON PROPERTIES
    Logo van makelaar: OREON PROPERTIES
    Oreon Properties
    Vastgoedmakelaar Oreon Properties is uw expert op het vlak van (ver)huur of (ver)koop van kantoren, logistiek of industrieel vastgoed, investeren in vastgoed en vastgoedbeheer. Investeerders en ondernemingen die op zoek zijn naar kantoren, logistiek of industrieel vastgoed kunnen bij Oreon Properties aankloppen voor professioneel advies op maat en begeleiding bij al hun investeringen en vastgoedtransacties.
    Logo van makelaar: OREON PROPERTIES
    7213156
    Moderne kantoorruimte te huur aan het station van Mechelen foto {{pictureIndex}}

    Moderne kantoorruimte te huur aan het station van Mechelen

    € 4.900

    Stationsstraat 100 - 2800 Mechelen

    Bezoek het pand

    Vul jouw contactgegevens hieronder in en de makelaar contacteert je.

    Leer meer over vastgoed

    04 January 2026
    Zoek je een kantoor, een magazijn of… iets ertussenin? Bedrijfsvastgoed uitgelegd
    05 November 2024
    Bedrijfsvastgoed in transitie: ontdek de toekomst van werkplekken
    16 October 2024
    Opbrengsteigendom: een slim pad naar passief inkomen en vermogensgroei
    09 September 2024
    Tijdelijk vastgoed: flexibele oplossingen voor een dynamische markt