STUDENTS ONLY! Gemeubelde studentenkamer in hartje Mechelen - EERSTE BEWONING NA RENOVATIE
€ 535 (+€ 75)
Een pand van De Makelaardij
Overzicht
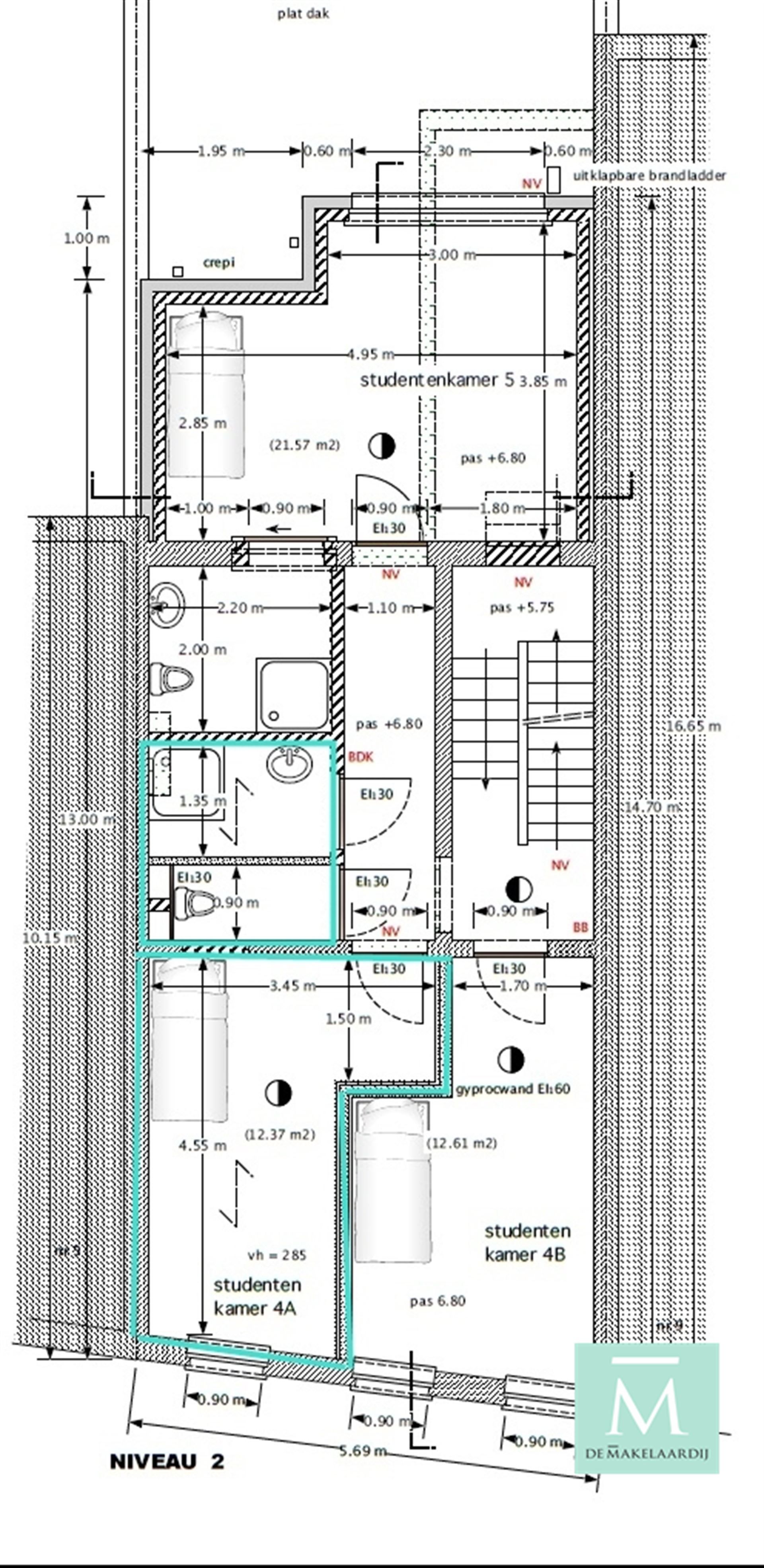
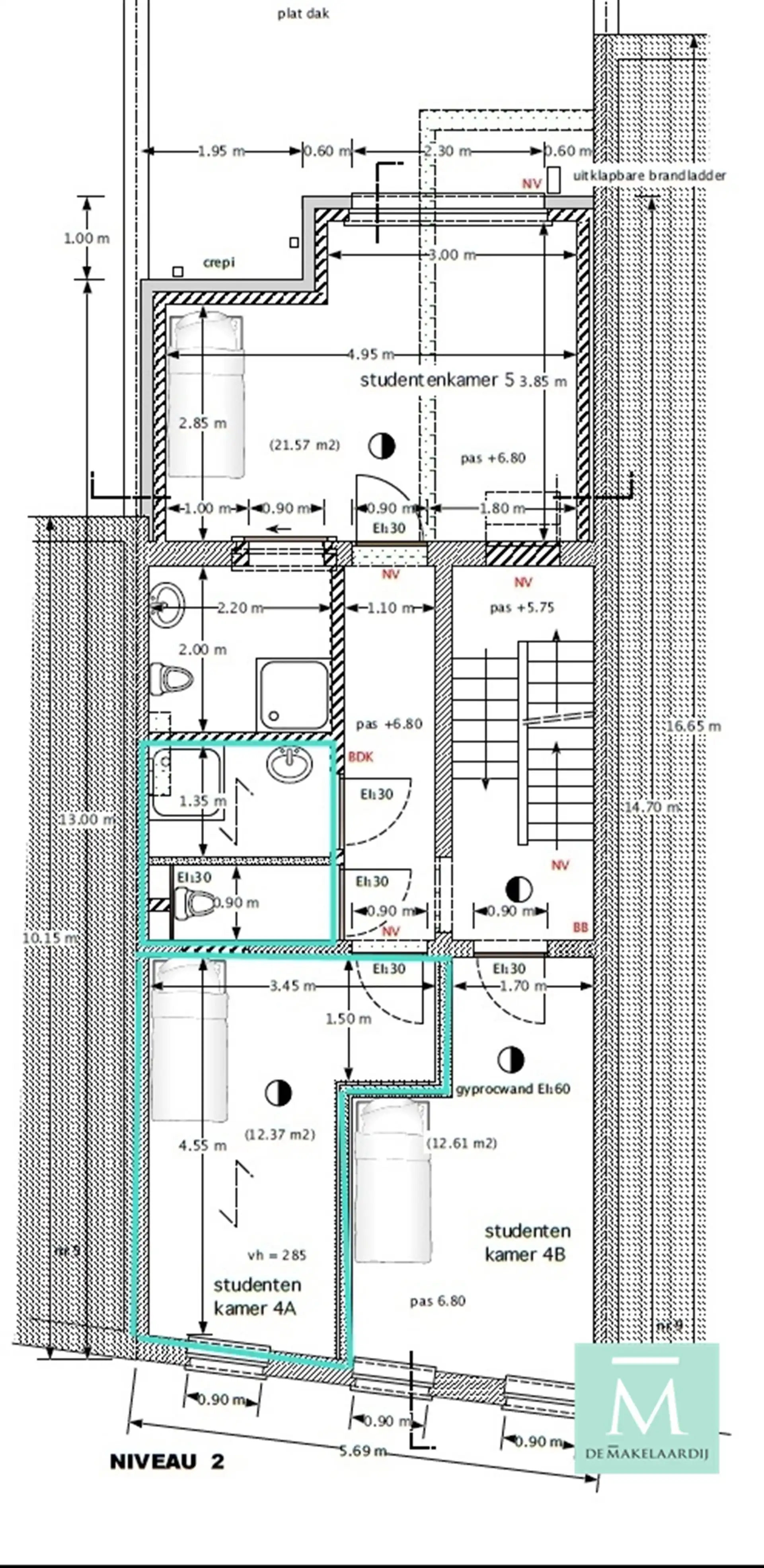
- 12.37 m² bewoonbaar
- 1 Badkamer(s)
- 1 Toilet(ten)
Beschrijving
STUDENTS ONLY! Gemeubelde studentenkamer in hartje Mechelen - EERSTE BEWONING NA RENOVATIE
Op zoek naar een leuke studentenkamer vlakbij het centraal station? Dan is dit DE moderne en knusse thuisbasis voor studenten die comfortabel willen wonen. Je komt terecht in een spiksplinternieuwe doch supergezellige kamer met eigen
lavabo. Een luxebadkamer en apart toilet deel je slechts met 1 andere student.
Zeer centraal gelegen vlakbij het centraal station en op wandelafstand van het centrum van de bruisende stad Mechelen, terwijl je geniet van een rustige straat vlakbij alle voorzieningen (Thomas More, winkels, bushaltes, de levendige Markt en Bruul, etc.)
Deze kamer is gelegen op de tweede verdieping en geniet van veel lichtinval door de grote raampartijen.Met deze kamer beschikt u over een eigen lavabo. De douchekamer bestaat uit een luxe douche en lavabomeubel met spiegel. Er is ook een apart toilet aanwezig.
Ter info:
·Deze heeft een totale oppervlakte van 12,37 m²
·De kamer is bemeubeld met een enkel bed (matras zelf te voorzien), een bureau en een kleerkast. Persoonlijke aankleding en detaillering laten we aan de bewoner over (binnen de grenzen van het huishoudelijke reglement).
Verder beschikt het pand over het modernste gemak en technische eisen als volgt:
·parlofonie·
·grote gemeenschappelijke ruimte op gelijkvloers met volledig uitgeruste keuken en zithoek
·gemeenschappelijke tuin waar het heerlijk vertoeven is in lente, zomer en herfst!
·ruime inpandige fietsenstalling
ENKEL voor studenten !
Maandelijkse gemeenschappelijke lasten bedragen 75 (provisie) en omvatten water, elektriciteit, internet, onderhoud gemeenschappelijke delen en vuilniszakken.
Kom zeker langs voor een bezoek en ontdek Coxiestraat 7, dé plek in Mechelen om te studeren, relaxen én connecteren.
Voor een bezoek of meer info : contacteer De Makelaardij - 015 20 20 82 - info@demakelaardij.be
Energie
![]() |
- EPC Certificaat: 20250817-000366556-RES-2
- Energieverbruik: 78 kWh/m²/jaar
- E-peil: E0
- Verwarming: Gas
- Beglazing: Onbekend
Zelfcheck
Op de kaart

Downloads
Financieel
| Prijs | |
|---|---|
| Maandelijkse kosten | € 75 |
| Kadastraal inkomen (niet geïndexeerd) | € 0 |
| Kadastraal inkomen (geïndexeerd) | € 0 |
Bijkomende info
Gebouw
| Staat | Goed onderhouden |
|---|---|
| Bouwcertificaat | Nee |
| Bewoonbaar (m²) | 12.37 |
| Verdieping | 2 |
| Badkamers | 1 |
| Slaapkamers | 0 |
| Verdiepingen | 0 |
| Garages | 0 |
| Parkeerplaatsen | 0 |
| Doucheruimtes | 0 |
| Toiletten | 1 |
Faciliteiten
| Keuken uitrusting | Luxueus uitgerust |
|---|---|
| Materiaal ramenomlijstingen | PVC |
| Brandstof primaire verwarming | Gas |
| Elektrisch keuringsattest | Ja |
Perceel
| Overstromingsgevoelig | Geen |
|---|---|
| Voorkeurrecht | Ja |
| Bebouwde oppervlakte (m²) | 0 |
| Tuin oppervlakte (m²) | 0 |
| Oppervlakte terras (m²) | 0 |
Vergunning
| Vergunning | Geen beschikbaar |
|---|---|
| Verkavelingsvergunning | Geen beschikbaar |
Uitrusting
| Investeringspand | Nee |
|---|---|
| Geschikt voor praktijk | Nee |
| Parking | Nee |
| Garage | Nee |
| Thuiskantoor | Nee |
| Kelder | Nee |
| Zolder | Nee |
| Tuin | Nee |
| Terras | Nee |
| Lift | Nee |
| Rioolaansluiting | Nee |
| Gasaansluiting | Nee |
| Wateraansluiting | Nee |
| Elektriciteitsaansluiting | Nee |
| TV aansluiting | Nee |
| Internetaansluiting | Nee |
| Telefoonaansluiting | Nee |
Appartementsblok
| Lift | Nee |
|---|
