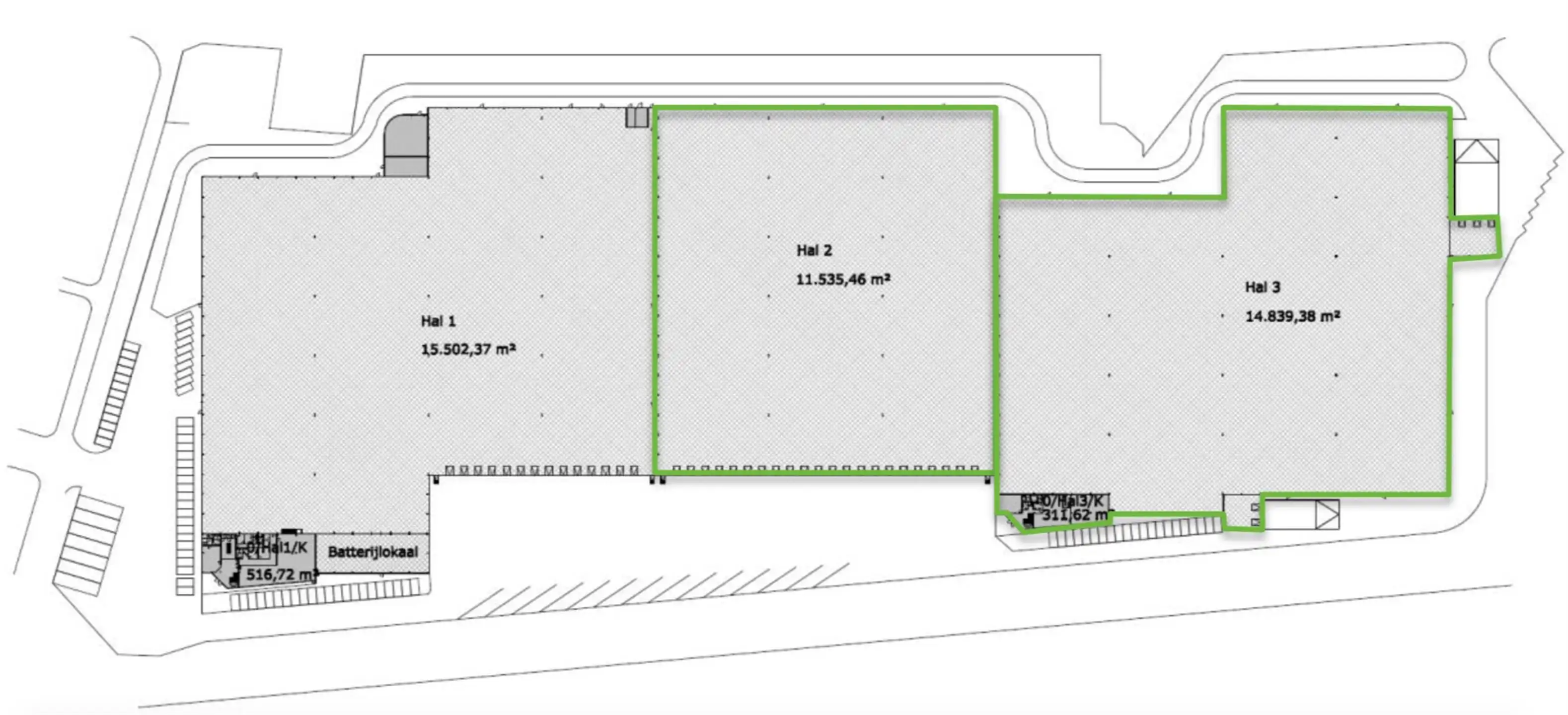
Logistiek complex op toplocatie te huur
€ 84.371,25
Een pand van Mertens Vastgoed
Favoriet
Jouw zoektocht
Jouw scoretabel voor dit pand
Aan het laden...
Jouw geplande bezichtigingen
Aan het laden...
Overzicht
- 22499 m² bewoonbaar
Beschrijving
Logistiek complex op een toplocatie tussen Antwerpen en Brussel in. Het moderne bedrijfspand geniet van een zichtlocatie langsheen de A12.
Dak is voorzien van zonnepanelen.
Mogelijkheid tot het bijhuren van 623m2 kantoorruimte.
Dak is voorzien van zonnepanelen.
Mogelijkheid tot het bijhuren van 623m2 kantoorruimte.
Energie
Op de kaart

Financieel
| Prijs |
|---|
Bijkomende info
Gebouw
| Bewoonbaar (m²) | 22499 |
|---|---|
| Badkamers | 0 |
| Slaapkamers | 0 |
| Parkeerplaatsen | 0 |
Faciliteiten
| Type vloer |
|---|
Perceel
| Tuin oppervlakte (m²) | 0 |
|---|
Vergunning
| Vergunning | Geen beschikbaar |
|---|---|
| Verkavelingsvergunning | Geen beschikbaar |
Uitrusting
| Parking | Nee |
|---|---|
| Garage | Nee |
| Zolder | Nee |
| Tuin | Nee |
| Terras | Nee |
| Gasaansluiting | Ja |
| Wateraansluiting | Ja |
| Elektriciteitsaansluiting | Ja |
| Telefoonaansluiting | Ja |
| Zonnepanelen | Ja |
Een pand van
Mertens Vastgoed
Mertens Vastgoed
Met al 25 jaar ervaring is Mertens Vastgoed een toonaangevende speler in bedrijfsvastgoed kantoren, industrie, retail, investeringen en waardebepalingen. Dit Antwerps makelaarskantoor bruist, onderneemt én groeit. Niet alleen in aantal transacties en verhandelde vierkante meters, maar ook in het aantal klanten die een beroep doen op ons advies en terreinkennis.
Leer meer over vastgoed
04 January 2026
Zoek je een kantoor, een magazijn of… iets ertussenin? Bedrijfsvastgoed uitgelegd
05 November 2024
Bedrijfsvastgoed in transitie: ontdek de toekomst van werkplekken
16 October 2024
Opbrengsteigendom: een slim pad naar passief inkomen en vermogensgroei
09 September 2024