DE KLINKAARD: recente polyvalente bedrijfssite te Kapellen
Een pand van CEUSTERS
Overzicht
- 200 m² bewoonbaar
Beschrijving
Recente, polyvalente bedrijfshal te Kapellen. De bedrijfshal is voorzien van alle hedendaagse technische faciliteiten.
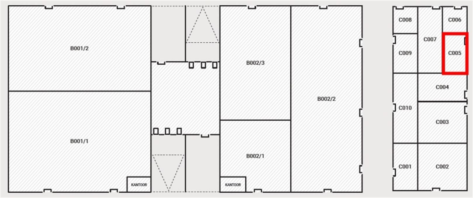
Magazijn C005/C006
- magazijnen voor conventionele goederen
- 1 gelijkvloerse poort/magazijn
- 2 parkeerplaatsen/magazijn
- Forfaitiare servicekosten ca. 75 euro/maand/magazijn
- Beschikbaar 01/12/2025
Algemene kenmerken
- Magazijnen voor conventionele goederen
- Buitenwanden beton, binnenwanden sandwichpanelen Rf 30 min
- 9 meter vrije hoogte
- Betonvloer
- Draagkracht: max 50kN/m²
- Gelijkvloerse poorten
- Lichtstraten
- 200 Lux verlichting
- Site is omheind
- Wateraansluiting
- Branddetectie
- Brandhaspel
- Werken van 7-19H
- Gelegen in waterwinningsgebied; opslag van vloeistoffen en gevarengoed is niet toegestaan. Op gans het eigendom is het tevens ten strengste verboden voertuigen en/of machines af te spuiten en/of te reinigen.
Prijzen excl. BTW en privatief verbruik
Bezoek ter plaatse na telefonisch afspraak met uw expert in bedrijfsvastgoed!
Energie
- E-peil: E0
- Beglazing: Onbekend
Op de kaart

Financieel
| Maandelijkse kosten | € 0 |
|---|---|
| Kadastraal inkomen (niet geïndexeerd) | € 0 |
| Kadastraal inkomen (geïndexeerd) | € 0 |
Bijkomende info
Gebouw
| Bouwcertificaat | Nee |
|---|---|
| Bewoonbaar (m²) | 200 |
| Verdieping | 0 |
| Badkamers | 0 |
| Slaapkamers | 0 |
| Verdiepingen | 0 |
| Garages | 0 |
| Parkeerplaatsen | 0 |
| Doucheruimtes | 0 |
| Toiletten | 0 |
Faciliteiten
| Elektrisch keuringsattest | Nee |
|---|
Perceel
| Overstromingsgevoelig | Geen |
|---|---|
| Voorkeurrecht | Nee |
| Bebouwde oppervlakte (m²) | 0 |
| Tuin oppervlakte (m²) | 0 |
| Oppervlakte terras (m²) | 0 |
Vergunning
| Vergunning | Vergunning beschikbaar |
|---|
Uitrusting
| Investeringspand | Nee |
|---|---|
| Geschikt voor praktijk | Nee |
| Parking | Nee |
| Garage | Nee |
| Thuiskantoor | Nee |
| Kelder | Nee |
| Zolder | Nee |
| Tuin | Nee |
| Terras | Nee |
| Lift | Nee |
| Rioolaansluiting | Ja |
| Gasaansluiting | Nee |
| Wateraansluiting | Ja |
| Elektriciteitsaansluiting | Ja |
| TV aansluiting | Nee |
| Internetaansluiting | Nee |
| Telefoonaansluiting | Nee |
Appartementsblok
| Naam residentie | KLINKAARDSTRAAT 210 KAPELLEN |
|---|---|
| Lift | Nee |
Een pand van
CEUSTERS
CEUSTERS
Onze experts in property management en vastgoedadvies stellen een kwalitatieve dienstverlening voorop. Creatief en flexibel gaat ons team op zoek naar kansen en oplossingen voor elke klant. Telkens een stapje verder. Naast onze kantoren in Antwerpen, Gent, Brussel, Hasselt en Rotterdam (Nederland), opereert CEUSTERS vanuit zes andere vestigingen verspreid over heel België. In deze snel veranderende wereld staat ons sterk inzicht in de lokale markt garant voor continuïteit.
KLINKAARDSTRAAT 210 KAPELLEN
Leer meer over vastgoed
05 November 2024
Bedrijfsvastgoed in transitie: ontdek de toekomst van werkplekken
16 October 2024
Opbrengsteigendom: een slim pad naar passief inkomen en vermogensgroei
09 September 2024
Tijdelijk vastgoed: flexibele oplossingen voor een dynamische markt
12 August 2024