Nieuw
Nieuwbouwappartement in centrum KEERBERGEN
€ 1.100 (+€ 75)
Een pand van Immo Vertommen
Favoriet
Jouw zoektocht
Jouw scoretabel voor dit pand
Aan het laden...
Jouw geplande bezichtigingen
Aan het laden...
Overzicht
- 101 m² bewoonbaar
- 2 Slaapkamer(s)
- 1 Badkamer(s)
- 2 Toilet(ten)
Overstromingsgevaar gebouw
Overstromingsgevaar perceel
Beschrijving
Nieuwbouwappartement met twee slaapkamers in het centrum van Keerbergen. Gesitueerd in een prachtige nieuwbouw residentie, met een goede oriëntatie en uitzicht op een groot terras. Alle voorzieningen, winkels, scholen, openbaar vervoer,... in de onmiddelijke omgeving.
Deze realisatie is gebouwd volgens de actuele energienormen en afgewerkt met kwaliteitsmaterialen. De moderne en functioneel doordachte architectuur biedt een maximaal ruimtegevoel. Alle appartementen genieten een ruime natuurlijke lichtinval door de vele glaspartijen en beschikken over royale terrassen, zodat u optimaal kan genieten van de zon.
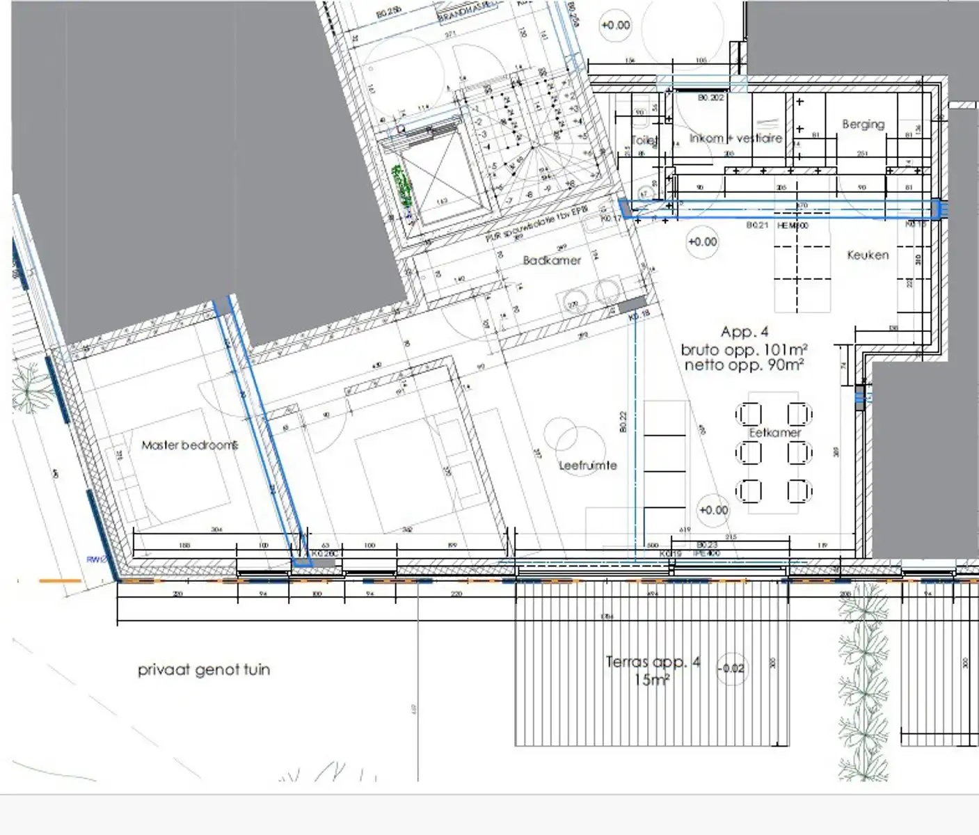
Indeling appartement:
Appartement: gelijkvloerse verdieping met een oppervlakte van 101 m².
Inkomhal met vestiaire, gastentoilet, leefruimte met open keuken, berging, twee slaapkamers en een badkamer.
Ruim terras met zuid orientatie.
Inpandige autostaanplaats en kelderberging.
Maandelijkse kosten 75 euro/maand.
Voor verdere inlichtingen staan wij graag tot uw dienst.
Contacteer Immo Vertommen Keerbergen 0496 26 47 26 of contact@immovertommen.be
Deze realisatie is gebouwd volgens de actuele energienormen en afgewerkt met kwaliteitsmaterialen. De moderne en functioneel doordachte architectuur biedt een maximaal ruimtegevoel. Alle appartementen genieten een ruime natuurlijke lichtinval door de vele glaspartijen en beschikken over royale terrassen, zodat u optimaal kan genieten van de zon.
Indeling appartement:
Appartement: gelijkvloerse verdieping met een oppervlakte van 101 m².
Inkomhal met vestiaire, gastentoilet, leefruimte met open keuken, berging, twee slaapkamers en een badkamer.
Ruim terras met zuid orientatie.
Inpandige autostaanplaats en kelderberging.
Maandelijkse kosten 75 euro/maand.
Voor verdere inlichtingen staan wij graag tot uw dienst.
Contacteer Immo Vertommen Keerbergen 0496 26 47 26 of contact@immovertommen.be
Nieuwbouwappartement met twee slaapkamers in het centrum van Keerbergen. Gesitueerd in een prachtige nieuwbouw residentie, met een goede oriëntatie en uitzicht op een groot terras. Alle voorzieningen, winkels, scholen, openbaar vervoer,... in de onmiddelijke omgeving.
Deze realisatie is gebouwd volgens de actuele energienormen en afgewerkt met kwaliteitsmaterialen. De moderne en functioneel doordachte architectuur biedt een maximaal ruimtegevoel. Alle appartementen genieten een ruime natuurlijke lichtinval door de vele glaspartijen en beschikken over royale terrassen, zodat u optimaal kan genieten van de zon.
Indeling appartement:
Appartement: gelijkvloerse verdieping met een oppervlakte van 101 m².
Inkomhal met vestiaire, gastentoilet, leefruimte met open keuken, berging, twee slaapkamers en een badkamer.
Ruim terras met zuid orientatie.
Inpandige autostaanplaats en kelderberging.
Maandelijkse kosten 75 euro/maand.
Voor verdere inlichtingen staan wij graag tot uw dienst.
Contacteer Immo Vertommen Keerbergen 0496 26 47 26 of contact@immovertommen.be
Deze realisatie is gebouwd volgens de actuele energienormen en afgewerkt met kwaliteitsmaterialen. De moderne en functioneel doordachte architectuur biedt een maximaal ruimtegevoel. Alle appartementen genieten een ruime natuurlijke lichtinval door de vele glaspartijen en beschikken over royale terrassen, zodat u optimaal kan genieten van de zon.
Indeling appartement:
Appartement: gelijkvloerse verdieping met een oppervlakte van 101 m².
Inkomhal met vestiaire, gastentoilet, leefruimte met open keuken, berging, twee slaapkamers en een badkamer.
Ruim terras met zuid orientatie.
Inpandige autostaanplaats en kelderberging.
Maandelijkse kosten 75 euro/maand.
Voor verdere inlichtingen staan wij graag tot uw dienst.
Contacteer Immo Vertommen Keerbergen 0496 26 47 26 of contact@immovertommen.be
Energie
![]() |
- EPC Certificaat: 24048-G-OWV_2022160967/EP02120/A001/D01/SD007
Zelfcheck
Op de kaart

Financieel
| Prijs | |
|---|---|
| Maandelijkse kosten | € 75 |
Bijkomende info
Gebouw
| Bouwjaar | 2026 |
|---|---|
| Staat | Nieuw |
| Bewoonbaar (m²) | 101 |
| Verdieping | 0 |
| Badkamers | 1 |
| Slaapkamers | 2 |
| Parkeerplaatsen | 1 |
| Toiletten | 2 |
Faciliteiten
| Type vloer | |
|---|---|
| Keuken uitrusting | Luxueus uitgerust |
| Elektrisch keuringsattest | Ja |
Perceel
| Overstromingsgevoelig | Geen |
|---|---|
| P-score | D |
| G-score | D |
| Tuin oppervlakte (m²) | 0 |
| Oriëntatie voorgevel | Zuid |
| Oriëntatie terras | Zuid |
Vergunning
| Vergunning | Geen beschikbaar |
|---|---|
| Verkavelingsvergunning | Geen beschikbaar |
Uitrusting
| Geschikt voor rolstoelgebruikers | Ja |
|---|---|
| Parking | Nee |
| Garage | Nee |
| Kelder | Ja |
| Tuin | Nee |
| Terras | Ja |
| Lift | Ja |
| Wateraansluiting | Ja |
| Elektriciteitsaansluiting | Ja |
| TV aansluiting | Ja |
| Telefoonaansluiting | Ja |
| Videofoon | Ja |
Een pand van
Immo Vertommen
IMMO VERTOMMEN
Waarom Immo Vertommen?
Thuis in uw streek
De familienaam Vertommen is al generaties lang geworteld in uw streek. Hier bouwden we een sterk, lokaal netwerk op. Hier brengen we kopers en verkopers samen. Hier voelen we ons thuis. Net zoals u.
Méér dan gewoon makelaar
Ons kantoor vormt een gedreven team met jarenlange ervaring in de vastgoed- en bouwsector. We worden erkend door het Beroepsinstituut voor Vastgoedmakelaars (BIV) en het Royal Institute of Chartered Surveyors (RICS). Bovendien bezitten we het unieke diploma van Master in Real Estate Management behaald aan de Antwerp Management School. Dit betekent dat we op juridisch, financieel, bouwtechnische en promotioneel vlak veel kennis bundelen. En die brengen we voor u graag in de praktijk.
Het beste van twee werelden
Het beroep van vastgoedmakelaar evolueert vliegensvlug onder andere door aangepaste regels, nieuwe promotiekanalen,... Als modern kantoor integreren we daarom altijd de laatste ontwikkelingen in onze aanpak. Toch raken sommige traditionele aspecten van ons vak nooit gedateerd zoals: een persoonlijk intakegesprek, veel aandacht voor detail en advies waarop u kan bouwen.
Leer meer over vastgoed
23 March 2026
Op Spotto zoeken als een pro: 10 slimme tips
26 October 2025
Fake huuradvertenties op Facebook
06 July 2025
Wie betaalt herstellingen aan de huurwoning?
01 July 2025
