Sint-Truidersteenweg 14 , 3500 Hasselt. Praktijk, kantoorruimte aan de rand van de Groene Boulevard Hasselt
Een pand van Immo Minnaert & Co
Favoriet
Jouw zoektocht
Jouw scoretabel voor dit pand
Aan het laden...
Jouw geplande bezichtigingen
Aan het laden...
Overzicht
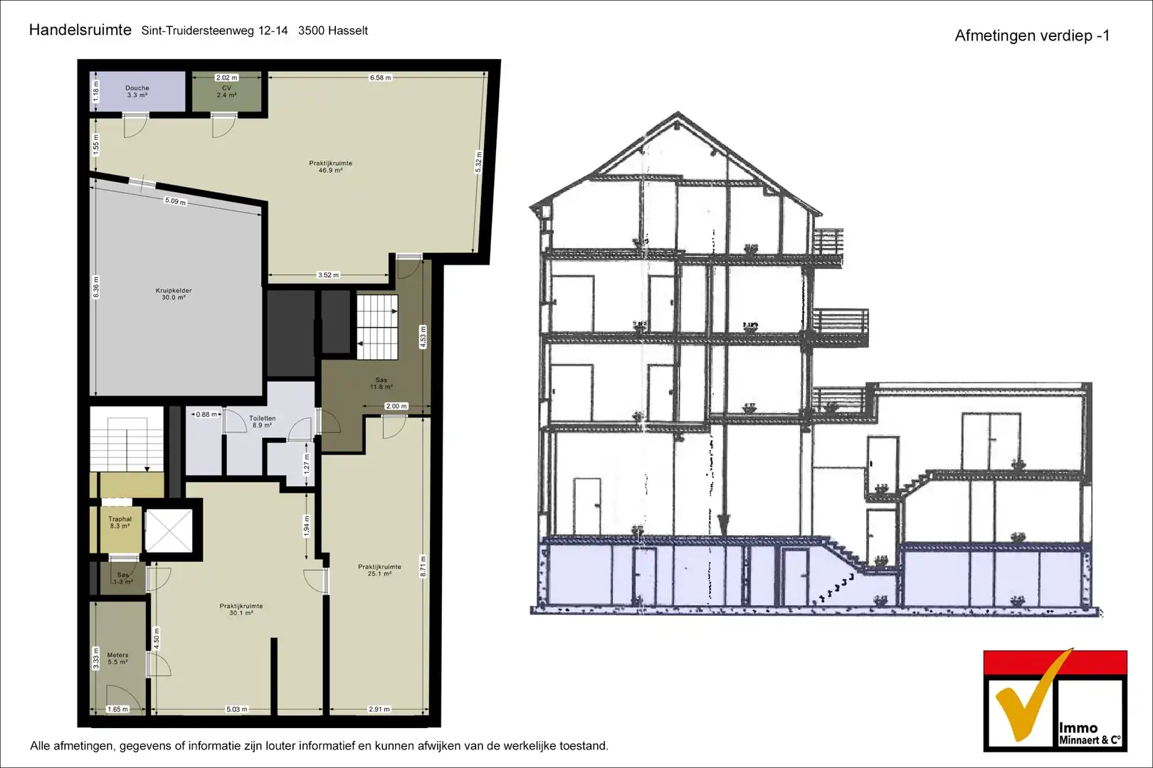
- 394 m² bewoonbaar
Beschrijving
Uniek multifunctioneel pand.
Dit uitzonderlijke pand biedt bijna 400 m² bruikbare ruimte, verdeeld over drie creatief met elkaar verbonden niveaus.
Dankzij de doordachte indeling kan een deel van het gebouw eenvoudig gekoppeld worden via een binnenlift, wat het geheel bijzonder toegankelijk en toekomstgericht maakt.
Het pand is uitermate geschikt als groepspraktijk of als gecombineerde business unit, maar leent zich ook voor andere professionele of creatieve invullingen. Op het gelijkvloers kan de tussenwand eenvoudig worden verwijderd, waardoor de ruimte flexibel kan worden aangepast aan uw noden.
Technisch is het gebouw royaal uitgerust met uitgebreid kabelwerk voor wifi en stroom, aangestuurd via een centraal domoticasysteem. Dit garandeert comfort, efficiëntie en gebruiksgemak doorheen het volledige gebouw.
Verder beschikt het pand over twee à drie parkeerplaatsen.
Architecturaal werd de voorgevel behouden, terwijl de achterbouw volledig nieuw werd opgetrokken en ongeveer 15 jaar oud is. Deze combinatie zorgt voor karakter aan de straatzijde en modern comfort aan de achterzijde.
Huurprijs: 3350/maand
Vraagprijs: € 675.000
Een bijzonder pand met veel mogelijkheden, klaar om verder vorm te geven aan uw ambities.
Dit uitzonderlijke pand biedt bijna 400 m² bruikbare ruimte, verdeeld over drie creatief met elkaar verbonden niveaus.
Dankzij de doordachte indeling kan een deel van het gebouw eenvoudig gekoppeld worden via een binnenlift, wat het geheel bijzonder toegankelijk en toekomstgericht maakt.
Het pand is uitermate geschikt als groepspraktijk of als gecombineerde business unit, maar leent zich ook voor andere professionele of creatieve invullingen. Op het gelijkvloers kan de tussenwand eenvoudig worden verwijderd, waardoor de ruimte flexibel kan worden aangepast aan uw noden.
Technisch is het gebouw royaal uitgerust met uitgebreid kabelwerk voor wifi en stroom, aangestuurd via een centraal domoticasysteem. Dit garandeert comfort, efficiëntie en gebruiksgemak doorheen het volledige gebouw.
Verder beschikt het pand over twee à drie parkeerplaatsen.
Architecturaal werd de voorgevel behouden, terwijl de achterbouw volledig nieuw werd opgetrokken en ongeveer 15 jaar oud is. Deze combinatie zorgt voor karakter aan de straatzijde en modern comfort aan de achterzijde.
Huurprijs: 3350/maand
Vraagprijs: € 675.000
Een bijzonder pand met veel mogelijkheden, klaar om verder vorm te geven aan uw ambities.
Energie
![]() |
- EPC Certificaat: 20260210-0003798128-KNR-1
- E-peil: E0
- Beglazing: Onbekend
Op de kaart

Financieel
| Prijs | |
|---|---|
| Maandelijkse kosten | € 0 |
| Kadastraal inkomen (niet geïndexeerd) | € 3.659 |
Bijkomende info
Gebouw
| Bouwjaar | 2012 |
|---|---|
| Staat | Goed onderhouden |
| Bouwcertificaat | Ja |
| Bewoonbaar (m²) | 394 |
| Badkamers | 0 |
| Slaapkamers | 0 |
| Verdiepingen | 0 |
| Garages | 0 |
| Parkeerplaatsen | 0 |
| Toiletten | 0 |
Faciliteiten
| Septische tank | Nee |
|---|
Perceel
| Overstromingsgevoelig | Geen |
|---|---|
| P-score | A |
| G-score | A |
| Bebouwde oppervlakte (m²) | 0 |
Vergunning
| Verkavelingsvergunning | Geen beschikbaar |
|---|
Uitrusting
| Investeringspand | Nee |
|---|---|
| Parking | Nee |
| Garage | Nee |
| Lift | Ja |
| Rioolaansluiting | Ja |
| Gasaansluiting | Ja |
| Wateraansluiting | Ja |
| Elektriciteitsaansluiting | Ja |
| Internetaansluiting | Ja |
| Telefoonaansluiting | Nee |
| Zonnepanelen | Nee |
| Zonneboiler | Nee |
| Alarm | Nee |
| Videofoon | Nee |
| Grondwaterput | Nee |
Appartementsblok
| Lift | Ja |
|---|---|
| Intercom | Nee |
Een pand van
Immo Minnaert & Co
Onze jacht op Uw succesvolle immo oplossingen
Uiteraard gaan we voor gebruikelijke opportuniteiten maar vooral in " de moeilijke gevallen " , erfgoed , bouwovertredingen , oriënterend bodemonderzoek
kunnen wij als oplossing voor U putten uit veel ervaring.
Praktijkruimte Sint-Truidersteenweg 14
Leer meer over vastgoed
04 January 2026
Zoek je een kantoor, een magazijn of… iets ertussenin? Bedrijfsvastgoed uitgelegd
05 November 2024
Bedrijfsvastgoed in transitie: ontdek de toekomst van werkplekken
16 October 2024
Opbrengsteigendom: een slim pad naar passief inkomen en vermogensgroei
09 September 2024
