Handelspand te huur op toplocatie in Hasselt
Prijs op aanvraag
Een pand van Nina Bruno Vastgoed
Favoriet
Jouw zoektocht
Jouw scoretabel voor dit pand
Aan het laden...
Jouw geplande bezichtigingen
Aan het laden...
Overzicht
- 99 m² grond
- 1 Toilet(ten)
Beschrijving
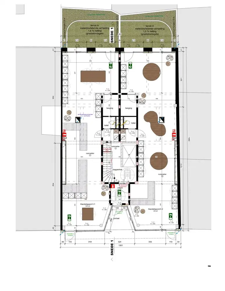
Dit uitstekend gelegen handelspand van 99m² bevindt zich in het hart van Hasselt, op de levendige Zuivelmarkt. Als een van de belangrijkste commerciële straten van de stad trekt de Zuivelmarkt veel passage, met een breed aanbod aan winkels, horeca en diensten. De dynamische omgeving zorgt voor een constante stroom van voetgangers en verkeer, wat deze locatie bijzonder aantrekkelijk maakt.
Het pand is ideaal voor diverse doeleinden, zoals detailhandel, horeca of kantoorruimte.
Met zijn toplocatie in een van de meest populaire winkelstraten van Hasselt biedt dit handelspand een geweldige kans voor ondernemers.
De nabijheid van openbaar vervoer en parkeergelegenheden zorgt ervoor dat de locatie gemakkelijk bereikbaar is voor zowel klanten als medewerkers.
Dit handelspand is onderdeel van een gerenoveerd nieuwbouwproject met 7 appartementen en 2 handelspanden. Het handelspand bevindt zich momenteel in de renovatiefase en zal in mei/juni 2025 klaar zijn in casco fase voor verdere afwerking. De huurder staat dus zelf in voor de verdere afwerking van het handelspand.
Graag meer informatie over dit handelspand? Contacteer ons via 089 20 34 34 of via info@ninabrunovastgoed.be
Het pand is ideaal voor diverse doeleinden, zoals detailhandel, horeca of kantoorruimte.
Met zijn toplocatie in een van de meest populaire winkelstraten van Hasselt biedt dit handelspand een geweldige kans voor ondernemers.
De nabijheid van openbaar vervoer en parkeergelegenheden zorgt ervoor dat de locatie gemakkelijk bereikbaar is voor zowel klanten als medewerkers.
Dit handelspand is onderdeel van een gerenoveerd nieuwbouwproject met 7 appartementen en 2 handelspanden. Het handelspand bevindt zich momenteel in de renovatiefase en zal in mei/juni 2025 klaar zijn in casco fase voor verdere afwerking. De huurder staat dus zelf in voor de verdere afwerking van het handelspand.
Graag meer informatie over dit handelspand? Contacteer ons via 089 20 34 34 of via info@ninabrunovastgoed.be
Dit uitstekend gelegen handelspand van 99m² bevindt zich in het hart van Hasselt, op de levendige Zuivelmarkt. Als een van de belangrijkste commerciële straten van de stad trekt de Zuivelmarkt veel passage, met een breed aanbod aan winkels, horeca en diensten. De dynamische omgeving zorgt voor een constante stroom van voetgangers en verkeer, wat deze locatie bijzonder aantrekkelijk maakt.
Het pand is ideaal voor diverse doeleinden, zoals detailhandel, horeca of kantoorruimte.
Met zijn toplocatie in een van de meest populaire winkelstraten van Hasselt biedt dit handelspand een geweldige kans voor ondernemers.
De nabijheid van openbaar vervoer en parkeergelegenheden zorgt ervoor dat de locatie gemakkelijk bereikbaar is voor zowel klanten als medewerkers.
Dit handelspand is onderdeel van een gerenoveerd nieuwbouwproject met 7 appartementen en 2 handelspanden. Het handelspand bevindt zich momenteel in de renovatiefase en zal in mei/juni 2025 klaar zijn in casco fase voor verdere afwerking. De huurder staat dus zelf in voor de verdere afwerking van het handelspand.
Graag meer informatie over dit handelspand? Contacteer ons via 089 20 34 34 of via info@ninabrunovastgoed.be
Het pand is ideaal voor diverse doeleinden, zoals detailhandel, horeca of kantoorruimte.
Met zijn toplocatie in een van de meest populaire winkelstraten van Hasselt biedt dit handelspand een geweldige kans voor ondernemers.
De nabijheid van openbaar vervoer en parkeergelegenheden zorgt ervoor dat de locatie gemakkelijk bereikbaar is voor zowel klanten als medewerkers.
Dit handelspand is onderdeel van een gerenoveerd nieuwbouwproject met 7 appartementen en 2 handelspanden. Het handelspand bevindt zich momenteel in de renovatiefase en zal in mei/juni 2025 klaar zijn in casco fase voor verdere afwerking. De huurder staat dus zelf in voor de verdere afwerking van het handelspand.
Graag meer informatie over dit handelspand? Contacteer ons via 089 20 34 34 of via info@ninabrunovastgoed.be
Energie
- E-peil: E0
- Beglazing: Onbekend
Op de kaart

Financieel
| Maandelijkse kosten | € 0 |
|---|
Bijkomende info
Gebouw
| Verdieping | 0 |
|---|---|
| Badkamers | 0 |
| Slaapkamers | 0 |
| Verdiepingen | 0 |
| Garages | 0 |
| Parkeerplaatsen | 0 |
| Toiletten | 1 |
Faciliteiten
| Septische tank | Nee |
|---|
Perceel
| Totale oppervlakte (m²) | 99 |
|---|---|
| Bebouwde oppervlakte (m²) | 0 |
| Oppervlakte terras (m²) | 0 |
Vergunning
| Verkavelingsvergunning | Geen beschikbaar |
|---|
Uitrusting
| Investeringspand | Nee |
|---|---|
| Parking | Nee |
| Garage | Nee |
| Opslagruimte | Ja |
| Terras | Ja |
| Lift | Nee |
| Rioolaansluiting | Nee |
| Gasaansluiting | Nee |
| Wateraansluiting | Nee |
| Elektriciteitsaansluiting | Nee |
| Internetaansluiting | Nee |
| Telefoonaansluiting | Nee |
| Zonnepanelen | Nee |
| Zonneboiler | Nee |
| Alarm | Nee |
| Videofoon | Nee |
| Grondwaterput | Nee |
Appartementsblok
| Lift | Nee |
|---|---|
| Intercom | Nee |
Een pand van
Nina Bruno Vastgoed
Nina Bruno Vastgoed - Uw (T)huis is onze zorg
Hulp nodig bij de zoektocht naar een nieuwe woning? Of zoek je begeleiding bij de verkoop van je woning? Het Nina Bruno Vastgoed team begeleidt jou met uitgebreide kennis van zaken in de complexe wereld van het vastgoed. Als kandidaat koper of verkoper staan we je graag met professioneel advies bij.
Graag meer informatie over al onze diensten?
HZ5/0.2
Leer meer over vastgoed
04 January 2026
Zoek je een kantoor, een magazijn of… iets ertussenin? Bedrijfsvastgoed uitgelegd
05 November 2024
Bedrijfsvastgoed in transitie: ontdek de toekomst van werkplekken
16 October 2024
Opbrengsteigendom: een slim pad naar passief inkomen en vermogensgroei
09 September 2024