Hedendaagse kantoren (870m²) op zichtlocatie
Een pand van Jansen Real Estate
Overzicht
- 870 m² bewoonbaar
Beschrijving
Standingvolle kantoren van 870 m² in het Business Park "De Alverberg", gelegen op een zichtlocatie langs de Grote Ring van Hasselt en nabij de aansluitingen van de E313 (afrit 27 Hasselt-West en afrit 28 Hasselt-Zuid). Er is een vlotte busverbinding en het station ligt op 1km afstand. Hasselt-centrum ligt op 2km. Op de site zijn er ondergrndse en bovengrondse parkeerplaatsen voorzien.
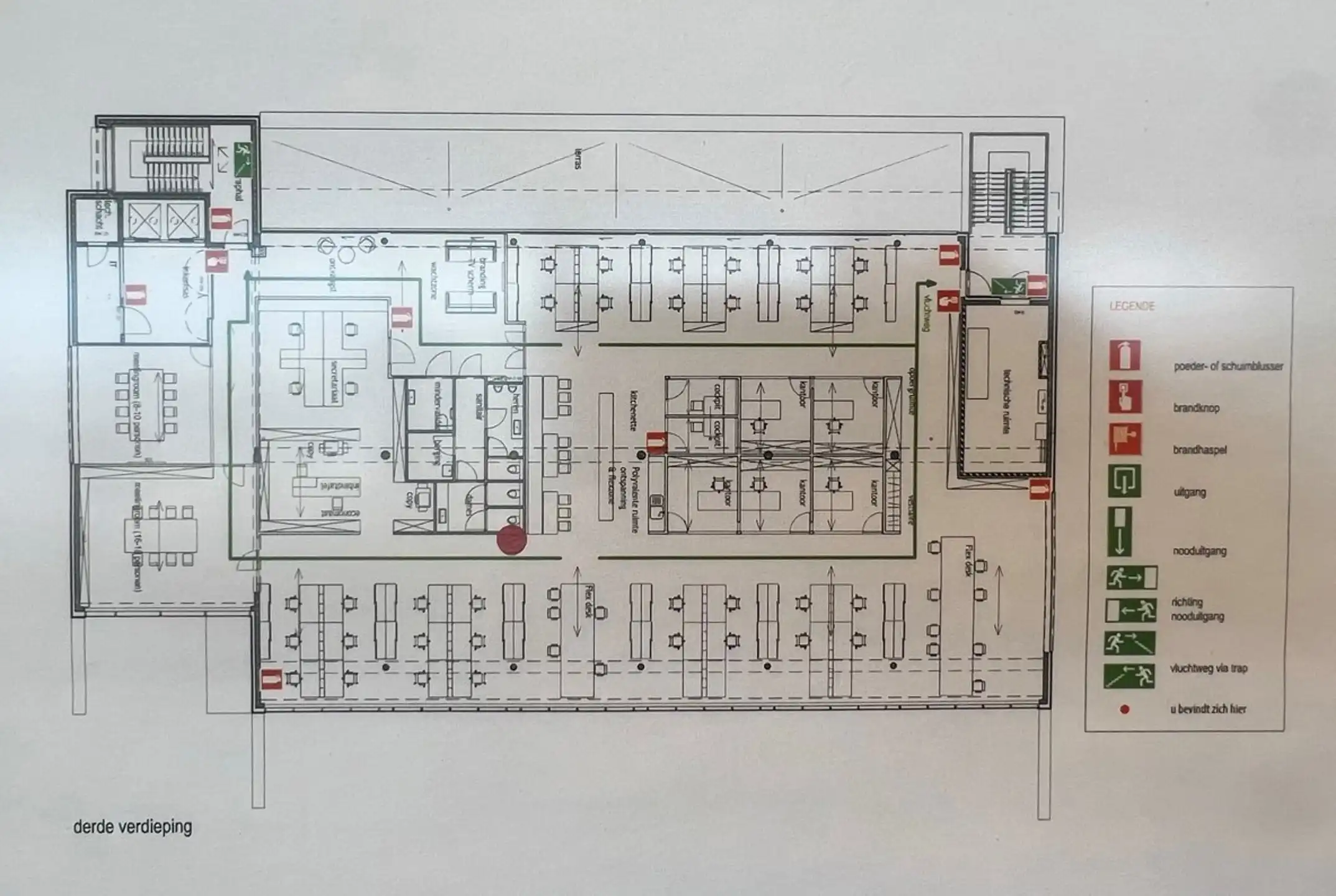
Momenteel is er één plateau van 870m² beschikbaar, op de 3de verdieping, met prachtige verzichten over de Grote Ring. Op deze verdieping vinden we ingerichte kantoren opgedeeld in verschillende aparte kantoren, vergaderzalen, sanitaire cellen, een keuken en een deel open space kantoren. Er zijn 40 parkeerplaatsen besschikbaar.
KENMERKEN:
- Fossielvrij gebouw
- Aparte HVAC systemen (warmtepompen).
- Floor to ceiling windows
- Groot privatief terras
TROEVEN:
- zichtlocatie
- 40 parkeerplaatsen
Info: info@jansenrealestate.be of 011/399050
Momenteel is er één plateau van 870m² beschikbaar, op de 3de verdieping, met prachtige verzichten over de Grote Ring. Op deze verdieping vinden we ingerichte kantoren opgedeeld in verschillende aparte kantoren, vergaderzalen, sanitaire cellen, een keuken en een deel open space kantoren. Er zijn 40 parkeerplaatsen besschikbaar.
KENMERKEN:
- Fossielvrij gebouw
- Aparte HVAC systemen (warmtepompen).
- Floor to ceiling windows
- Groot privatief terras
TROEVEN:
- zichtlocatie
- 40 parkeerplaatsen
Info: info@jansenrealestate.be of 011/399050
Standingvolle kantoren van 870 m² in het Business Park "De Alverberg", gelegen op een zichtlocatie langs de Grote Ring van Hasselt en nabij de aansluitingen van de E313 (afrit 27 Hasselt-West en afrit 28 Hasselt-Zuid). Er is een vlotte busverbinding en het station ligt op 1km afstand. Hasselt-centrum ligt op 2km. Op de site zijn er ondergrndse en bovengrondse parkeerplaatsen voorzien.
Momenteel is er één plateau van 870m² beschikbaar, op de 3de verdieping, met prachtige verzichten over de Grote Ring. Op deze verdieping vinden we ingerichte kantoren opgedeeld in verschillende aparte kantoren, vergaderzalen, sanitaire cellen, een keuken en een deel open space kantoren. Er zijn 40 parkeerplaatsen besschikbaar.
KENMERKEN:
- Fossielvrij gebouw
- Aparte HVAC systemen (warmtepompen).
- Floor to ceiling windows
- Groot privatief terras
TROEVEN:
- zichtlocatie
- 40 parkeerplaatsen
Info: info@jansenrealestate.be of 011/399050
Momenteel is er één plateau van 870m² beschikbaar, op de 3de verdieping, met prachtige verzichten over de Grote Ring. Op deze verdieping vinden we ingerichte kantoren opgedeeld in verschillende aparte kantoren, vergaderzalen, sanitaire cellen, een keuken en een deel open space kantoren. Er zijn 40 parkeerplaatsen besschikbaar.
KENMERKEN:
- Fossielvrij gebouw
- Aparte HVAC systemen (warmtepompen).
- Floor to ceiling windows
- Groot privatief terras
TROEVEN:
- zichtlocatie
- 40 parkeerplaatsen
Info: info@jansenrealestate.be of 011/399050
Energie
Op de kaart

Financieel
Bijkomende info
Gebouw
| Bewoonbaar (m²) | 870 |
|---|---|
| Verdieping | 3 |
| Badkamers | 0 |
| Slaapkamers | 0 |
| Parkeerplaatsen | 40 |
Faciliteiten
| Type vloer |
|---|
Perceel
| Tuin oppervlakte (m²) | 0 |
|---|
Vergunning
| Vergunning | Geen beschikbaar |
|---|---|
| Verkavelingsvergunning | Geen beschikbaar |
Uitrusting
| Parking | Ja |
|---|---|
| Garage | Nee |
| Tuin | Nee |
| Terras | Nee |
| Lift | Ja |
| Wateraansluiting | Ja |
| Elektriciteitsaansluiting | Ja |
| Telefoonaansluiting | Ja |
Een pand van
Jansen Real Estate
Vastgoed op het ritme van je leven
Bij Jansen Real Estate geloven we dat je je leven moet kunnen leiden zoals je zelf wil. Met zoveel mogelijk vrijheden, met zo veel mogelijk persoonlijke groeimogelijkheden, en zoveel mogelijk levensvreugde.
Ons vastgoed, waar we wonen, waar we werken, moet daarom met ons mee kunnen evalueren. Het mag geen rem zijn op onze levensloop, maar moet nieuwe kansen bieden. In die sleutelmomenten, als we onze vleugels spreiden, als we kinderen krijgen, een eigen zaak of project opstarten, als we ouder worden, en kleinkinderen krijgen,… dan zijn wij er om te helpen.
Maar op jouw ritme…
Wij zijn gespecialiseerd in Residentieel vastgoed, Bedrijfsvastgoed, Nieuwbouwprojecten en Rentmeesterschap.
4752788
Leer meer over vastgoed
04 January 2026
Zoek je een kantoor, een magazijn of… iets ertussenin? Bedrijfsvastgoed uitgelegd
05 November 2024
Bedrijfsvastgoed in transitie: ontdek de toekomst van werkplekken
16 October 2024
Opbrengsteigendom: een slim pad naar passief inkomen en vermogensgroei
09 September 2024