Kantorencomplex vlakbij station Hasselt te huur
Prijs op aanvraag
Een pand van CEUSTERS
Jouw zoektocht
Overzicht
- 232 m² bewoonbaar
Beschrijving
Goed gelegen kantorencomplex op een zeer centrale ligging, vlakbij het gerechtsgebouw, het centrum van Hasselt en tegenover het station met voldoende ondergrondse parkeergelegenheid.
Deze locatie geniet een prima bereikbaarheid door trein en bus, en met de wagen . De Astridparking bevindt zich op 150m.
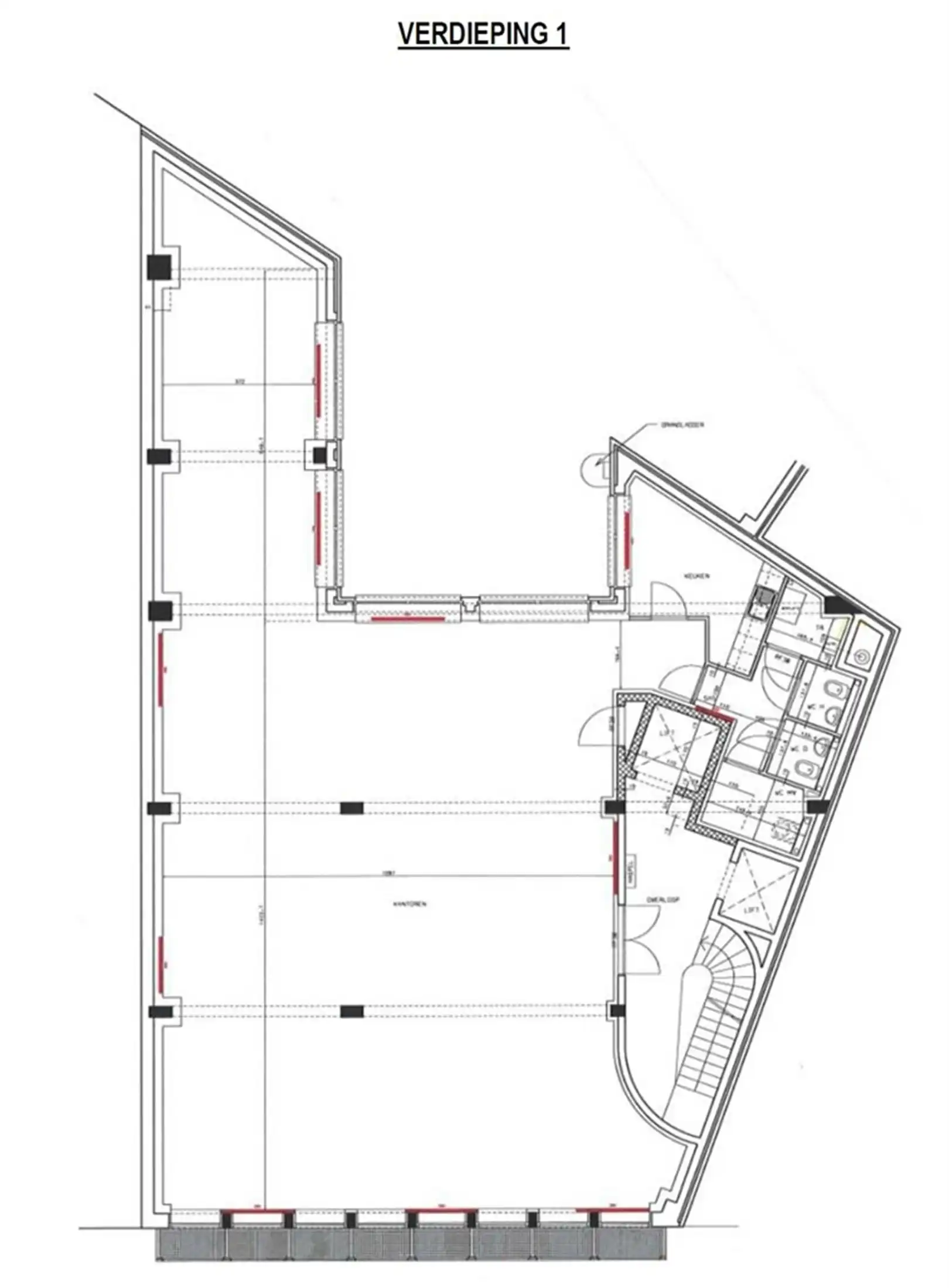
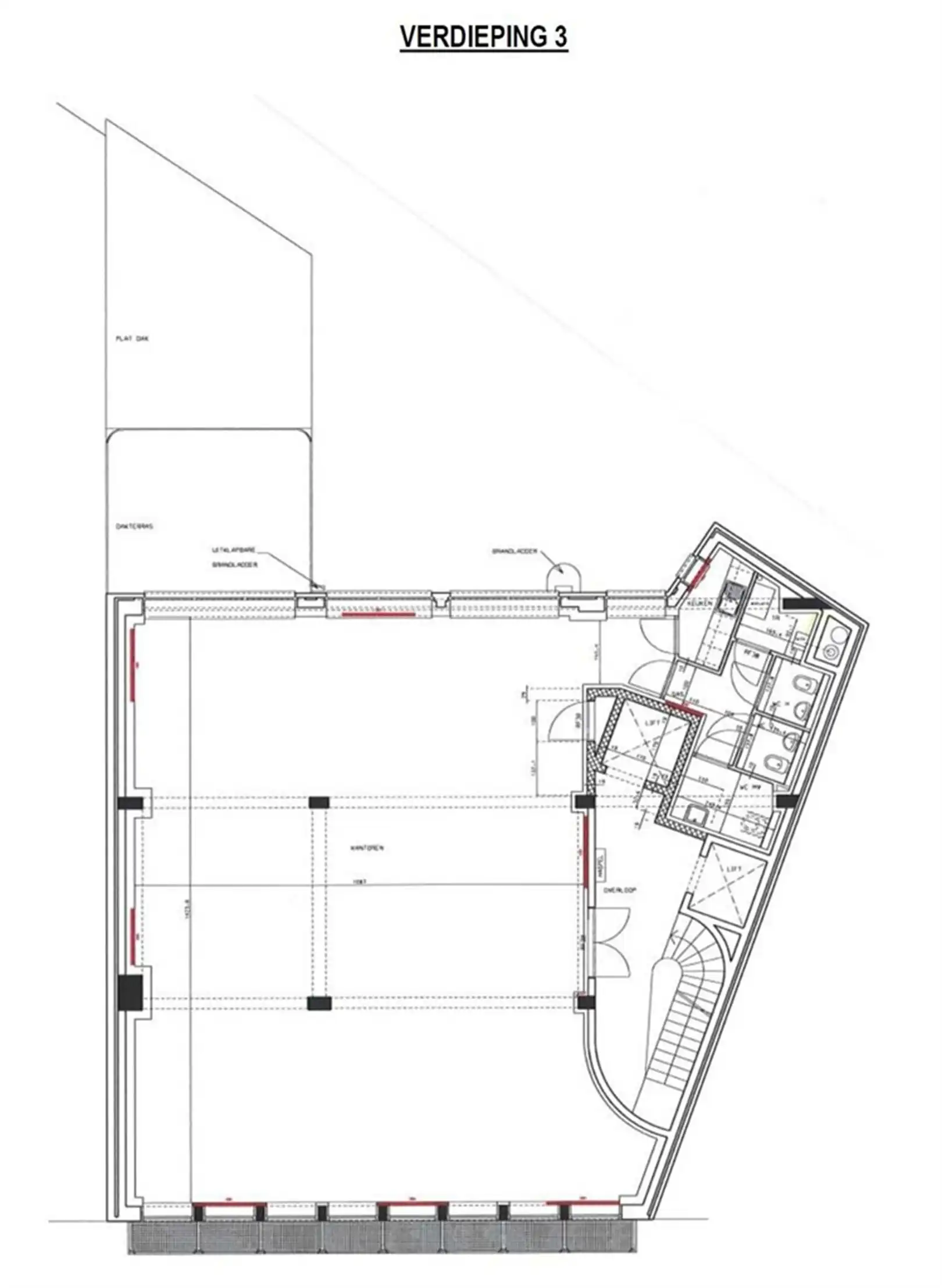
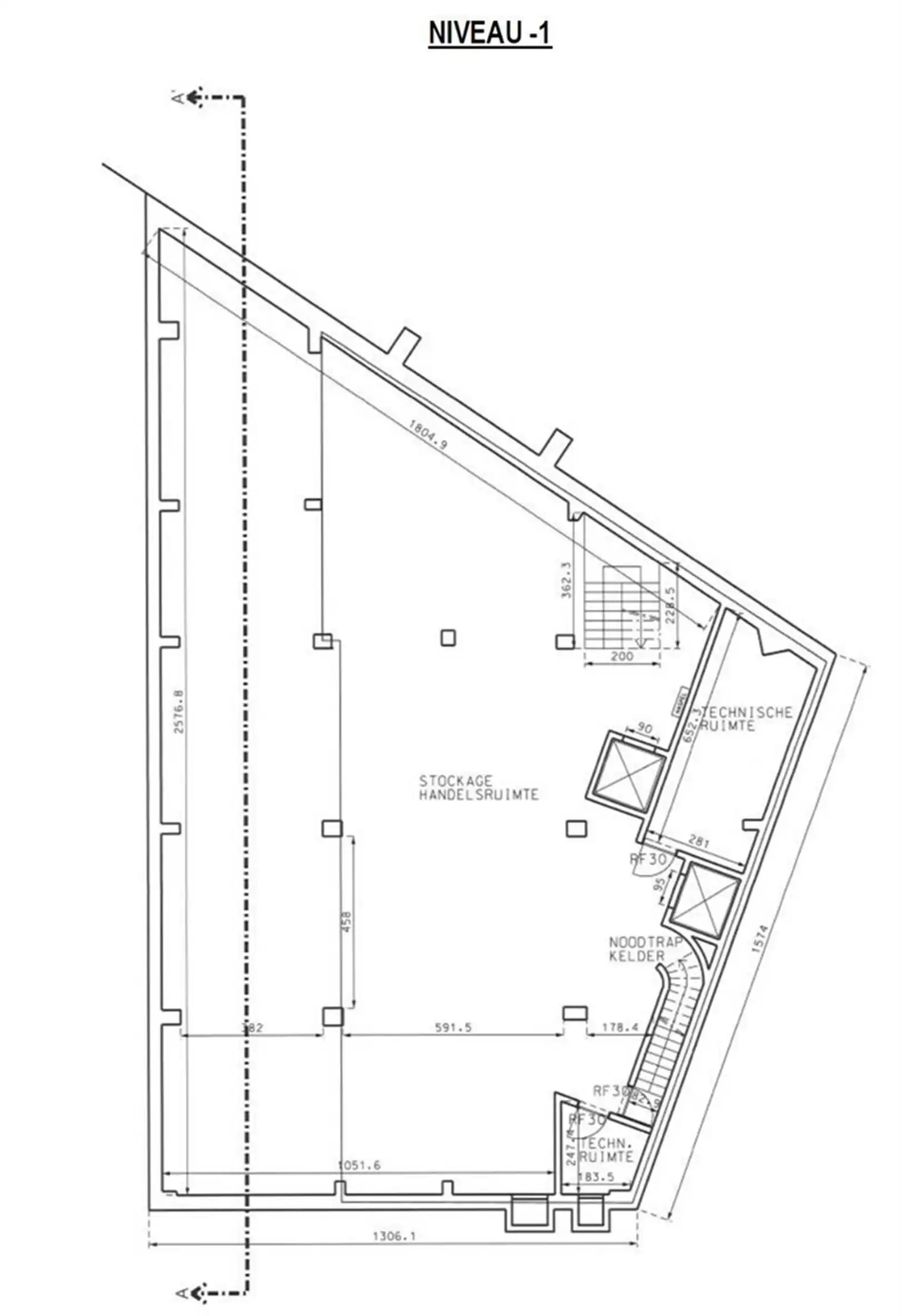
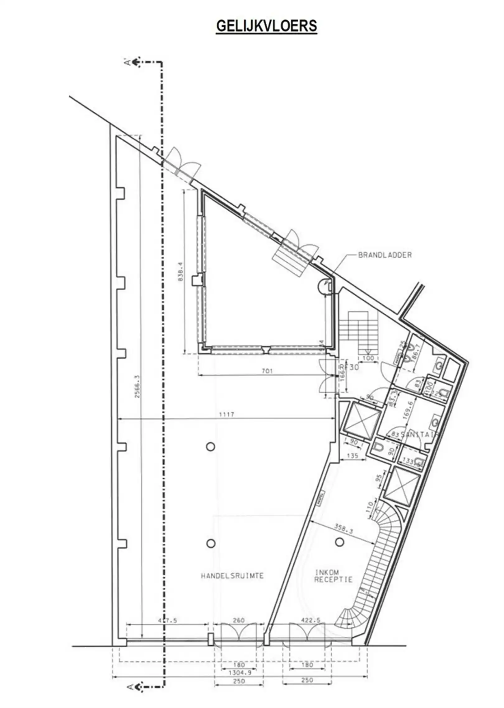
Het gebouw is opgedeeld in 5 bovengrondse verdiepingen en een niveau -1.
Op de gelijkvloerse verdieping werd een ruimte inkomhal voorzien, met toegang tot 2 liften en de trappenhal.
Elke verdieping beschikt over een kantoorruimte, sanitair voor dames en heren, keuken en centrale verwarming op aardgas. De nutsvoorzieningen zijn individueel per verdieping.
Op het niveau -1 is er een stockageruimte.
Momenteel te huur - te koop:
- gelijkvloers: inkom burelen 45 m² - handelsruimte 215 m²
- 1ste verdieping - bruto 283 m² = €3.962,00/maand
- 2de verdieping - bruto 276 m² met buitenterras van 52 m² = €3.864,00/maand
- 3de verdieping - bruto 232 m² = €3.248,00/maand
- 4de verdieping - bruto 232 m² = €3.248,00/maand
Parking: mogelijkheid tot parkeren langs de kelderverdiepingen van het nieuw project, in ondergrondse parking (50 plaatsen)
De gemeenschappelijke lasten bedrage €120 per maand per verdieping (kosten lift, onderhoud gang).
Onroerende voorheffing: nog te bepalen.
Energie
![]() |
- EPC Certificaat: 20230602-0020888670-NR-1
- E-peil: E0
- Beglazing: Onbekend
Op de kaart

Financieel
| Maandelijkse kosten | € 0 |
|---|---|
| Kadastraal inkomen (niet geïndexeerd) | € 0 |
| Kadastraal inkomen (geïndexeerd) | € 0 |
Bijkomende info
Gebouw
| Bouwcertificaat | Nee |
|---|---|
| Bewoonbaar (m²) | 232 |
| Verdieping | 0 |
| Badkamers | 0 |
| Slaapkamers | 0 |
| Verdiepingen | 0 |
| Garages | 0 |
| Parkeerplaatsen | 0 |
| Doucheruimtes | 0 |
| Toiletten | 0 |
Faciliteiten
| Elektrisch keuringsattest | Ja |
|---|
Perceel
| Overstromingsgevoelig | Geen |
|---|---|
| P-score | A |
| G-score | A |
| Voorkeurrecht | Nee |
| Bebouwde oppervlakte (m²) | 0 |
| Tuin oppervlakte (m²) | 0 |
| Oppervlakte terras (m²) | 0 |
Vergunning
| Vergunning | Vergunning beschikbaar |
|---|
Uitrusting
| Investeringspand | Nee |
|---|---|
| Geschikt voor praktijk | Nee |
| Parking | Nee |
| Garage | Nee |
| Thuiskantoor | Nee |
| Kelder | Nee |
| Zolder | Nee |
| Tuin | Nee |
| Terras | Nee |
| Lift | Nee |
| Rioolaansluiting | Ja |
| Gasaansluiting | Ja |
| Wateraansluiting | Ja |
| Elektriciteitsaansluiting | Ja |
| TV aansluiting | Ja |
| Internetaansluiting | Ja |
| Telefoonaansluiting | Ja |
Appartementsblok
| Naam residentie | Stationsplein 11, Hasselt |
|---|---|
| Lift | Nee |
