LAREGO - KMO UNIT D1 - 300m² binnen + 600m² buiten - a/d voormalige Carglass Site
€ 2.412,5
Een pand van IMMO LIMBURGS VASTGOED
Favoriet
Jouw zoektocht
Jouw scoretabel voor dit pand
Aan het laden...
Jouw geplande bezichtigingen
Aan het laden...
Overzicht
- 900 m² grond
Overstromingsgevaar gebouw
Overstromingsgevaar perceel
Beschrijving
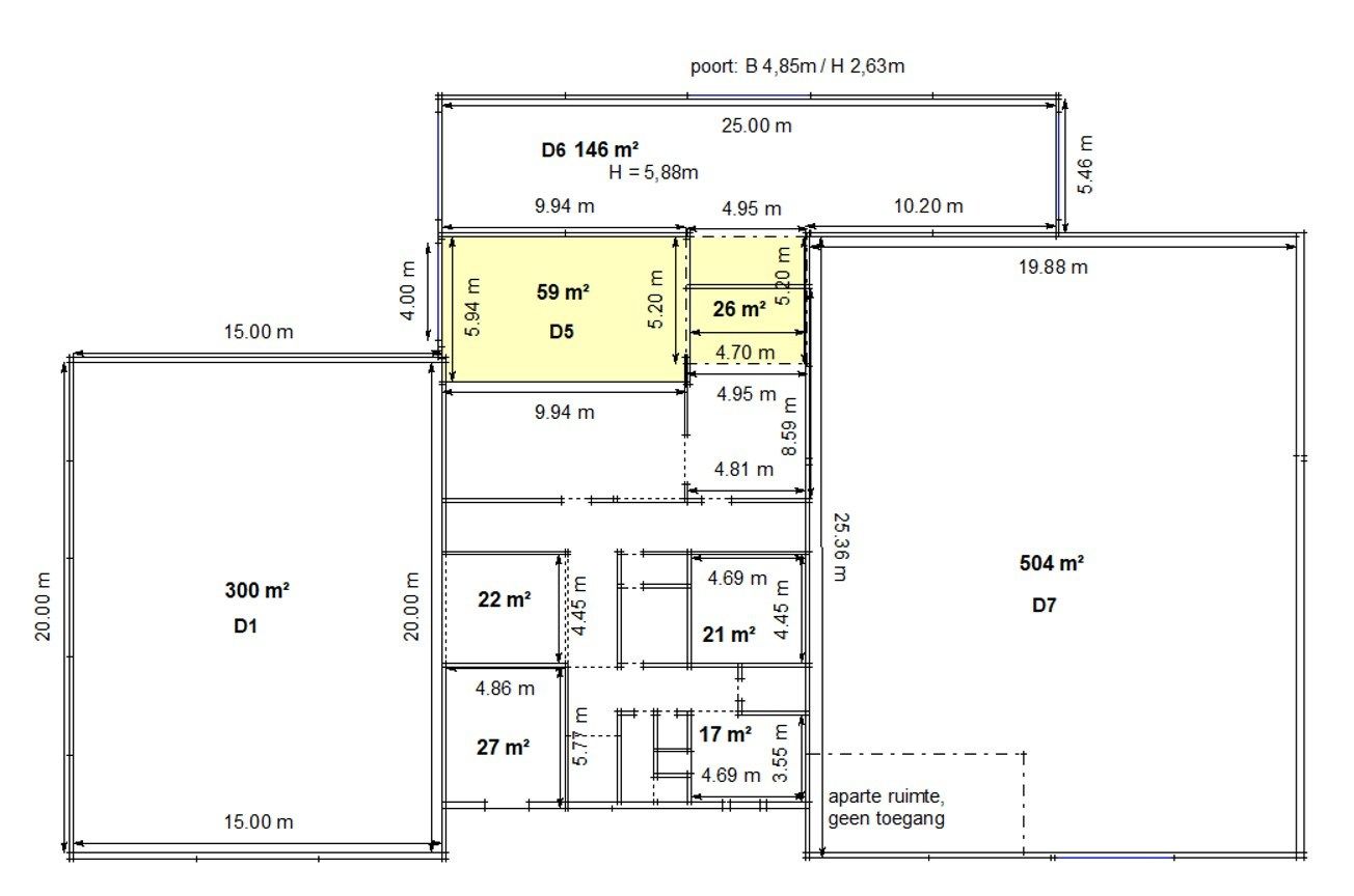
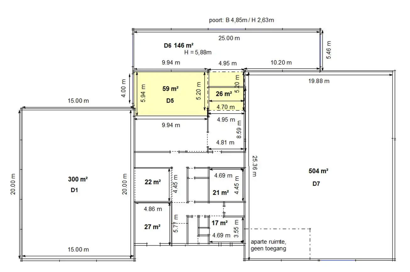
LAREGO - KMO UNIT D1 - 300m² binnenruimte + 600m² buitenruimte - Bedrijvenpark "LAREGO", gelegen op de voormalige site van Carglass. Deze indrukwekkende site van 17.000 m² groot is gelegen tussen de Hasseltse Ring en het Albertkanaal, op amper 5,4 km van de op- en afrit E313, 2,3 km van het station en bushalte op 130 m.
De opslagruimte biedt in totaal 900 m², waarvan 300 m² binnenruimte en 600 m² buitenruimte. De unit is ideaal voor opslag, lichte productie of als uitvalsbasis voor aannemers of bouwbedrijven. De binnenruimte beschikt over 3 sectionaalpoorten, een vrije hoogte van 6 meter, veel natuurlijk daglicht en een functionele, onderhoudsvriendelijke betonvloer. De buitenruimte is geschikt voor stockage, parkeren of laden en lossen.
Huurprijs € 2.210,-/maand (€ 1.490,- voor de unit + € 720,- voor buitenruimte)
️ Troeven
• 900 m² totaal (300 m² binnen + 600 m² buiten)
• Instapklaar en recent gerenoveerd
• Zonnepanelen op de site
• 3 sectionaal poorten
• 6 meter vrije hoogte
• Camerabewaking aanwezig
• Betonvloer met hoge draagkracht
• 220V en 380V aansluiting
• Gemeenschappelijke toiletten
• 24/7 toegankelijk
• Flexibele kantoorruimte beschikbaar elders op de site
Voor meer info/indelingsplannen/bezichtiging bel Dario op 0472/09.27.56 of 011/22.19.17 - dario@limburgsvastgoed.be of kijk op www.limburgsvastgoed.be
De opslagruimte biedt in totaal 900 m², waarvan 300 m² binnenruimte en 600 m² buitenruimte. De unit is ideaal voor opslag, lichte productie of als uitvalsbasis voor aannemers of bouwbedrijven. De binnenruimte beschikt over 3 sectionaalpoorten, een vrije hoogte van 6 meter, veel natuurlijk daglicht en een functionele, onderhoudsvriendelijke betonvloer. De buitenruimte is geschikt voor stockage, parkeren of laden en lossen.
Huurprijs € 2.210,-/maand (€ 1.490,- voor de unit + € 720,- voor buitenruimte)
️ Troeven
• 900 m² totaal (300 m² binnen + 600 m² buiten)
• Instapklaar en recent gerenoveerd
• Zonnepanelen op de site
• 3 sectionaal poorten
• 6 meter vrije hoogte
• Camerabewaking aanwezig
• Betonvloer met hoge draagkracht
• 220V en 380V aansluiting
• Gemeenschappelijke toiletten
• 24/7 toegankelijk
• Flexibele kantoorruimte beschikbaar elders op de site
Voor meer info/indelingsplannen/bezichtiging bel Dario op 0472/09.27.56 of 011/22.19.17 - dario@limburgsvastgoed.be of kijk op www.limburgsvastgoed.be
Energie
- Verwarming: Geen
- Beglazing: Onbekend
Op de kaart

Financieel
| Prijs | |
|---|---|
| Kadastraal inkomen (niet geïndexeerd) | € 0 |
| Kadastraal inkomen (geïndexeerd) | € 0 |
Bijkomende info
Gebouw
| Is beschermd | Nee |
|---|
Faciliteiten
| Luiken | Nee |
|---|---|
| Primair verwarmingstype | Geen verwarming |
| Brandstof primaire verwarming | Geen |
| Warm water type | Geen verwarming |
Perceel
| P-score | D |
|---|---|
| G-score | D |
| Voorkeurrecht | Nee |
| Totale oppervlakte (m²) | 900 |
| Bebouwde oppervlakte (m²) | 300 |
Vergunning
| Vergunning | Vergunning beschikbaar |
|---|---|
| Verkavelingsvergunning | Geen beschikbaar |
| Bouwovertreding dagvaardiging | Geen |
Uitrusting
| Meerdere eigenaars | Nee |
|---|---|
| Geschikt als kangoeroewoning | Nee |
| Geschikt voor rolstoelgebruikers | Nee |
| Geschikt voor praktijk | Nee |
| Volledig onderkelderd | Nee |
| Parking | Nee |
| Garage | Nee |
| Thuiskantoor | Nee |
| Kelder | Nee |
| Zolder | Nee |
| Opslagruimte | Nee |
| Tuin | Nee |
| Terras | Nee |
| Lift | Nee |
| Rioolaansluiting | Nee |
| Gasaansluiting | Nee |
| Wateraansluiting | Nee |
| Elektriciteitsaansluiting | Nee |
| TV aansluiting | Nee |
| Internetaansluiting | Nee |
| Zonnepanelen | Nee |
| Zonneboiler | Nee |
| Alarm | Nee |
| Zwembad | Nee |
| Jacuzzi | Nee |
| Toonzaal | Nee |
| Ventilatie | Nee |
Appartementsblok
| Lift | Nee |
|---|---|
| Intercom | Nee |
Een pand van
IMMO LIMBURGS VASTGOED
Makelaars voor woning en bedrijf
Immo Limburgs Vastgoed, reeds meer dan 40 jaar actief op de vastgoedmarkt, is gespecialiseerd in bemiddeling bij verkoop en verhuur van onroerende goederen.
Momenteel zijn wij één van de marktleiders in Limburg. Wij bieden continu meer dan 200 eigendommen aan, in zowel residentieel- als bedrijfsvastgoed. Ook de verkoop van nieuwbouw appartementen en woningen op plan vormt een belangrijk onderdeel van ons werkgebied.
Een dynamisch en jong team, allen met opleiding Vastgoedmakelaar, werkt met ambitie, inzet en gedrevenheid aan de professionele afhandeling van uw dossier.
Ons team
DP - 5153210
Leer meer over vastgoed
04 January 2026
Zoek je een kantoor, een magazijn of… iets ertussenin? Bedrijfsvastgoed uitgelegd
05 November 2024
Bedrijfsvastgoed in transitie: ontdek de toekomst van werkplekken
16 October 2024
Opbrengsteigendom: een slim pad naar passief inkomen en vermogensgroei
09 September 2024