Multifunctioneel kantoorgebouw met veel parking te Houthalen
Prijs op aanvraag
Een pand van CEUSTERS
Jouw zoektocht
Overzicht
- 112 m² bewoonbaar
Beschrijving
Goed gelegen en gerenoveerd kantoorgebouw te Houthalen geniet van veel parkeergelegenheid.
Het recent gerenoveerde kantoor is gelegen aan het wandelgebied Tenhaagdoornheide.
- Onmiddelijk beschikbaar
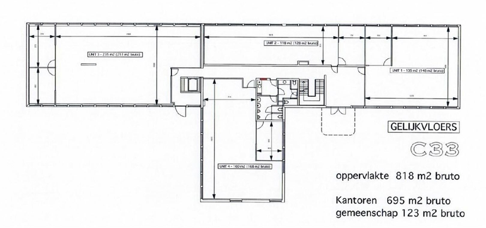
- Indeling 8 units, samen te voegen
- Verlaagd plafond met inlegtegels
- Inbouw LED-armaturen
- Airco
- Sanitair H/D en keukenblok per verdieping
- Toegangscontrole met badge/codeklavier, omheiningspoort
- Lift
- Fietsenberging
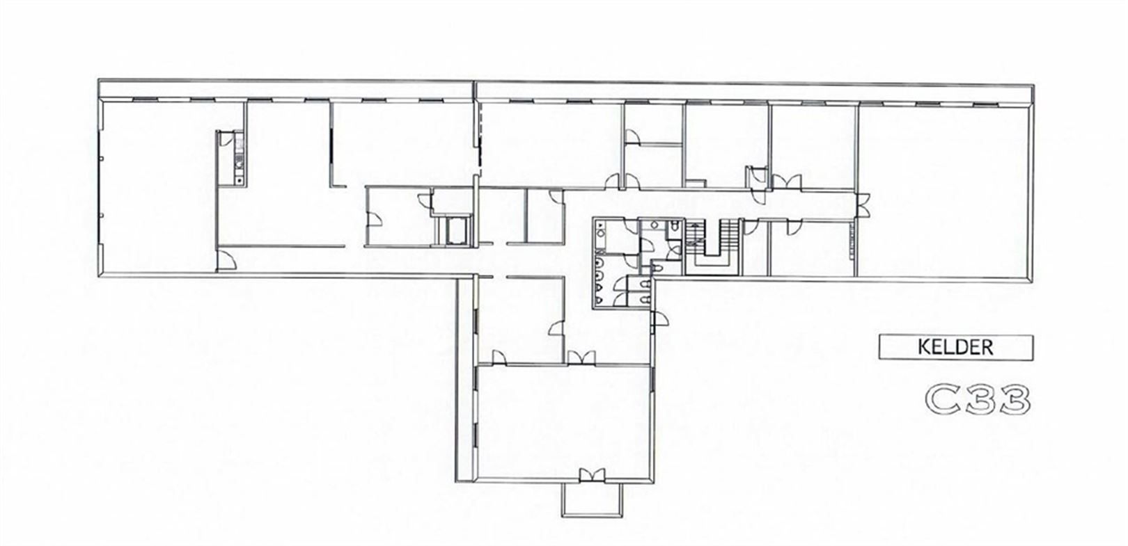
- Beringen beschikbaar in kelder 800 m² opdeelbaar
- 10-tal bezoekersparkings met tijdsbeperking
Beschikbare units:
Gelijkvloers
- Unit : 169 m²
- Unit 3: 287 m²
- Unit 4: 192 m²
Verdieping 1
- Unit 5: 239 m²
- Unit 6: 112 m²
- Unit 7: 299 m²
- Unit 8: 192 m²
Het is alsook mogelijk om unit 7 en 8 samen te voegen. Dit komt neer op +/- 500 m².
Prijzen:
- Kantoorruimte: €12/m²/maand
- Berging/opslagruimte: €6/m²/maand
- Parkeerplaatsen: €60/maand
Voorwaarden:
- Gemeenschappelijke kosten: afhankelijk van de wensen van de huurder
- Privatieve kosten: aparte tellers elektriciteit
- Onroerende voorheffing: verrekend in de gemeenschappelijke kosten
- Contract: gemeen huurrecht 6-9 (voor contract van 3 jaar is de huurprijs op aanvraag)
- Waarborg: 3 maanden huur
Centrale en bereikbare ligging voor regio Limburg. Vlakbij de E314, op slechts 500 meter.
Energie
![]() |
- EPC Certificaat: 20240422-0017512533-NR-1
- E-peil: E0
- Beglazing: Onbekend
Op de kaart

Financieel
| Maandelijkse kosten | € 0 |
|---|---|
| Kadastraal inkomen (niet geïndexeerd) | € 0 |
| Kadastraal inkomen (geïndexeerd) | € 0 |
Bijkomende info
Gebouw
| Bouwcertificaat | Nee |
|---|---|
| Bewoonbaar (m²) | 112 |
| Verdieping | 0 |
| Badkamers | 0 |
| Slaapkamers | 0 |
| Verdiepingen | 0 |
| Garages | 0 |
| Parkeerplaatsen | 0 |
| Doucheruimtes | 0 |
| Toiletten | 0 |
Faciliteiten
| Elektrisch keuringsattest | Ja |
|---|
Perceel
| Overstromingsgevoelig | Geen |
|---|---|
| Voorkeurrecht | Nee |
| Bebouwde oppervlakte (m²) | 0 |
| Tuin oppervlakte (m²) | 0 |
| Oppervlakte terras (m²) | 0 |
Vergunning
| Vergunning | Vergunning beschikbaar |
|---|
Uitrusting
| Investeringspand | Nee |
|---|---|
| Geschikt voor praktijk | Nee |
| Parking | Nee |
| Garage | Nee |
| Thuiskantoor | Nee |
| Kelder | Nee |
| Zolder | Nee |
| Tuin | Nee |
| Terras | Nee |
| Lift | Nee |
| Rioolaansluiting | Ja |
| Gasaansluiting | Ja |
| Wateraansluiting | Ja |
| Elektriciteitsaansluiting | Ja |
| TV aansluiting | Ja |
| Internetaansluiting | Ja |
| Telefoonaansluiting | Ja |
Appartementsblok
| Naam residentie | DONDERSLAGWEG 25 |
|---|---|
| Lift | Nee |
