Beschikbaar vanaf 1 jan. 2026
Handelsruimte te huur in Residentie Kapellehof te Heusden
Een pand van Theunis Vastgoed
Favoriet
Jouw zoektocht
Jouw scoretabel voor dit pand
Aan het laden...
Jouw geplande bezichtigingen
Aan het laden...
Overzicht
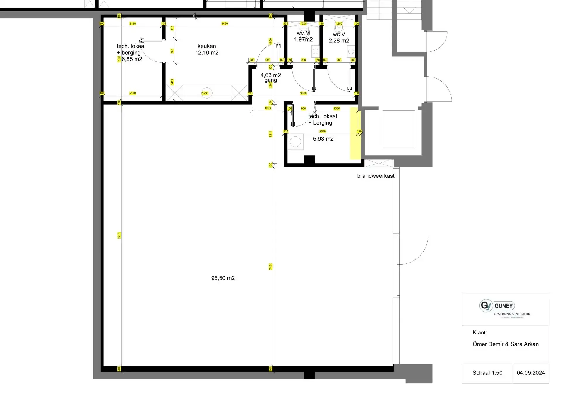
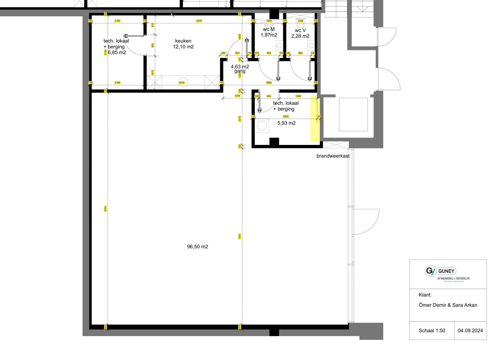
- 130.26 m² bewoonbaar
- 2 Toilet(ten)
Beschrijving
Volledig afgewerkt handelspand van 130,26 m² te huur op een zeer centrale ligging in het centrum van Heusden.
Momenteel is het pand ingericht als schoonheidssalon maar indien gewenst kan het opnieuw een open ruimte worden om aan uw specifieke behoeften te voldoen.
Gemakkelijk bereikbaar met het openbaar vervoer en met voldoende parkeergelegenheid in de buurt is deze zaak ideaal gelegen qua bereikbaarheid voor uw klanten.
Beschikbaar vanaf 01/01/2026.
Huurprijs € 1.500 excl. BTW per maand en gemeenschappelijke kosten € 75 per maand.
Er is ook de mogelijkheid om een ondergrondse autostaanplaats te huren (€ 150,00 excl. BTW per maand)
Contacteer ons voor meer info via 0498/73.32.06 of info@theunisvastgoed.be
Momenteel is het pand ingericht als schoonheidssalon maar indien gewenst kan het opnieuw een open ruimte worden om aan uw specifieke behoeften te voldoen.
Gemakkelijk bereikbaar met het openbaar vervoer en met voldoende parkeergelegenheid in de buurt is deze zaak ideaal gelegen qua bereikbaarheid voor uw klanten.
Beschikbaar vanaf 01/01/2026.
Huurprijs € 1.500 excl. BTW per maand en gemeenschappelijke kosten € 75 per maand.
Er is ook de mogelijkheid om een ondergrondse autostaanplaats te huren (€ 150,00 excl. BTW per maand)
Contacteer ons voor meer info via 0498/73.32.06 of info@theunisvastgoed.be
Energie
![]() |
- EPC Certificaat: 0003812173-KNR-1
- Beglazing: Standaard dubbel
Op de kaart

Financieel
| Prijs | |
|---|---|
| Maandelijkse kosten | € 0 |
Bijkomende info
Gebouw
| Bouwjaar | 2019 |
|---|---|
| Staat | Nieuw |
| Is beschermd | Nee |
| Bouwcertificaat | Nee |
| Bewoonbaar (m²) | 130.26 |
| Verdieping | 0 |
| Gevels | 1 |
| Slaapkamers | 0 |
| Verdiepingen | 0 |
| Keukens | 1 |
| Kantoorruimtes | 1 |
| Opslagruimtes | 2 |
| Toiletten | 2 |
Ruimtes
| Keuken | 12.1 m² |
|---|---|
| Kamer 1 | 96.5 m² |
| Kamer 2 | 4.63 m² |
| Kamer 3 | 4.25 m² |
| Opbergruimte | 12.78 m² |
Faciliteiten
| Keuken | EXTRA_INFO.OUTFITTING.VALUE.SEPARATEKITCHEN |
|---|---|
| Materiaal ramenomlijstingen | Aluminium |
| Beglazing | Standaard dubbel |
| Luiken | Nee |
| Primair verwarmingstype | Decentrale verwarming |
| Primaire verwarmingsbron | EXTRA_INFO.OUTFITTING.VALUE.HEATPUMPAIRAIR |
| Primaire verwarming | Luchtverwarming |
| Warm water type | Decentrale verwarming |
| Warmwaterbron | Waterboiler |
| Elektrisch keuringsattest | Ja |
| Septische tank | Nee |
| Beerput | Nee |
Perceel
| Overstromingsgevoelig | Geen |
|---|---|
| Voorkeurrecht | Nee |
| Bebouwde oppervlakte (m²) | 130 |
| Oriëntatie voorgevel | Noordwest |
Vergunning
| Vergunning | Vergunning beschikbaar |
|---|---|
| Verkavelingsvergunning | Vergunning beschikbaar |
Uitrusting
| Investeringspand | Nee |
|---|---|
| Geschikt als kangoeroewoning | Nee |
| Geschikt voor rolstoelgebruikers | Nee |
| Parking | Nee |
| Garage | Nee |
| Thuiskantoor | Ja |
| Kelder | Nee |
| Zolder | Nee |
| Opslagruimte | Ja |
| Tuin | Nee |
| Terras | Nee |
| Lift | Nee |
| Rioolaansluiting | Ja |
| Gasaansluiting | Nee |
| Wateraansluiting | Ja |
| Elektriciteitsaansluiting | Nee |
| TV aansluiting | Nee |
| Internetaansluiting | Ja |
| Zonnepanelen | Nee |
| Zonneboiler | Nee |
| Thuisbatterij | Nee |
| Alarm | Nee |
| Zwembad | Nee |
| Sauna | Nee |
| Jacuzzi | Nee |
| Videofoon | Nee |
| Domotica | Nee |
| Grondwaterput | Nee |
| Ventilatie | Ja |
Een pand van
Theunis Vastgoed
Persoonlijk contact en service op maat
Theunis Vastgoed is een vastgoedkantoor voor mensen die houden van een professionele 1 op 1 begeleiding bij de aan- en verkoop van hun vastgoed. Ons kantoor werkt op maat van de klant en dankzij onze persoonlijke en doelgerichte aanpak kunnen wij ook voor u een zorgeloze verkoop realiseren.
85265239
Leer meer over vastgoed
04 January 2026
Zoek je een kantoor, een magazijn of… iets ertussenin? Bedrijfsvastgoed uitgelegd
05 November 2024
Bedrijfsvastgoed in transitie: ontdek de toekomst van werkplekken
16 October 2024
Opbrengsteigendom: een slim pad naar passief inkomen en vermogensgroei
09 September 2024
