Bedrijfsvastgoed te huur
Een pand van IMMO-C2
Overzicht
- 216 m² bewoonbaar
- 216 m² grond
Overstromingsgevaar perceel
Beschrijving
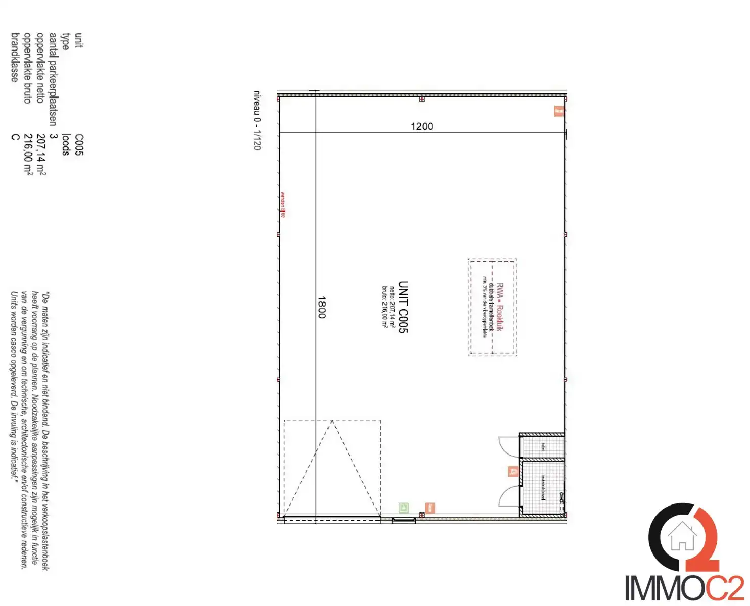
Gunstig gelegen nieuwbouw KMO-unit te huur op bedrijvenpark ‘Nijverheid 29 te Beringen.
Deze bedrijfshal (unit C005) heeft een Bruto-oppervlakte van 216 m² en is voorzien van een gepolierde betonvloer, elektrische sectionaal poort met aparte inkomdeur, geïsoleerde sandwichpanelen, een lichtstraat en heeft een vrije hoogte van 6m.
Er is een alarminstallatie aanwezig. Aan de voorzijde van de KMO-unit zijn drie parkeerplaatsen voorzien.
De unit is voorzien van elektriciteit (230V) én krachtstroom (380V), er is verlichting, waterkraantje en een toilet aanwezig.
De unit kan dienst doen als opslagplaats, atelier, productieruimte, showroom,…
Nijverheid 29 bevindt zich in de Nijverheidsstraat 29, Beringen, naast het kanaal en op slechts 5 minuten van de oprit Paal-Beringen E313.
Deze locatie combineert bereikbaarheid met een groene omgeving en is ideaal voor zowel start-ups als gevestigde bedrijven die op zoek zijn naar uitbreiding.
Hier vind je de perfecte ruimte om jouw zakelijke ambities waar te maken.
De huurprijs bedraagt 1.400 euro/maand (excl. BTW)
100 euro vaste kost (provisie) en onroerende voorheffing zijn ten laste van de huurder.
P-score: D
G-score: C
Gunstig gelegen nieuwbouw KMO-unit te huur op bedrijvenpark ‘Nijverheid 29 te Beringen.
Deze bedrijfshal (unit C005) heeft een Bruto-oppervlakte van 216 m² en is voorzien van een gepolierde betonvloer, elektrische sectionaal poort met aparte inkomdeur, geïsoleerde sandwichpanelen, een lichtstraat en heeft een vrije hoogte van 6m.
Er is een alarminstallatie aanwezig. Aan de voorzijde van de KMO-unit zijn drie parkeerplaatsen voorzien.
De unit is voorzien van elektriciteit (230V) én krachtstroom (380V), er is verlichting, waterkraantje en een toilet aanwezig.
De unit kan dienst doen als opslagplaats, atelier, productieruimte, showroom,…
Nijverheid 29 bevindt zich in de Nijverheidsstraat 29, Beringen, naast het kanaal en op slechts 5 minuten van de oprit Paal-Beringen E313.
Deze locatie combineert bereikbaarheid met een groene omgeving en is ideaal voor zowel start-ups als gevestigde bedrijven die op zoek zijn naar uitbreiding.
Hier vind je de perfecte ruimte om jouw zakelijke ambities waar te maken.
De huurprijs bedraagt 1.400 euro/maand (excl. BTW)
100 euro vaste kost (provisie) en onroerende voorheffing zijn ten laste van de huurder.
P-score: D
G-score: C
Energie
Op de kaart

Financieel
| Prijs |
|---|
Bijkomende info
Gebouw
| Bouwjaar | 2025 |
|---|---|
| Staat | Nieuw |
| Bewoonbaar (m²) | 216 |
| Gevels | 2 |
| Badkamers | 0 |
| Slaapkamers | 0 |
| Parkeerplaatsen | 0 |
Faciliteiten
| Type vloer | |
|---|---|
| Elektrisch keuringsattest | Ja |
Perceel
| Overstromingsgevoelig | Geen |
|---|---|
| P-score | D |
| G-score | C |
| Totale oppervlakte (m²) | 216 |
| Tuin oppervlakte (m²) | 0 |
Vergunning
| Vergunning | Geen beschikbaar |
|---|---|
| Verkavelingsvergunning | Geen beschikbaar |
Uitrusting
| Geschikt voor rolstoelgebruikers | Ja |
|---|---|
| Parking | Nee |
| Garage | Nee |
| Tuin | Nee |
| Terras | Nee |
| Wateraansluiting | Ja |
| Elektriciteitsaansluiting | Ja |