Magazijnen te huur
€ 21.636
Een pand van OREON PROPERTIES
Jouw zoektocht
Overzicht
- 5574 m² bewoonbaar
Beschrijving
ALGEMEEN
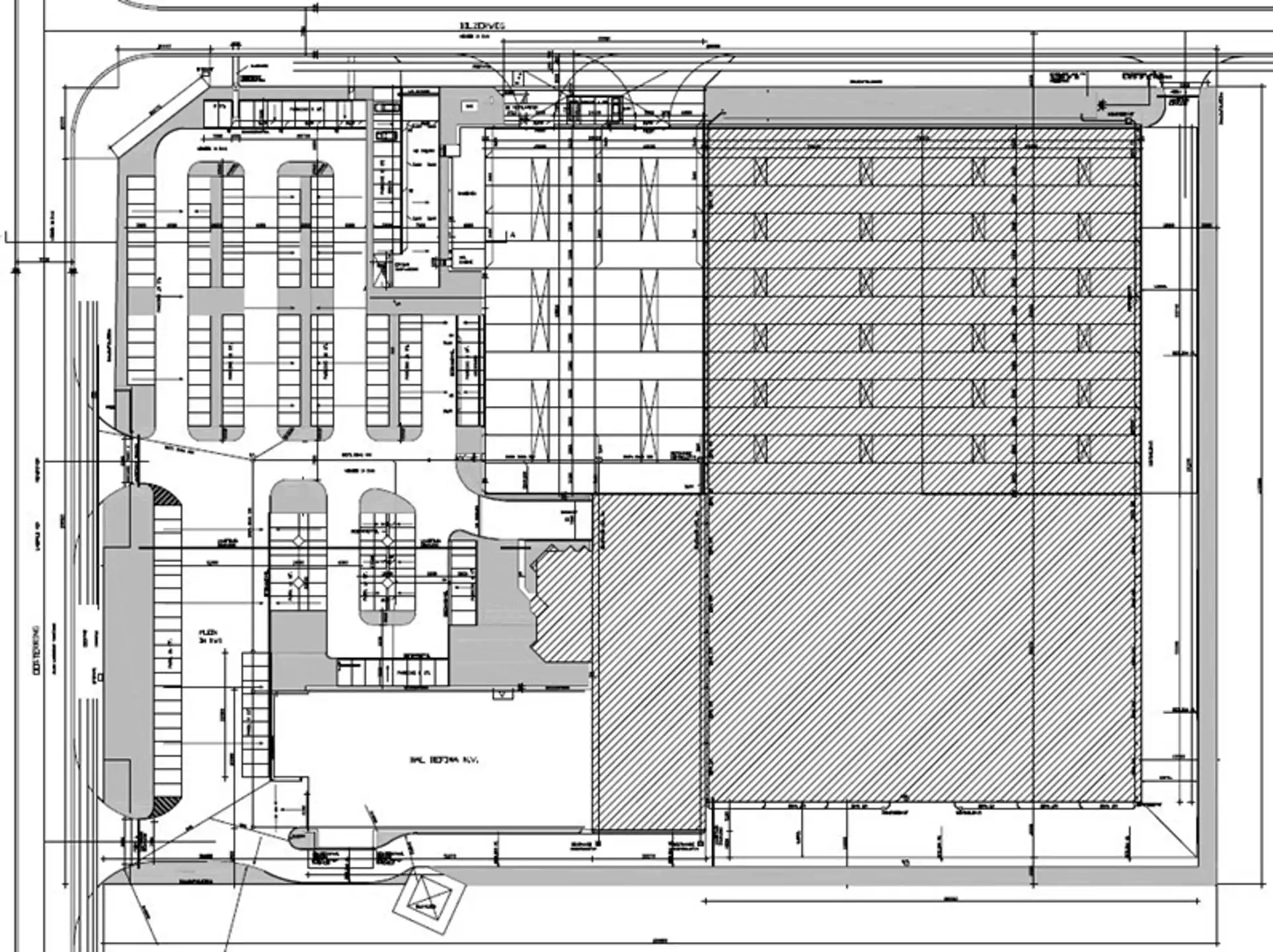
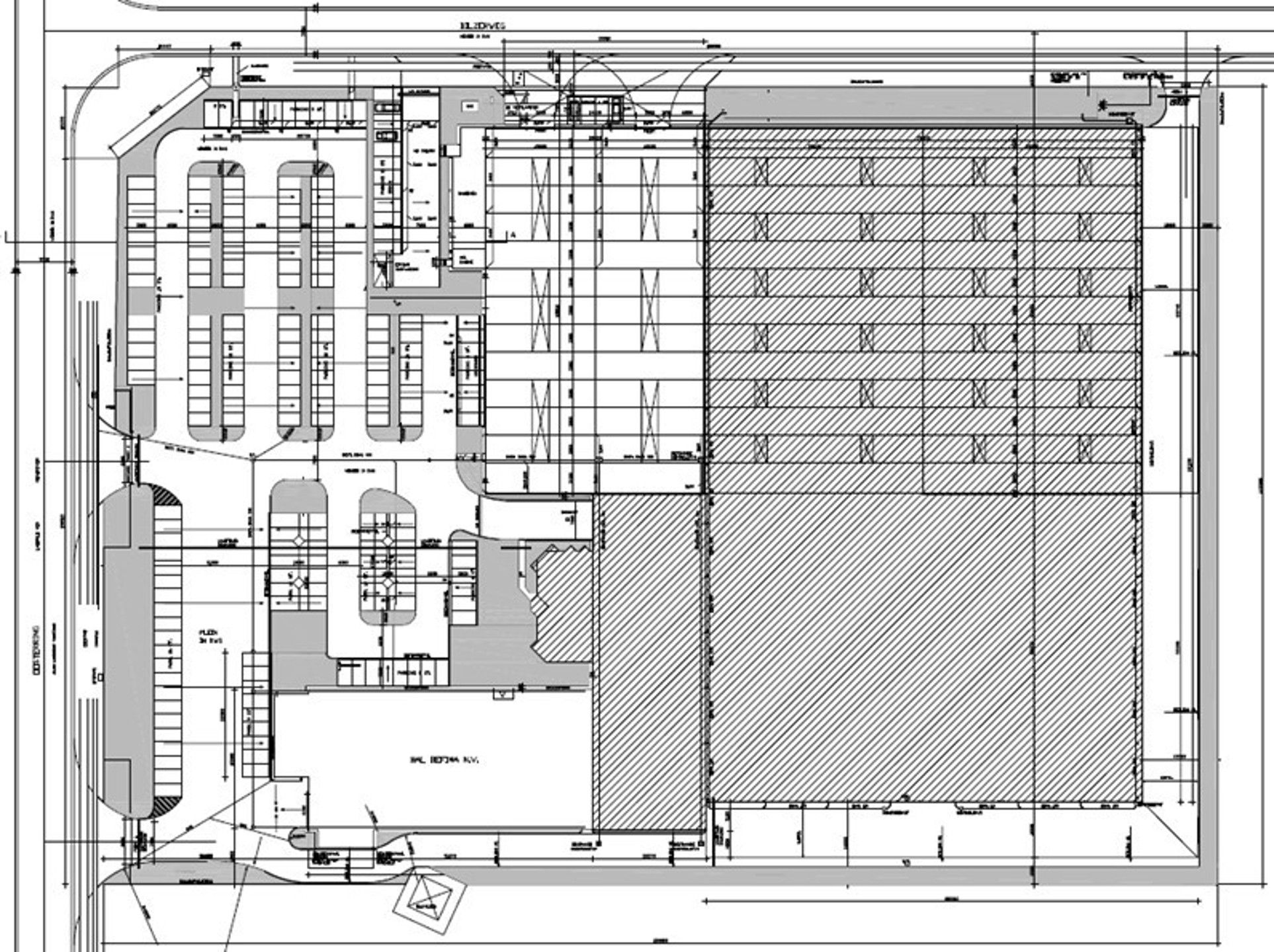
Magazijnen te huur in een groot logistiek complex in Genk. Het magazijnen zijn tussen de 1.277m² en 5.747m² en bij Unit 1 en 3 zijn ook luifels aanwezig. De magazijnen beschikken over een vrije hoogte tussen de 8m en 9.60m². Gelijkvloerse poorten. Er is ook mogelijkheid tot het huren van verhard terrein.
TECHNISCH
-hoogte magazijn : tussen 8m en 9.60m
-poorten : 2 - 5
-vloerbelasting : 5 ton
-constructie : stalen frame
-verlichting : Led*
-verwarming : gasgestookte luchtverwarmers
-nutsvoorzieningen : Elektriciteit, gas, water, zonne-energie
BESCHIKBAAR
Onmiddellijk Vrij - korte termijn huur in afwachting aanvang renovatie
PARKING
FINANCIEEL
- magazijn Unit 1 : 5.574m² - 44€/m²/jaar
+ Luifel :1438m² - 10€/m²/jaar
-magazijn Unit 2 : 1277m² - 40€/m²/jaar
-magazijn Unit 3 : 5151m² - /
+ Luifel : 657m² - /
- magazijn Unit 4 : 2.603m² - 48€/m²/jaar
- kantoor : 290m² - 100€/m²/jaar
- parking : 206 plaatsen - 150€/per plaats
Energie
Op de kaart

Financieel
| Prijs |
|---|
Bijkomende info
Gebouw
| Bouwjaar | 1992 |
|---|---|
| Bewoonbaar (m²) | 5574 |
| Verdieping | 0 |
| Badkamers | 0 |
| Slaapkamers | 0 |
| Verdiepingen | 0 |
| Parkeerplaatsen | 0 |
Faciliteiten
| Type vloer |
|---|
Perceel
| Tuin oppervlakte (m²) | 0 |
|---|
Vergunning
| Vergunning | Geen beschikbaar |
|---|---|
| Verkavelingsvergunning | Geen beschikbaar |
Uitrusting
| Parking | Nee |
|---|---|
| Garage | Nee |
| Tuin | Nee |
| Terras | Nee |