Te Huur Genk: Magazijn met kades en poort
€ 11.275
Een pand van OREON PROPERTIES
Jouw zoektocht
Overzicht
- 3300 m² bewoonbaar
Beschrijving
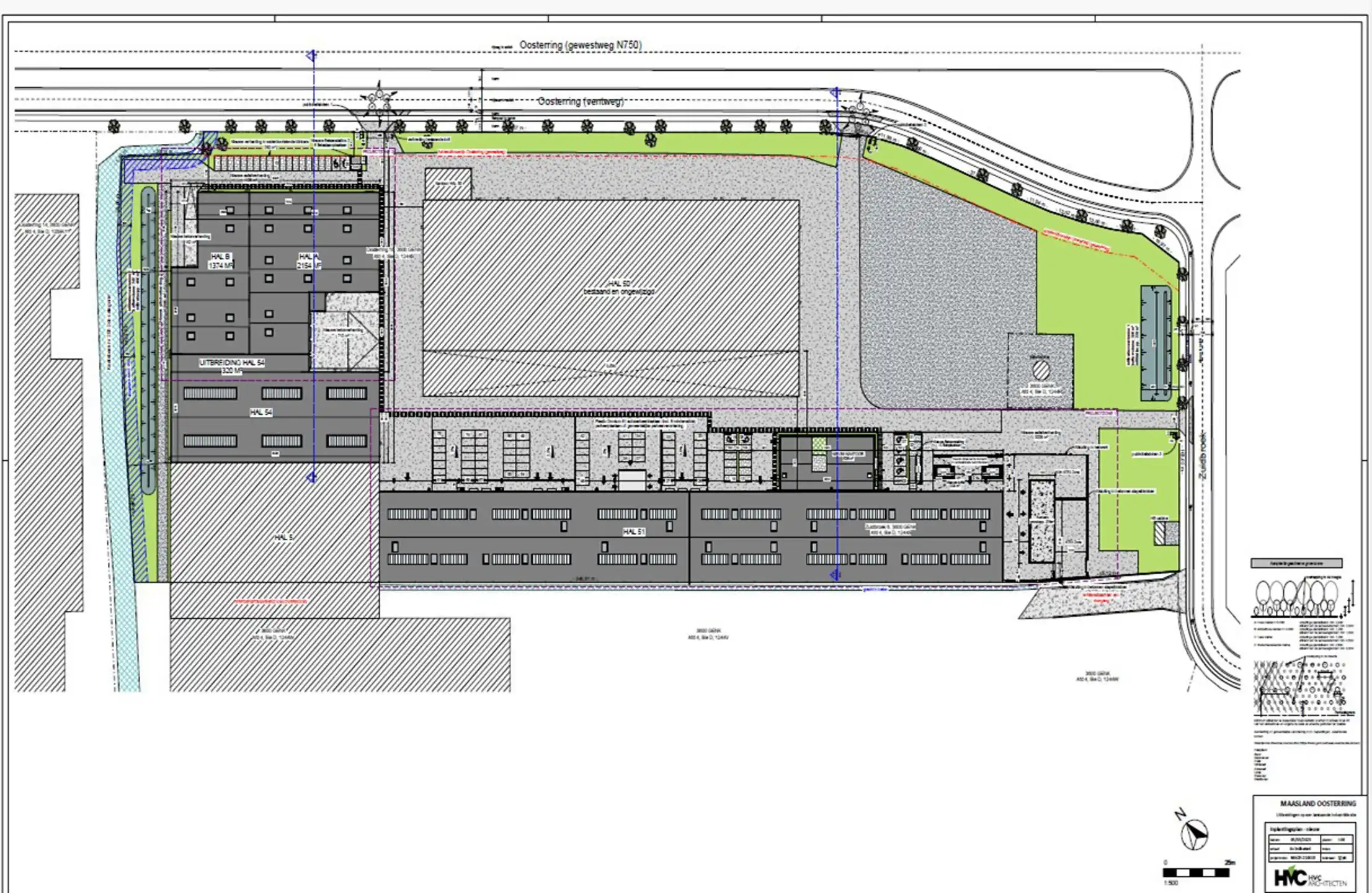
ALGEMEEN
Modern en functioneel nieuwbouwproject op gunstig gelegen semi-industriële / logistieke site te Genk langsheen de Oosterring (N750). Op een steenworp van het Albertkanaal, en slechts enkele minuten van de E313 en het klaverblad in Lummen, op-en afrit Genk (nr32) en van de snelweg Aken-Brussel (E314) geniet deze locatie een uitstekende bereikbaarheid vanuit de rest van België, alsook de buurlanden.
BESCHIKBAARHEDEN
- Hal 50: 3.300m² magazijn met kades en poort
- Hal 50: 2.560m² magazijn met kades en poort +170m² kant - VERHUURD
- Hal 54: 2.751m² magazijn met 1 kade en poort
- Hal 9: 1.374m² magazijn met 1 kade en poort
- Hal zn: 1.200m² magazijn met 1 poort + 170m² kant.
Hal 9 is beschikbaar per 1 december 2024. De overige hallen zijn beschikbaar tegen eind december 2024/aanvang januari 2025.
- FINANCIEEL
- Hal 50: 3.300m² magazijn met kades en poort: 41 €/m² mag./jr; hetzij 135.300 €/jr + kosten + OV
- Hal 50: 2.560m² magazijn met kades en poort +170m² kant.: 40 €/m² mag./jr + 65 €/m² kant./jr; hetzij 113.450 €/jr + kosten + OV
- Hal 54: 2.751m² magazijn met 1 kade en poort: 40 €/m² mag./jr; hetzij 110.040 €/jr + kosten + OV
- Hal 9: 1.374m² magazijn met 1 kade en poort: 45 €/m² mag./jr; hetzij 61.830 €/jr + kosten + OV
- Hal zn: 1.200m² magazijn met 1 poort + 170m² kant.: 40 €/m² mag./jr + 90 €/m² kant./jr; hetzij 63.600 €/jr + kosten + OV
Onder voorbehoud van tussentijdse wijzigingen in prijs of oppervlakten.
Huurvoorwaarden :
- Huurwaarborg: op aanvraag
- Lasten ten koste van de huurder
- Onroerende voorheffing ten koste van de huurder
Energie
Op de kaart

Financieel
| Prijs |
|---|
Bijkomende info
Gebouw
| Bewoonbaar (m²) | 3300 |
|---|---|
| Badkamers | 0 |
| Slaapkamers | 0 |
| Parkeerplaatsen | 0 |
Faciliteiten
| Type vloer |
|---|
Perceel
| Tuin oppervlakte (m²) | 0 |
|---|
Vergunning
| Vergunning | Geen beschikbaar |
|---|---|
| Verkavelingsvergunning | Geen beschikbaar |
Uitrusting
| Parking | Nee |
|---|---|
| Garage | Nee |
| Tuin | Nee |
| Terras | Nee |