Nieuw 
Genk, Winterslagstraat 89/1: Instapklare, bemeubelde bureelruimte incl. parking vlakbij het centrum.
 € 450  (+€ 100)  
Een pand van JurImEx
Overzicht
- 1 Toilet(ten)
Beschrijving
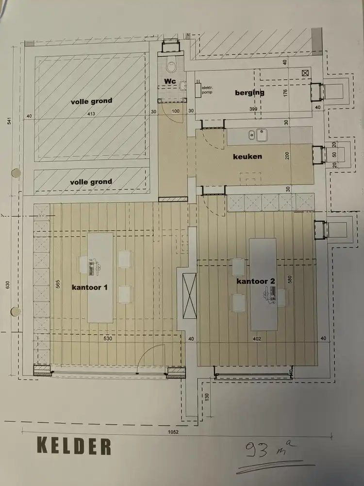
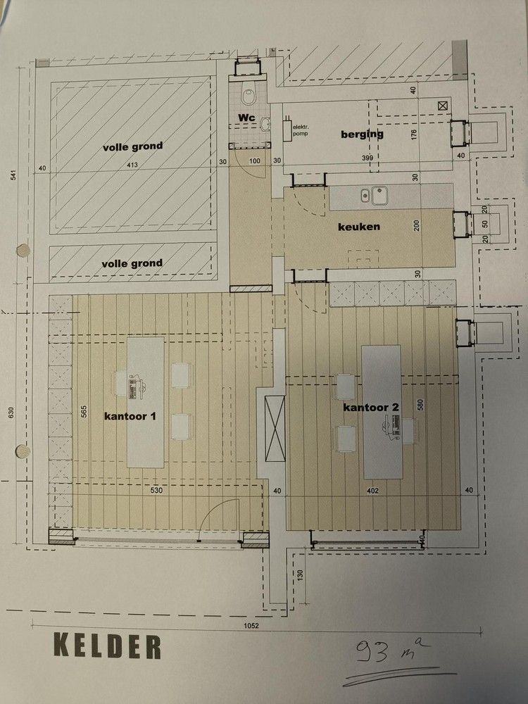
Genk, Winterslagstraat 89/1: Instapklare, bemeubelde bureelruimte incl. parking vlakbij het centrum.
Op zoek naar een representatieve en instapklare werkplek in het hart van Genk?
Ontdek deze moderne en volledig ingerichte gelijkvloerse bureelruimte op wandelafstand van het stadscentrum van Genk.
Deze bureelruimte is volledig afgewerkt met kwalitatief meubilair en ingebouwde kasten.
U huurt een aparte ruimte binnen een gedeeld pand. De keuken, berging en het toilet zijn gemeenschappelijk met de eigenaar, die de naastliggende bureelruimte gebruikt.
Troeven van dit kantoor:
Ideaal voor:
Inbegrepen in de algemene kosten (met jaarlijkse afrekening op basis van werkelijk verbruik)
📍 Toplocatie in Genk: centraal gelegen, toch rustig en goed bereikbaar.
Interesse? Neem contact op met Jurimex op het nummer 089/308.700 of via info@jurimex.be voor een bezoek of meer informatie.
Op zoek naar een representatieve en instapklare werkplek in het hart van Genk?
Ontdek deze moderne en volledig ingerichte gelijkvloerse bureelruimte op wandelafstand van het stadscentrum van Genk.
Deze bureelruimte is volledig afgewerkt met kwalitatief meubilair en ingebouwde kasten.
U huurt een aparte ruimte binnen een gedeeld pand. De keuken, berging en het toilet zijn gemeenschappelijk met de eigenaar, die de naastliggende bureelruimte gebruikt.
Troeven van dit kantoor:
- Volledig ingericht met bureau, stoelen en maatwerkkasten
- Stijlvolle afwerking met moderne verlichting
- Gezamenlijke keuken met alle basisvoorzieningen
- 1 privé parkeerplaats aan de voordeur inbegrepen
- Mogelijkheid tot laden van elektrische voertuigen
- Voldoende parkeergelegenheid voor bezoekers langs de straat
Ideaal voor:
- Starters, freelancers, vrije beroepen, consultants, projectmanagers en kleine ondernemingen.
Inbegrepen in de algemene kosten (met jaarlijkse afrekening op basis van werkelijk verbruik)
- Internet
- Verbruik van water, gas en elektriciteit
- Onderhoud van alarm, parking en groenzone
📍 Toplocatie in Genk: centraal gelegen, toch rustig en goed bereikbaar.
Interesse? Neem contact op met Jurimex op het nummer 089/308.700 of via info@jurimex.be voor een bezoek of meer informatie.
Energie
- E-peil: E0
- Beglazing: Onbekend
Op de kaart

Financieel
| Prijs | |
|---|---|
| Maandelijkse kosten | € 100 | 
Bijkomende info
Gebouw
| Renovatie jaar | 2017 | 
|---|---|
| Badkamers | 0 | 
| Slaapkamers | 0 | 
| Verdiepingen | 0 | 
| Garages | 0 | 
| Parkeerplaatsen | 0 | 
| Toiletten | 1 | 
Faciliteiten
| Septische tank | Nee | 
|---|
Perceel
| P-score | A | 
|---|---|
| G-score | A | 
| Bebouwde oppervlakte (m²) | 0 | 
Vergunning
| Verkavelingsvergunning | Geen beschikbaar | 
|---|
Uitrusting
| Investeringspand | Nee | 
|---|---|
| Parking | Nee | 
| Garage | Nee | 
| Opslagruimte | Ja | 
| Lift | Nee | 
| Rioolaansluiting | Ja | 
| Gasaansluiting | Nee | 
| Wateraansluiting | Nee | 
| Elektriciteitsaansluiting | Nee | 
| Internetaansluiting | Ja | 
| Telefoonaansluiting | Ja | 
| Zonnepanelen | Nee | 
| Zonneboiler | Nee | 
| Alarm | Nee | 
| Videofoon | Nee | 
| Grondwaterput | Nee | 
Appartementsblok
| Lift | Nee | 
|---|---|
| Intercom | Nee | 
Een pand van
JurImEx
 Welkom bij Jurimex!   
 Wenst u in alle vertrouwen te kopen, verkopen, 
huren, verhuren of advies? 
Wij helpen u graag verder! 
 1740CC 
Leer meer over vastgoed
 05 November 2024 
Bedrijfsvastgoed in transitie: ontdek de toekomst van werkplekken
 16 October 2024 
Opbrengsteigendom: een slim pad naar passief inkomen en vermogensgroei
 09 September 2024 
Tijdelijk vastgoed: flexibele oplossingen voor een dynamische markt
 12 August 2024