Nieuw
Nieuwbouw duplex met 3 slpk + parking + terras
€ 1.100 (+€ 70)
Een pand van Sensimmo
Overzicht
- 105 m² bewoonbaar
- 3 Slaapkamer(s)
- 1 Badkamer(s)
- 2 Toilet(ten)
- 1 Garage(s)
Beschrijving
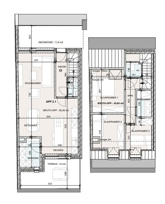
Deze prachtige nieuwbouw duplex met drie slaapkamers, dubbele terras en een privatieve ondergrondse autostaanplaats met kelderberging is uitstekend gelegen, vlak bij winkels, horeca, scholen en kinderopvang, het openbaar vervoer en de belangrijke verbindingswegen richting de E314, Nederland en Duitsland. Het appartement is onmiddellijk beschikbaar en de huurprijs bedraagt €1.170 per maand, inclusief de algemene kosten.
De indeling bestaat uit een inkomhal met vestiaire, een gastentoilet en een ruime leefruimte met open eilandkeuken. De keuken is volledig uitgerust met kwalitatieve elektrische toestellen en beschikt over een geïntegreerde eettafel. Vanuit de leefruimte en keuken heeft u rechtstreeks toegang tot het aangename dubbele terras. Verder is er op deze verdieping een praktische berging/wasplaats aanwezig. Op de bovenverdieping bevinden zich de nachthal, een apart toilet, drie volwaardige slaapkamers en een mooie badkamer met dubbele lavabo en inloopdouche.
Het appartement biedt een hoog comfort dankzij de centrale verwarming op aardgas met vloerverwarming, dubbele beglazing in strak zwart aluminium schrijnwerk, een totale bewoonbare oppervlakte van 105 m², een ventilatiesysteem, videofoon en buitenverlichting op het terras. Het gebouw is voorzien van een lift en werd afgewerkt met kwalitatieve materialen, wat het geheel bijzonder energiezuinig maakt.
Huurwaarborg van 3 maanden huur wordt gehanteerd en plaatsbeschrijvingskosten zijn van toepassing.
Interesse? Aarzel niet en contacteer ons ENKEL per mail huur@sensimmo met mogelijke data voor een bezichtiging!
De indeling bestaat uit een inkomhal met vestiaire, een gastentoilet en een ruime leefruimte met open eilandkeuken. De keuken is volledig uitgerust met kwalitatieve elektrische toestellen en beschikt over een geïntegreerde eettafel. Vanuit de leefruimte en keuken heeft u rechtstreeks toegang tot het aangename dubbele terras. Verder is er op deze verdieping een praktische berging/wasplaats aanwezig. Op de bovenverdieping bevinden zich de nachthal, een apart toilet, drie volwaardige slaapkamers en een mooie badkamer met dubbele lavabo en inloopdouche.
Het appartement biedt een hoog comfort dankzij de centrale verwarming op aardgas met vloerverwarming, dubbele beglazing in strak zwart aluminium schrijnwerk, een totale bewoonbare oppervlakte van 105 m², een ventilatiesysteem, videofoon en buitenverlichting op het terras. Het gebouw is voorzien van een lift en werd afgewerkt met kwalitatieve materialen, wat het geheel bijzonder energiezuinig maakt.
Huurwaarborg van 3 maanden huur wordt gehanteerd en plaatsbeschrijvingskosten zijn van toepassing.
Interesse? Aarzel niet en contacteer ons ENKEL per mail huur@sensimmo met mogelijke data voor een bezichtiging!
Energie
![]() |
- EPC Certificaat: 73107-G-OMV_2020128523/EP12782/SV/A001/D01
- E-peil: E30
- Verwarming: Gas
- Beglazing: Standaard dubbel
Zelfcheck
Op de kaart

Financieel
| Prijs | |
|---|---|
| Maandelijkse kosten | € 70 |
Bijkomende info
Gebouw
| Bouwjaar | 2021 |
|---|---|
| Staat | Goed onderhouden |
| Is beschermd | Nee |
| Bewoonbaar (m²) | 105 |
| Verdieping | 3 |
| Badkamers | 1 |
| Slaapkamers | 3 |
| Garages | 1 |
| Parkeerplaatsen | 1 |
| Toiletten | 2 |
Ruimtes
| Terras | 12 m² |
|---|
Faciliteiten
| Keuken | Open keuken |
|---|---|
| Keuken uitrusting | Goed uitgerust |
| Materiaal ramenomlijstingen | Aluminium |
| Beglazing | Standaard dubbel |
| Luiken | Nee |
| Primair verwarmingstype | Centrale verwarming |
| Primaire verwarmingsbron | Condensatieketel |
| Brandstof primaire verwarming | Gas |
| Primaire verwarming | Vloerverwarming |
Perceel
| Overstromingsgevoelig | Overstromingsgevoelig (vastgesteld) |
|---|---|
| P-score | A |
| G-score | A |
| Voorkeurrecht | Ja |
| Oppervlakte terras (m²) | 12 |
Vergunning
| Vergunning | Vergunning beschikbaar |
|---|---|
| Verkavelingsvergunning | Geen beschikbaar |
| Bouwovertreding dagvaardiging | Geen |
| Type gebied | Stedelijk |
Uitrusting
| Meerdere eigenaars | Nee |
|---|---|
| Geschikt als kangoeroewoning | Nee |
| Geschikt voor rolstoelgebruikers | Nee |
| Geschikt voor praktijk | Nee |
| Volledig onderkelderd | Nee |
| Parking | Ja |
| Garage | Ja |
| Thuiskantoor | Nee |
| Kelder | Ja |
| Zolder | Nee |
| Opslagruimte | Ja |
| Tuin | Nee |
| Terras | Ja |
| Lift | Ja |
| Rioolaansluiting | Ja |
| Gasaansluiting | Ja |
| Wateraansluiting | Ja |
| Elektriciteitsaansluiting | Ja |
| TV aansluiting | Ja |
| Internetaansluiting | Ja |
| Zonnepanelen | Nee |
| Zonneboiler | Nee |
| Alarm | Nee |
| Zwembad | Nee |
| Jacuzzi | Nee |
| Toonzaal | Nee |
| Ventilatie | Ja |
Appartementsblok
| Lift | Ja |
|---|---|
| Ondergrondse parking | Ja |
| Intercom | Nee |
Een pand van
Sensimmo
Sensimmo Vastgoed - gevoel voor wonen
Sensimmo bestaat uit een zeer enthousiast team van medewerkers! Ieder van hen beschikt over een grote dosis professionele ervaring, juridische kennis en doorzettingsvermogen. Zij gaan voluit voor een kwalitatieve aanpak van de verkoop van uw woning, uw levensinvestering!
3666
Leer meer over vastgoed
26 October 2025
Fake huuradvertenties op Facebook
06 July 2025
Wie betaalt herstellingen aan de huurwoning?
01 July 2025
Ik wil mijn huurcontract opzeggen. Hoe doe ik dit?
20 April 2025
