Appartement
€ 1.200 (+€ 110)
Een pand van Jemar.be
Overzicht
- 2 Slaapkamer(s)
Beschrijving
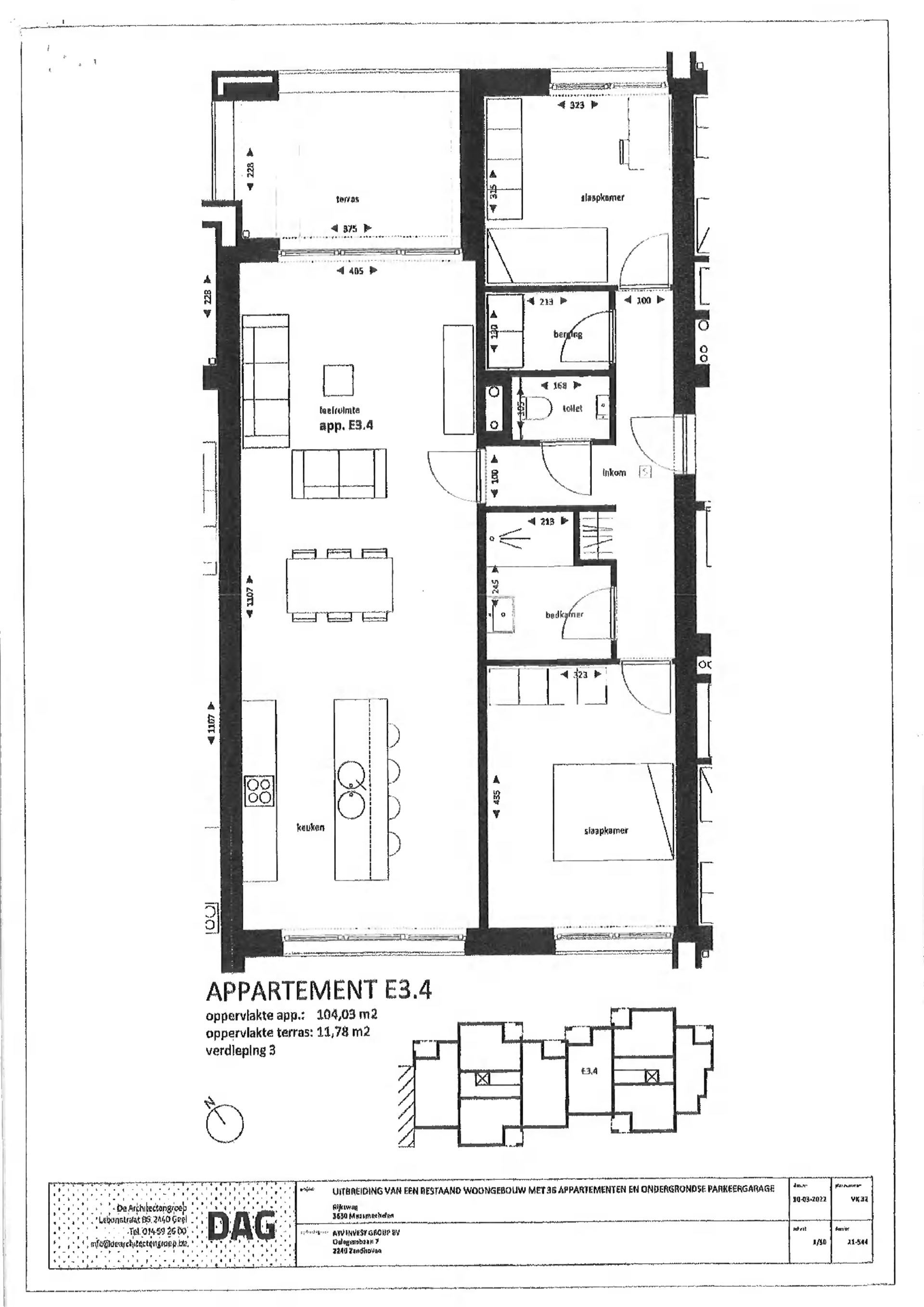
Dit moderne appartement van bevindt zich in Maasmechelen en maakt deel uit van een nieuwbouwproject met strakke, eigentijdse afwerking. De combinatie van een heldere indeling, veel natuurlijk licht en een ruim terras biedt een aantrekkelijk instapklaar woonadres van wel 104m²!
Indeling en leefruimte: bij het binnenkomen treft u een praktische gang met bergruimte en een apart gastentoilet. Rechts vindt u een complete badkamer en twee slaapkamers, waarvan één als hoofdslaapkamer kan dienen met voldoende kastruimte. Centraal in het appartement bevindt zich de ruime living met open keuken en kookeiland. Zonnig terras en lichtinval: vanuit de living wandelt u rechtstreeks naar het grote terras dat een extra leefruimte buiten creëert.
Grote ramen zorgen voor voldoende daglicht en een open, luchtige sfeer in het hele appartement.
Afwerking en wooncomfort: het appartement onderscheidt zich door moderne afwerking en hoogwaardige bouwkwaliteit. Het is flexibel ingedeeld en aangepast aan hedendaagse woonwensen, met aandacht voor praktisch gebruik en comfort. Zo werd dit appartement ook voorzien van een airco.
Ligging en voorzieningen: gelegen in een vernieuwde woonwijk van Maasmechelen met gemakkelijke toegang tot winkels, horeca, scholen en openbaar vervoer.
Belangrijkste kenmerken:
- Lift
- Vloerverwarming
- Zonnepanelen
- Warmtepomp+airco
- Kelderberging
- 2 Ondergrondse autostaanplaats
- Berging/bergruimte
- Ruim privéterras
- Moderne afwerking en bouwkwaliteit
- Praktische indeling met veel daglicht
- Centrale ligging in Maasmechelen, nabij voorzieningen
Beschikbaarheid na oplevering van het gebouw, vermoedelijk in januari/februari
Huurprijs: 1200/maand + 110/maand provisie
EPB beschikbaar.
Wenst u zich kandidaat te stellen voor dit appartement/huis dan kan dit enkel en alleen door het invullen van onze infolijst. U gaat hiervoor naar onze site www.jemar.be, kiest daar het juiste pand en klikt dan op het groene balkje "vraag je bezoek aan". Wij contacteren u voor een eventueel bezoek in te plannen.
Energie
- E-peil: E0
- Beglazing: Onbekend
Zelfcheck
Op de kaart

Financieel
| Prijs | |
|---|---|
| Maandelijkse kosten | € 110 |
| Kadastraal inkomen (niet geïndexeerd) | € 0 |
| Kadastraal inkomen (geïndexeerd) | € 0 |
Bijkomende info
Gebouw
| Staat | Nieuw |
|---|---|
| Bouwcertificaat | Nee |
| Verdieping | 3 |
| Badkamers | 0 |
| Slaapkamers | 2 |
| Verdiepingen | 0 |
| Garages | 0 |
| Parkeerplaatsen | 0 |
| Doucheruimtes | 1 |
| Toiletten | 0 |
Faciliteiten
| Keuken uitrusting | Luxueus uitgerust |
|---|---|
| Elektrisch keuringsattest | Nee |
Perceel
| Overstromingsgevoelig | Geen |
|---|---|
| Voorkeurrecht | Ja |
| Bebouwde oppervlakte (m²) | 0 |
| Tuin oppervlakte (m²) | 0 |
| Oppervlakte terras (m²) | 0 |
Vergunning
| Vergunning | Aanvraag ingediend |
|---|---|
| Verkavelingsvergunning | Aanvraag ingediend |
Uitrusting
| Investeringspand | Nee |
|---|---|
| Geschikt voor praktijk | Nee |
| Parking | Nee |
| Garage | Nee |
| Thuiskantoor | Nee |
| Kelder | Nee |
| Zolder | Nee |
| Tuin | Nee |
| Terras | Nee |
| Lift | Nee |
| Rioolaansluiting | Nee |
| Gasaansluiting | Nee |
| Wateraansluiting | Nee |
| Elektriciteitsaansluiting | Nee |
| TV aansluiting | Nee |
| Internetaansluiting | Nee |
| Telefoonaansluiting | Nee |
Appartementsblok
| Lift | Nee |
|---|