Nieuw
Handelspand te huur in centrum Opglabbeek
Een pand van Dewaele Vastgoed
Overzicht
- 1 Toilet(ten)
Beschrijving
Dit handelspand te huur is gelegen in het hart van Opglabbeek, een perfecte locatie voor uw onderneming. De ligging is ideaal dankzij de nabijheid van de kerk, het cultureel centrum, de bibliotheek en een supermarkten, wat zorgt voor een hoge passage.
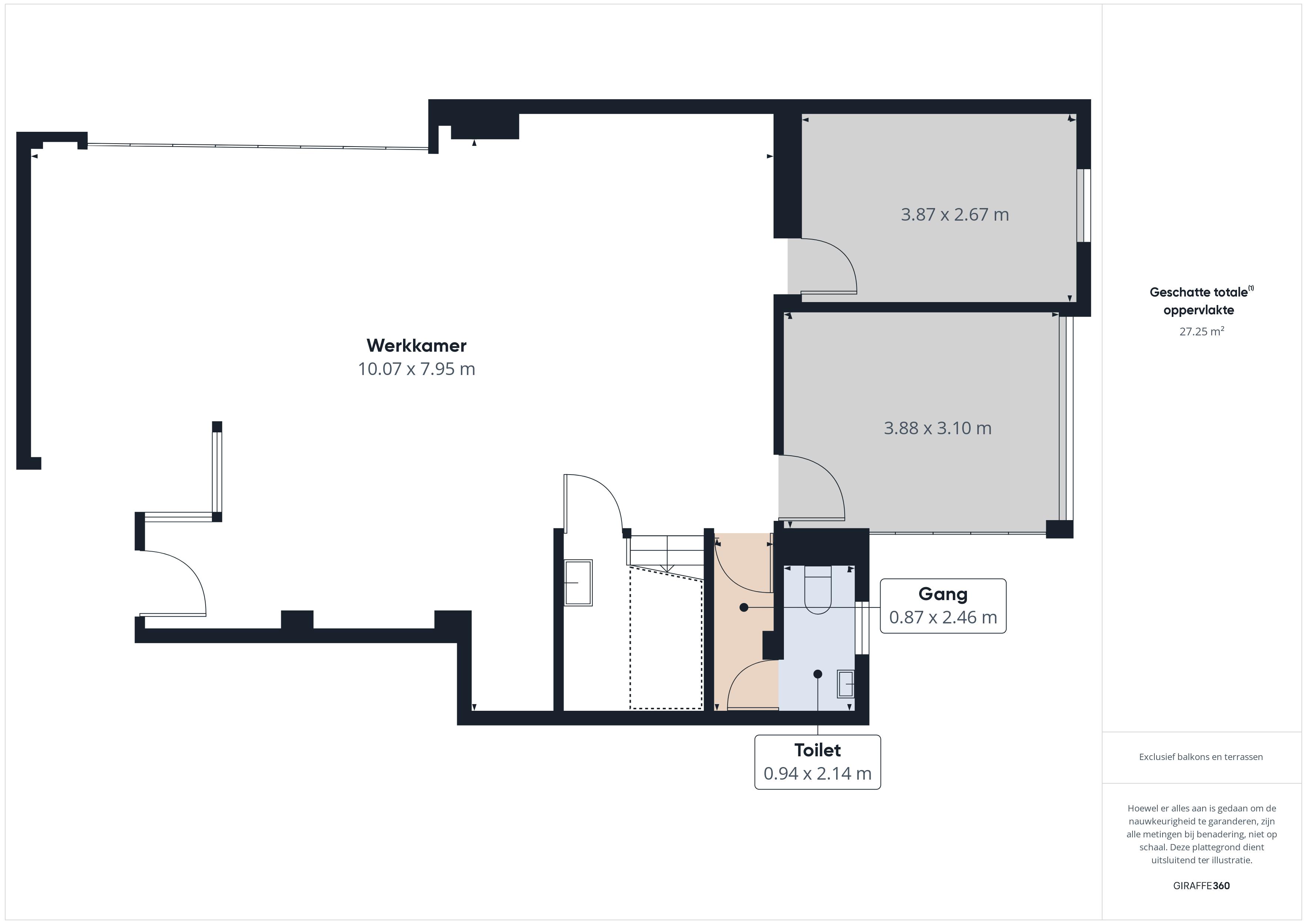
Het handelspand wordt verhuurd met een valsplafond en is volledig onderkelderd, wat een aanzienlijke opslagruimte biedt. De indeling van het pand in Opglabbeek is als volgt:
gelijkvloers: een grote open ruimte met veel lichtinval, twee afzonderlijke bijruimtes die naar wens kunnen worden ingericht als kantoor of andere werkplekken.
sanitair: een apart toilet.
keuken: een functionele keukenruimte.
kelder: een volledige onderkeldering van het handelspand, ideaal voor extra opslag.
Algemeen:
- verwarming op aardgas
- EPC label C
- onmiddellijk beschikbaar
Parkeermogelijkheden op het plein voor de deur.
Deze commerciële vastgoedkans is een unieke gelegenheid om uw zaak te vestigen in Opglabbeek. De flexibele indeling en de grote opslagruimte maken dit een bijzonder interessant pand voor diverse doeleinden. Benieuwd naar dit handelspand? Neem dan contact op met het kantoor voor meer informatie over de verhuur.
gelijkvloers: een grote open ruimte met veel lichtinval, twee afzonderlijke bijruimtes die naar wens kunnen worden ingericht als kantoor of andere werkplekken.
sanitair: een apart toilet.
keuken: een functionele keukenruimte.
kelder: een volledige onderkeldering van het handelspand, ideaal voor extra opslag.
Algemeen:
- verwarming op aardgas
- EPC label C
- onmiddellijk beschikbaar
Parkeermogelijkheden op het plein voor de deur.
Deze commerciële vastgoedkans is een unieke gelegenheid om uw zaak te vestigen in Opglabbeek. De flexibele indeling en de grote opslagruimte maken dit een bijzonder interessant pand voor diverse doeleinden. Benieuwd naar dit handelspand? Neem dan contact op met het kantoor voor meer informatie over de verhuur.
Energie
Op de kaart

Financieel
Prijs |
---|
Bijkomende info
Gebouw
Staat | Goed onderhouden |
---|---|
Badkamers | 0 |
Slaapkamers | 0 |
Parkeerplaatsen | 1 |
Toiletten | 1 |
Uitrusting
Investeringspand | Nee |
---|---|
Parking | Ja |
Garage | Nee |
Thuiskantoor | Nee |
Opslagruimte | Nee |
Tuin | Nee |
Terras | Nee |
Lift | Nee |
Een pand van
Dewaele Vastgoed
Dewaele Real Estate nv
Dewaele Real Estate nv
D3680-24013-H
Leer meer over vastgoed
05 November 2024
Bedrijfsvastgoed in transitie: ontdek de toekomst van werkplekken
16 October 2024
Opbrengsteigendom: een slim pad naar passief inkomen en vermogensgroei
09 September 2024
Tijdelijk vastgoed: flexibele oplossingen voor een dynamische markt
12 August 2024