Nieuw
Bedrijfsruimte te Industrieweg 6 , 3740 Kortessem
€ 2.700
Een pand van Immo Minnaert & Co
Favoriet
Jouw zoektocht
Jouw scoretabel voor dit pand
Aan het laden...
Jouw geplande bezichtigingen
Aan het laden...
Overzicht
- 1228 m² grond
Beschrijving
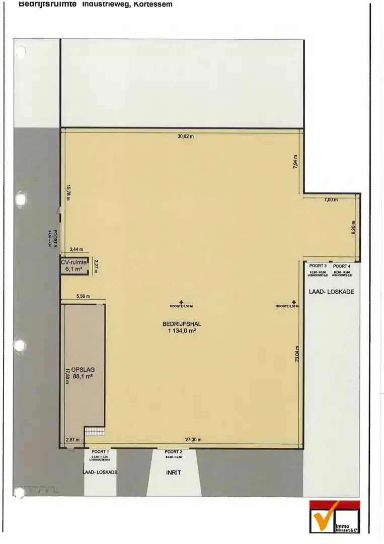
Totale oppervlakte: Een hal van 1.134 m², aangevuld met 88,1 m² extra opslagruimte.
Het pand beschikt over maar liefst 5 poorten, waardoor laden en lossen uiterst efficiënt verloopt.
Combinatie van directe inritten en specifieke laad/loskades met verschillende hoogtes.
Specificaties van de poorten:
Poort 1 (Laadkade): B 2,80m x H 3,00m (loshoogte 0,58m)
Poort 2 (Inrit): B 4,00m x H 4,50m (ideale inrijpoort)
Poort 3 & 4 (Laadkades): B 2,80m x H 3,00m (loshoogte 0,81m)
Poort 5 : B 4,00m x H 4,50m.
met een vlotte verbinding naar de E313 en omliggende steden.
EPC in aanvraag
Huurprijs: € 2.700 / maand
Het pand beschikt over maar liefst 5 poorten, waardoor laden en lossen uiterst efficiënt verloopt.
Combinatie van directe inritten en specifieke laad/loskades met verschillende hoogtes.
Specificaties van de poorten:
Poort 1 (Laadkade): B 2,80m x H 3,00m (loshoogte 0,58m)
Poort 2 (Inrit): B 4,00m x H 4,50m (ideale inrijpoort)
Poort 3 & 4 (Laadkades): B 2,80m x H 3,00m (loshoogte 0,81m)
Poort 5 : B 4,00m x H 4,50m.
met een vlotte verbinding naar de E313 en omliggende steden.
EPC in aanvraag
Huurprijs: € 2.700 / maand
Energie
- E-peil: E0
- Beglazing: Onbekend
Op de kaart

Financieel
| Prijs | |
|---|---|
| Maandelijkse kosten | € 0 |
Bijkomende info
Gebouw
| Badkamers | 0 |
|---|---|
| Slaapkamers | 0 |
| Verdiepingen | 0 |
| Garages | 0 |
| Parkeerplaatsen | 0 |
| Toiletten | 0 |
Faciliteiten
| Septische tank | Nee |
|---|
Perceel
| Overstromingsgevoelig | Geen |
|---|---|
| P-score | B |
| G-score | B |
| Totale oppervlakte (m²) | 1228 |
| Bebouwde oppervlakte (m²) | 0 |
Vergunning
| Verkavelingsvergunning | Geen beschikbaar |
|---|
Uitrusting
| Investeringspand | Nee |
|---|---|
| Parking | Nee |
| Garage | Nee |
| Lift | Nee |
| Rioolaansluiting | Nee |
| Gasaansluiting | Nee |
| Wateraansluiting | Ja |
| Elektriciteitsaansluiting | Ja |
| Internetaansluiting | Ja |
| Telefoonaansluiting | Nee |
| Zonnepanelen | Nee |
| Zonneboiler | Nee |
| Alarm | Nee |
| Videofoon | Nee |
| Grondwaterput | Nee |
Appartementsblok
| Lift | Nee |
|---|---|
| Intercom | Nee |
Een pand van
Immo Minnaert & Co
Onze jacht op Uw succesvolle immo oplossingen
Uiteraard gaan we voor gebruikelijke opportuniteiten maar vooral in " de moeilijke gevallen " , erfgoed , bouwovertredingen , oriënterend bodemonderzoek
kunnen wij als oplossing voor U putten uit veel ervaring.
Kortessem Industrieweg
Leer meer over vastgoed
04 January 2026
Zoek je een kantoor, een magazijn of… iets ertussenin? Bedrijfsvastgoed uitgelegd
05 November 2024
Bedrijfsvastgoed in transitie: ontdek de toekomst van werkplekken
16 October 2024
Opbrengsteigendom: een slim pad naar passief inkomen en vermogensgroei
09 September 2024