High-end technologische productiesite.
€ 9.572,92
Een pand van CEUSTERS
Favoriet
Jouw zoektocht
Jouw scoretabel voor dit pand
Aan het laden...
Jouw geplande bezichtigingen
Aan het laden...
Overzicht
- 919 m² bewoonbaar
Beschrijving
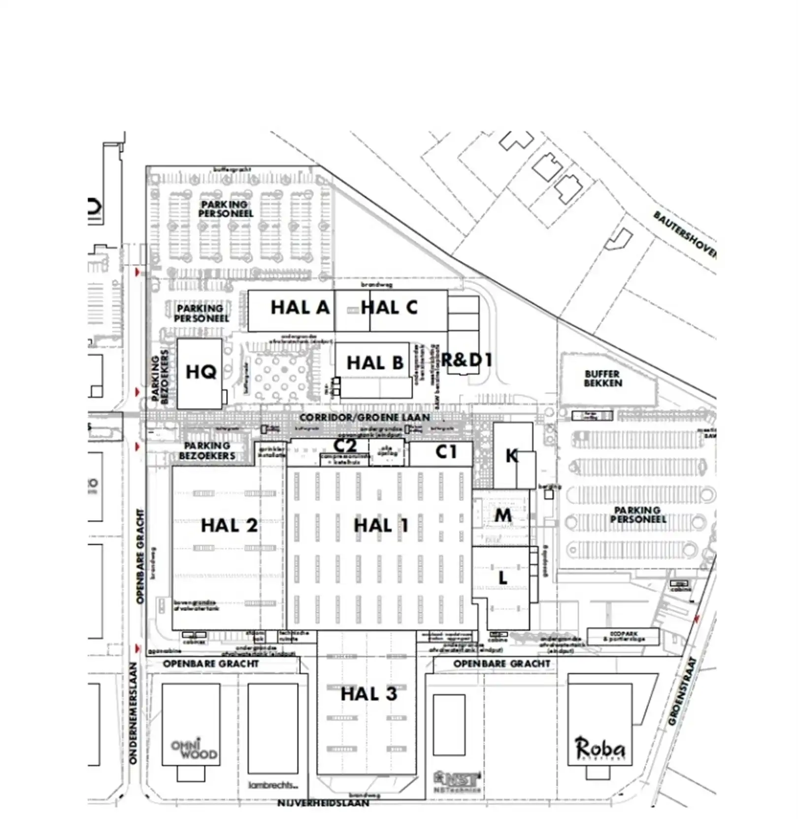
Punch Powertrain Oost-site:
- HQ:
- Gelijkvloers - 1e verdiep + kelder
- High-end stand-alone kantoorgebouw
- Hoogwaardige afwerking
- Hal A + B + C + R&D1
- Diverse opslagplaatsen
- Inpandige kantoren
- Hal 1 + Hal 2 + Hal 3 + Logistiek en middenzone + Corridor
- Vrije hoogte: 6,7m
- Busbar-Systeem
- Perslucht
- Ventilatie
- Sprinklers
- Technische ruimtes (accu-laadstations, olie-opslag, )
- Ruime sociale ruimtes (kleedkamers, douches, fitness, pauzeruimtes, ...)
- Kantine met keuken
- Sanitaire ruimtes
- Laad- en loskaden
- Inpandig kantoren met hoogwaardige afwerking
- Stroomvoorzieningen:
- HAL 1 & 3: 4 X 1250 KVA
- HAL 2: 3 x 1250 KVA
- Ruime parkeervoorzieningen
- Parking Ondernemerslaan +/-310pp
- Parking Groenstraat +/-350pp
Modaliteiten:
- Huurvoorstel op maat van de kandidaat-huurder.
- Onroerende voorheffing: op aanvraag
- Plannen: op aanvraag
- Huurprijzen (exclusief kosten):
- 40 - 50 euro/m2/jaar voor magazijnen (afhankelijk van de afname)
- 125 euro/m2/jaar voor kantoren
Energie
- E-peil: E0
- Beglazing: Onbekend
Op de kaart

Financieel
| Prijs | |
|---|---|
| Maandelijkse kosten | € 0 |
| Kadastraal inkomen (niet geïndexeerd) | € 0 |
| Kadastraal inkomen (geïndexeerd) | € 0 |
Bijkomende info
Gebouw
| Bouwcertificaat | Nee |
|---|---|
| Bewoonbaar (m²) | 919 |
| Verdieping | 0 |
| Badkamers | 0 |
| Slaapkamers | 0 |
| Verdiepingen | 0 |
| Garages | 0 |
| Parkeerplaatsen | 0 |
| Doucheruimtes | 0 |
| Toiletten | 0 |
Faciliteiten
| Elektrisch keuringsattest | Nee |
|---|
Perceel
| Overstromingsgevoelig | Geen |
|---|---|
| Voorkeurrecht | Ja |
| Bebouwde oppervlakte (m²) | 0 |
| Tuin oppervlakte (m²) | 0 |
| Oppervlakte terras (m²) | 0 |
Vergunning
| Vergunning | Geen beschikbaar |
|---|---|
| Verkavelingsvergunning | Geen beschikbaar |
Uitrusting
| Investeringspand | Nee |
|---|---|
| Geschikt voor praktijk | Nee |
| Parking | Nee |
| Garage | Nee |
| Thuiskantoor | Nee |
| Kelder | Nee |
| Zolder | Nee |
| Tuin | Nee |
| Terras | Nee |
| Lift | Nee |
| Rioolaansluiting | Nee |
| Gasaansluiting | Nee |
| Wateraansluiting | Nee |
| Elektriciteitsaansluiting | Nee |
| TV aansluiting | Nee |
| Internetaansluiting | Nee |
| Telefoonaansluiting | Nee |
Appartementsblok
| Naam residentie | ONDERNEMERSLAAN 5429 SINT-TRUIDEN |
|---|---|
| Lift | Nee |
Een pand van
CEUSTERS
CEUSTERS
Onze experts in property management en vastgoedadvies stellen een kwalitatieve dienstverlening voorop. Creatief en flexibel gaat ons team op zoek naar kansen en oplossingen voor elke klant. Telkens een stapje verder. Naast onze kantoren in Antwerpen, Gent, Brussel, Hasselt en Rotterdam (Nederland), opereert CEUSTERS vanuit zes andere vestigingen verspreid over heel België. In deze snel veranderende wereld staat ons sterk inzicht in de lokale markt garant voor continuïteit.
ONDERNEMERSLAAN 5429 SINT-TRUIDEN
Leer meer over vastgoed
04 January 2026
Zoek je een kantoor, een magazijn of… iets ertussenin? Bedrijfsvastgoed uitgelegd
05 November 2024
Bedrijfsvastgoed in transitie: ontdek de toekomst van werkplekken
16 October 2024
Opbrengsteigendom: een slim pad naar passief inkomen en vermogensgroei
09 September 2024