Magazijn in Sint-Truiden
Een pand van Immo Vesta
Favoriet
Jouw zoektocht
Jouw scoretabel voor dit pand
Aan het laden...
Jouw geplande bezichtigingen
Aan het laden...
Overzicht
Beschrijving
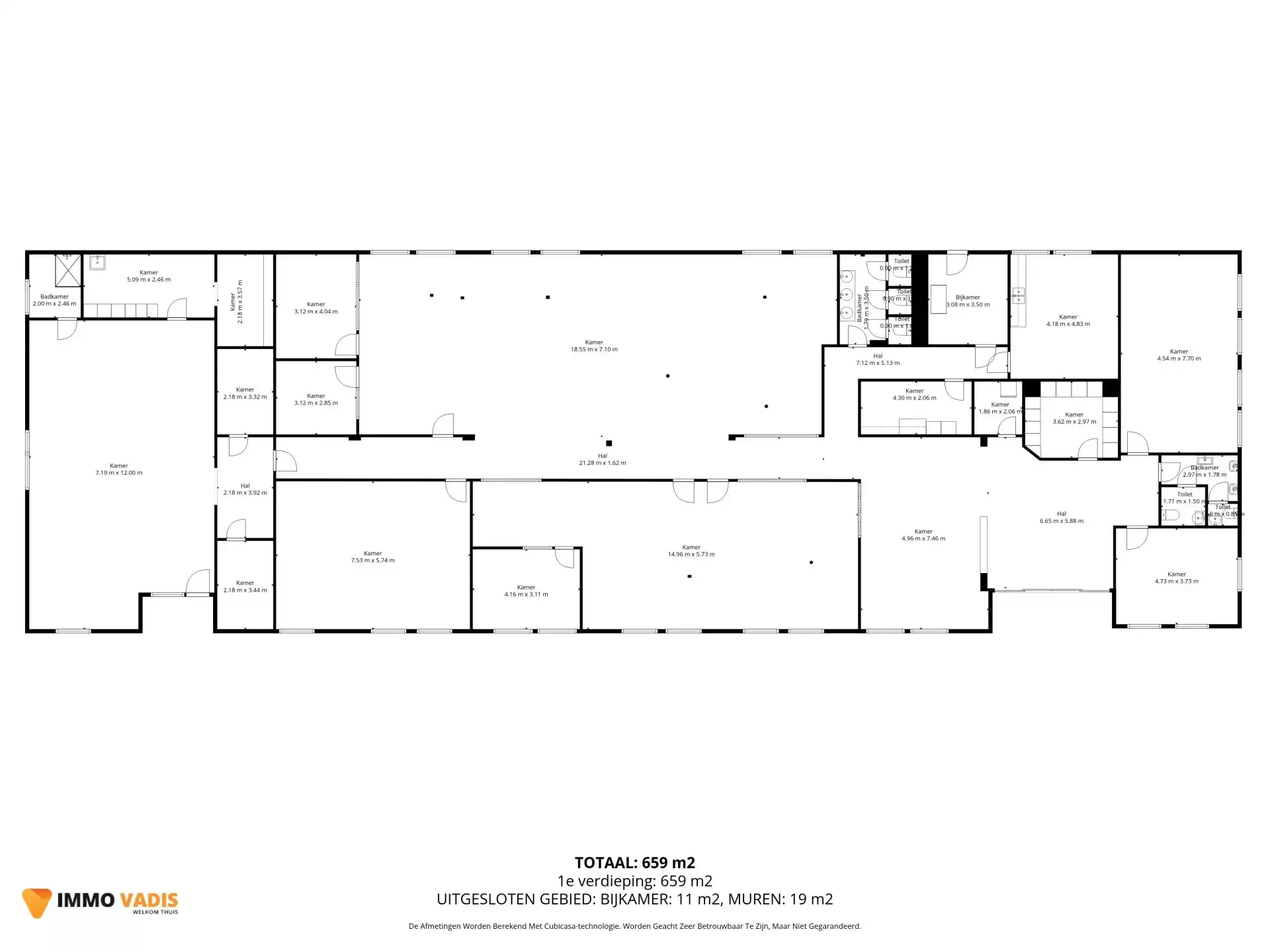
Op een strategische locatie in de industriezone van Sint-Truiden bevindt zich dit functioneel magazijn aan de Nijverheidslaan 5190. Dankzij de vlotte bereikbaarheid en de nabijheid van belangrijke invalswegen is dit pand uitermate geschikt voor opslag, ambachtelijke activiteiten of lichte productie.
Het magazijn beschikt over een ruime toegangspoort, voldoende manoeuvreerruimte en een praktische indeling die diverse professionele activiteiten mogelijk maakt. De solide constructie en de bruikbare oppervlakte zorgen voor een efficiënte benutting van de ruimte.
Troeven:
- Gelegen in een gevestigde industriezone
- Goede bereikbaarheid
- Veelzijdig inzetbaar
- Vlotte toegang voor leveringen
Ben je op zoek naar een strategisch gelegen magazijn in de regio van Sint-Truiden? Neem gerust contact op voor meer informatie of een plaatsbezoek.
verhuur@immovesta.be - 0469195161
Het magazijn beschikt over een ruime toegangspoort, voldoende manoeuvreerruimte en een praktische indeling die diverse professionele activiteiten mogelijk maakt. De solide constructie en de bruikbare oppervlakte zorgen voor een efficiënte benutting van de ruimte.
Troeven:
- Gelegen in een gevestigde industriezone
- Goede bereikbaarheid
- Veelzijdig inzetbaar
- Vlotte toegang voor leveringen
Ben je op zoek naar een strategisch gelegen magazijn in de regio van Sint-Truiden? Neem gerust contact op voor meer informatie of een plaatsbezoek.
verhuur@immovesta.be - 0469195161
Energie
- EPC Certificaat: 20241216-00276685-NR-1
- Verwarming: Butaangas
- Beglazing: Enkel
Op de kaart

Financieel
| Prijs | |
|---|---|
| Maandelijkse kosten | € 0 |
Bijkomende info
Gebouw
| Is beschermd | Nee |
|---|---|
| Bouwcertificaat | Nee |
| Verdieping | 0 |
| Slaapkamers | 0 |
| Verdiepingen | 0 |
Faciliteiten
| Beglazing | Enkel |
|---|---|
| Luiken | Nee |
| Brandstof primaire verwarming | Butaangas |
| Elektrisch keuringsattest | Nee |
| Septische tank | Nee |
| Beerput | Nee |
Perceel
| Overstromingsgevoelig | Geen |
|---|---|
| Voorkeurrecht | Nee |
| Bebouwde oppervlakte (m²) | 0 |
Vergunning
| Vergunning | Geen beschikbaar |
|---|---|
| Verkavelingsvergunning | Geen beschikbaar |
Uitrusting
| Investeringspand | Nee |
|---|---|
| Geschikt als kangoeroewoning | Nee |
| Geschikt voor rolstoelgebruikers | Nee |
| Parking | Nee |
| Garage | Nee |
| Thuiskantoor | Nee |
| Kelder | Nee |
| Zolder | Nee |
| Opslagruimte | Nee |
| Tuin | Nee |
| Terras | Nee |
| Lift | Nee |
| Rioolaansluiting | Ja |
| Gasaansluiting | Ja |
| Wateraansluiting | Ja |
| Elektriciteitsaansluiting | Ja |
| TV aansluiting | Nee |
| Internetaansluiting | Nee |
| Zonnepanelen | Nee |
| Zonneboiler | Nee |
| Thuisbatterij | Nee |
| Alarm | Nee |
| Zwembad | Nee |
| Sauna | Nee |
| Jacuzzi | Nee |
| Videofoon | Nee |
| Domotica | Nee |
| Grondwaterput | Nee |
| Ventilatie | Nee |
Een pand van
Immo Vesta
De verkoop van uw woning, onze zorg.
Al sinds 2001 is Immo Vesta uw partner in de verkoop en verhuur van uw vastgoed.
Als gevestigde waarde in en rond Sint-Truiden staan wij steeds tot uw dienst.
Stefaan Hombrouckx kent als ervaren kwaliteitsmakelaar de lokale markt als geen ander.
Sinds 2024 voegde Immo Vesta zich bij de ImmoVadis groep, waardoor de werking binnen het kantoor gemoderniseerd werd om een nóg betere service te kunnen (blijven) bieden.
De dagelijkse leiding gebeurt vanuit het hoofdkantoor in Bilzen, waar Guy Clerinx, een vat vol ervaring op niveau van makelaardij, in samenwerking met een bouwkundig aannemer, Wim Lambrechts (ProMaCon BV) het kantoor leidt.
Verder werd ook Ben Moermans aangetrokken binnen het kantoor. Als energie- en asbest deskundige maakt hij het totaalplaatje van het kantoor compleet.
Door deze samenwerking kunnen we op het vlak van bouwkundigheid een meerwaarde toevoegen aan het gebruikelijk takenpakket van een standaard makelaar.
Als klant krijgt u deze deskundige meerwaarde automatisch mee inbegrepen in onze dienstverlening.
86774298
Leer meer over vastgoed
04 January 2026
Zoek je een kantoor, een magazijn of… iets ertussenin? Bedrijfsvastgoed uitgelegd
05 November 2024
Bedrijfsvastgoed in transitie: ontdek de toekomst van werkplekken
16 October 2024
Opbrengsteigendom: een slim pad naar passief inkomen en vermogensgroei
09 September 2024