Beschikbaar vanaf 1 apr. 2026
Nieuw
Lichtrijk dakappartement - 2 slaapkamers - ondergrondse parking
Een pand van Futurimmo
Overzicht
- 126.81 m² bewoonbaar
- 134 m² grond
- 2 Slaapkamer(s)
- 1 Badkamer(s)
- 1 Toilet(ten)
Beschrijving
Welkom in 'Gulden Roos'.
Deze nieuwe woonplek is een hedendaagse invulling van het typisch Brugs wonen. Gezellig groen wonen in de binnenstad. Wonen in een hedendaagse leefomgeving waarbij alles binnen handbereik is!
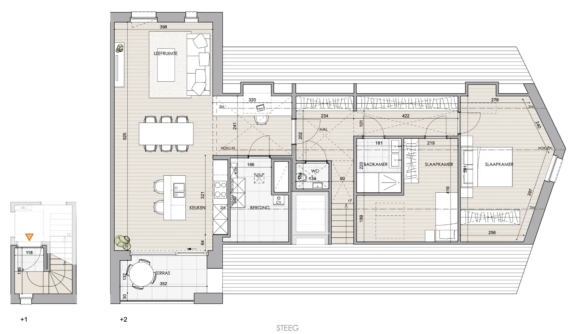
Volgende woonindeling: inkomhal met vestiaire en gastentoilet, lichtrijke zit- en eetruimte met prachtige zichten door de grote raampartijen, volledig ingerichte keuken met aansluitend het inpandig zongericht terras, technische berging met ruimte voor wasmachine en droogkast en extra opbergmogelijkheden, hal met mogelijkheid tot dressing/extra bergruimte, twee slaapkamers en een badkamer met inloopdouche en dubbele wastafel. Ondergrondse parking inbegrepen!
Het appartement is volledig geschilderd en voorzien van lichtarmaturen en gordijnrails. Meubels ter illustratie !
Beschikbaar vanaf 01/04/2026.
Gemeenschappelijke kosten : provisie 60 euro/mnd.
Appartement te bereiken via de traphal - geen lift!
Wenst u een afspraak? 0470 50 50 50 of info@futurimmo.be
Deze nieuwe woonplek is een hedendaagse invulling van het typisch Brugs wonen. Gezellig groen wonen in de binnenstad. Wonen in een hedendaagse leefomgeving waarbij alles binnen handbereik is!
Volgende woonindeling: inkomhal met vestiaire en gastentoilet, lichtrijke zit- en eetruimte met prachtige zichten door de grote raampartijen, volledig ingerichte keuken met aansluitend het inpandig zongericht terras, technische berging met ruimte voor wasmachine en droogkast en extra opbergmogelijkheden, hal met mogelijkheid tot dressing/extra bergruimte, twee slaapkamers en een badkamer met inloopdouche en dubbele wastafel. Ondergrondse parking inbegrepen!
Het appartement is volledig geschilderd en voorzien van lichtarmaturen en gordijnrails. Meubels ter illustratie !
Beschikbaar vanaf 01/04/2026.
Gemeenschappelijke kosten : provisie 60 euro/mnd.
Appartement te bereiken via de traphal - geen lift!
Wenst u een afspraak? 0470 50 50 50 of info@futurimmo.be
Energie
![]() |
- EPC Certificaat: 31005-G-OMV_2019125379/EP19377/F001/D01/SD013
- E-peil: E28
- Verwarming: Geen
- Beglazing: Onbekend
Zelfcheck
Op de kaart

Financieel
| Prijs |
|---|
Bijkomende info
Gebouw
| Staat | Goed onderhouden |
|---|---|
| Is beschermd | Nee |
| Bewoonbaar (m²) | 126.81 |
| Verdieping | 2 |
| Badkamers | 1 |
| Slaapkamers | 2 |
| Parkeerplaatsen | 1 |
| Toiletten | 1 |
Ruimtes
| Terras | 7.53 m² |
|---|
Faciliteiten
| Keuken | Open keuken |
|---|---|
| Keuken uitrusting | Goed uitgerust |
| Luiken | Nee |
| Primair verwarmingstype | Geen verwarming |
| Brandstof primaire verwarming | Geen |
| Warm water type | Geen verwarming |
Perceel
| Voorkeurrecht | Nee |
|---|---|
| Totale oppervlakte (m²) | 134 |
| Oppervlakte terras (m²) | 7 |
| Oriëntatie tuin | Zuidwest |
Vergunning
| Vergunning | Vergunning beschikbaar |
|---|---|
| Verkavelingsvergunning | Vergunning beschikbaar |
| Bouwovertreding dagvaardiging | Geen |
Uitrusting
| Meerdere eigenaars | Nee |
|---|---|
| Geschikt als kangoeroewoning | Nee |
| Geschikt voor rolstoelgebruikers | Nee |
| Geschikt voor praktijk | Nee |
| Volledig onderkelderd | Nee |
| Parking | Ja |
| Garage | Nee |
| Thuiskantoor | Nee |
| Kelder | Nee |
| Zolder | Nee |
| Opslagruimte | Ja |
| Tuin | Nee |
| Terras | Ja |
| Lift | Nee |
| Rioolaansluiting | Ja |
| Gasaansluiting | Ja |
| Wateraansluiting | Ja |
| Elektriciteitsaansluiting | Ja |
| TV aansluiting | Nee |
| Internetaansluiting | Ja |
| Zonnepanelen | Nee |
| Zonneboiler | Nee |
| Alarm | Nee |
| Zwembad | Nee |
| Jacuzzi | Nee |
| Toonzaal | Nee |
| Ventilatie | Ja |
Appartementsblok
| Lift | Nee |
|---|---|
| Intercom | Nee |
Een pand van
Futurimmo
FUTURIMMO
VERKOOP - VERHUUR - VASTGOEDEXPERTISE
TH/0031/2026
Leer meer over vastgoed
26 October 2025
Fake huuradvertenties op Facebook
06 July 2025
Wie betaalt herstellingen aan de huurwoning?
01 July 2025
Ik wil mijn huurcontract opzeggen. Hoe doe ik dit?
20 April 2025
