Horecapand 276 m² te huur site Quick Brugge
Een pand van DG Real Estate
Favoriet
Jouw zoektocht
Jouw scoretabel voor dit pand
Aan het laden...
Jouw geplande bezichtigingen
Aan het laden...
Overzicht
- 276 m² bewoonbaar
- 2 Toilet(ten)
Overstromingsgevaar gebouw
Overstromingsgevaar perceel
Beschrijving
Horecapand met grote visibiliteit te huur op een toplocatie in Brugge Sint-Andries, op de site van Quick.
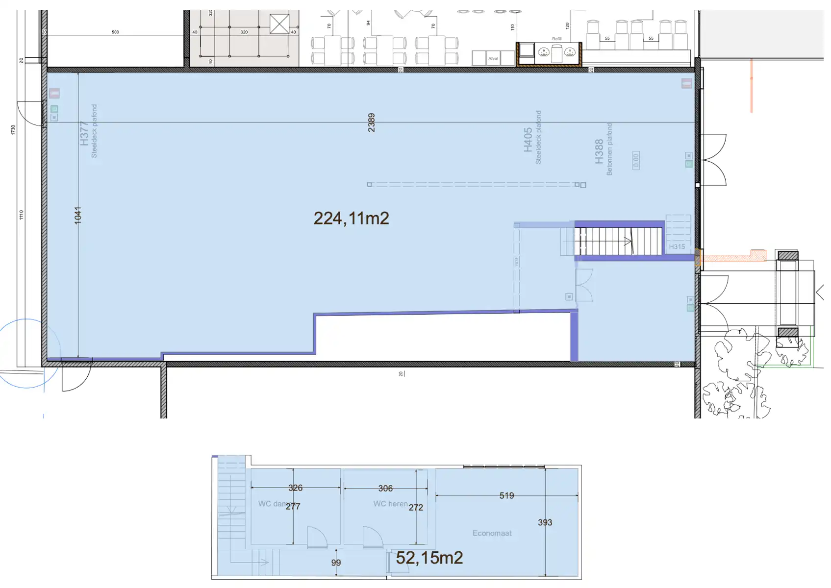
Het handelspand omvat een commercieel gelijkvloers van 224 m², aangevuld met een bovenverdieping van 52 m² waar zich sanitair en bureauruimtes bevinden.
De gevel van het gebouw wordt herontwikkeld en de oplevering is voorzien voor 10/2025.
Voor meer info, contacteer Vahé.
DG Real Estate
Making Real Estate Work!
Het handelspand omvat een commercieel gelijkvloers van 224 m², aangevuld met een bovenverdieping van 52 m² waar zich sanitair en bureauruimtes bevinden.
De gevel van het gebouw wordt herontwikkeld en de oplevering is voorzien voor 10/2025.
Voor meer info, contacteer Vahé.
DG Real Estate
Making Real Estate Work!
Energie
![]() |
- EPC Certificaat: 20251121-0031446617-NR-3
Op de kaart

Financieel
| Prijs |
|---|
Bijkomende info
Gebouw
| Staat | Goed onderhouden |
|---|---|
| Bewoonbaar (m²) | 276 |
| Gevels | 2 |
| Gevelbreedte | 5 |
| Badkamers | 0 |
| Slaapkamers | 0 |
| Verdiepingen | 1 |
| Parkeerplaatsen | 0 |
| Toiletten | 2 |
Faciliteiten
| Type vloer |
|---|
Perceel
| Overstromingsgevoelig | Geen |
|---|---|
| P-score | D |
| G-score | D |
| Tuin oppervlakte (m²) | 0 |
Vergunning
| Vergunning | Geen beschikbaar |
|---|---|
| Verkavelingsvergunning | Geen beschikbaar |
| Bouwovertreding | Geen |
| Bouwovertreding dagvaardiging | Geen |
Uitrusting
| Parking | Nee |
|---|---|
| Garage | Nee |
| Tuin | Nee |
| Terras | Nee |
| Wateraansluiting | Ja |
| Elektriciteitsaansluiting | Ja |
Een pand van
DG Real Estate
DG Real Estate, zorgeloos bedrijfsvastgoed verkopen of verhuren
Bent u op zoek naar een goed gelegen winkelpand, bedrijfsgebouw of ander vastgoed? De erkende vastgoedmakelaars van DG Real Estate weten er raad mee. Met een groot portfolio en een groot netwerk koppelen we elke vraag aan een pand. En of u kieskeurig mag zijn.
6800203
Leer meer over vastgoed
04 January 2026
Zoek je een kantoor, een magazijn of… iets ertussenin? Bedrijfsvastgoed uitgelegd
05 November 2024
Bedrijfsvastgoed in transitie: ontdek de toekomst van werkplekken
16 October 2024
Opbrengsteigendom: een slim pad naar passief inkomen en vermogensgroei
09 September 2024
