Nieuw
Instapklaar handelsgelijkvloers 250 m² Middelkerke
€ 2.900
Een pand van Agence Vanbeckevoort
Favoriet
Jouw zoektocht
Jouw scoretabel voor dit pand
Aan het laden...
Jouw geplande bezichtigingen
Aan het laden...
Overzicht
- 250 m² bewoonbaar
Beschrijving
Instapklaar handelsgelijkvloers met benutbare oppervlakte van 250 m² gelegen in het commerciële hart van Middelkerke - uitstekende ligging met hoge visibiliteit en veel passage van lokale bewoners als toeristen - in de directe omgeving bevinden zich diverse handelszaken en voorzieningen zoals een postkantoor (bpost), bankkantoren, apotheek, dagbladhandel, kapsalon, kleding- en schoenenwinkels, supermarkt, bakker, slager en verschillende horecazaken.
De Kerkstraat vormt zo een levendige commerciële ligging met veel passage dankzij de combinatie van lokale handel, dienstverlening en toerisme.
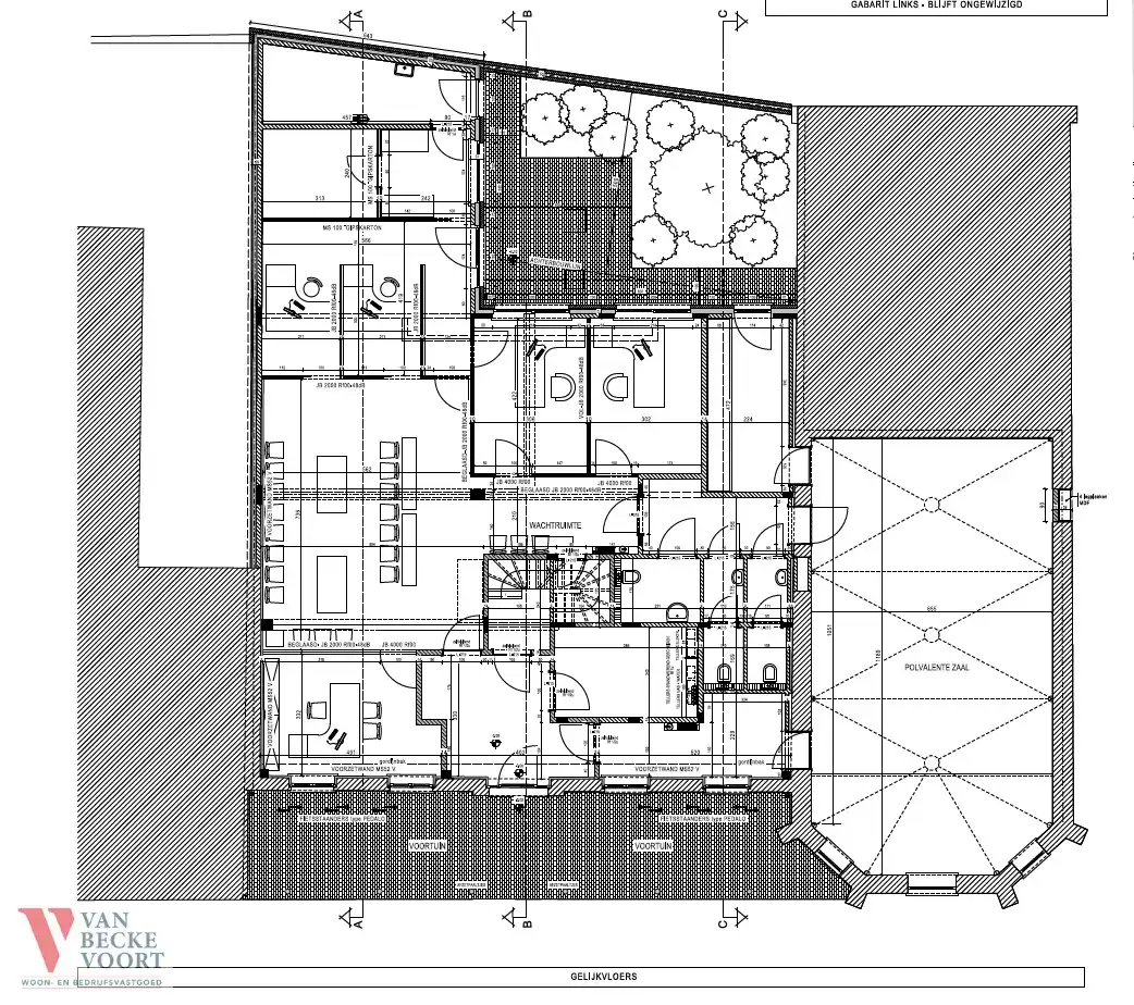
Het pand is momenteel ingericht als kantoorruimte met polyvalente zaal en biedt tal van mogelijkheden voor uiteenlopende commerciële invullingen.
De kantoorruimte en de polyvalente zaal kunnen afzonderlijk gebruikt of verhuurd worden.
Het pand is momenteel ingedeeld als volgt:
onthaalruimte met 2 loketten - 4 afzonderlijke kantoren - wachtruimte - sanitaire voorzieningen (dames, heren en toegankelijk voor mindervaliden) - kitchenette - buitenruimte - technische ruimte - opbergruimte - polyvalente zaal met bar.
Pluspunten:
- Centrale ligging in het commerciële hart van Middelkerke;
- Omringd door lokale handelaars;
- Parkeermogelijkheid voor de deur;
- Instapklaar en polyvalent gebruik;
- Uitstekende visibiliteit en veel passage;
- Mogelijkheid tot opsplitsing in 2 units;
- Zeer toegankelijk voor rolstoelgebruikers;
- Onmiddellijk beschikbaar.
De Kerkstraat vormt zo een levendige commerciële ligging met veel passage dankzij de combinatie van lokale handel, dienstverlening en toerisme.
Het pand is momenteel ingericht als kantoorruimte met polyvalente zaal en biedt tal van mogelijkheden voor uiteenlopende commerciële invullingen.
De kantoorruimte en de polyvalente zaal kunnen afzonderlijk gebruikt of verhuurd worden.
Het pand is momenteel ingedeeld als volgt:
onthaalruimte met 2 loketten - 4 afzonderlijke kantoren - wachtruimte - sanitaire voorzieningen (dames, heren en toegankelijk voor mindervaliden) - kitchenette - buitenruimte - technische ruimte - opbergruimte - polyvalente zaal met bar.
Pluspunten:
- Centrale ligging in het commerciële hart van Middelkerke;
- Omringd door lokale handelaars;
- Parkeermogelijkheid voor de deur;
- Instapklaar en polyvalent gebruik;
- Uitstekende visibiliteit en veel passage;
- Mogelijkheid tot opsplitsing in 2 units;
- Zeer toegankelijk voor rolstoelgebruikers;
- Onmiddellijk beschikbaar.
Energie
- E-peil: E0
- Beglazing: Standaard dubbel
Op de kaart

Financieel
| Prijs | |
|---|---|
| Maandelijkse kosten | € 0 |
Bijkomende info
Gebouw
| Staat | Goed onderhouden |
|---|---|
| Bouwcertificaat | Nee |
| Bewoonbaar (m²) | 250 |
| Badkamers | 0 |
| Slaapkamers | 0 |
| Verdiepingen | 0 |
| Garages | 0 |
| Parkeerplaatsen | 0 |
| Toiletten | 0 |
Faciliteiten
| Beglazing | Standaard dubbel |
|---|---|
| Septische tank | Nee |
Perceel
| Overstromingsgevoelig | Geen |
|---|---|
| P-score | B |
| G-score | A |
| Bebouwde oppervlakte (m²) | 0 |
Vergunning
| Verkavelingsvergunning | Geen beschikbaar |
|---|
Uitrusting
| Investeringspand | Nee |
|---|---|
| Parking | Nee |
| Garage | Nee |
| Lift | Nee |
| Rioolaansluiting | Nee |
| Gasaansluiting | Nee |
| Wateraansluiting | Nee |
| Elektriciteitsaansluiting | Ja |
| Internetaansluiting | Ja |
| Telefoonaansluiting | Ja |
| Zonnepanelen | Nee |
| Zonneboiler | Nee |
| Alarm | Nee |
| Videofoon | Nee |
| Grondwaterput | Nee |
Appartementsblok
| Lift | Nee |
|---|---|
| Intercom | Nee |
Een pand van
Agence Vanbeckevoort
Vanbeckevoort - Immo Oostende
Al drie generaties lang schuimt de familie Vanbeckevoort het vastgoedlandschap in Oostende af. Met bijzondere voorliefde voor bedrijfs- en residentiële panden bouwde het immo-kantoor een sterke expertise uit. Verhuren, verkopen, overnemen of een pand beschikbaar? Vanbeckevoort gaat voluit voor uw dossier. Van marktconforme schatting en de zoektocht naar de juiste kandidaat tot het opstellen en ondertekenen van het contract. Zodat uw vastgoeddromen maximale zuurstof krijgen.
Kerkstraat 41 Middelkerke
Leer meer over vastgoed
04 January 2026
Zoek je een kantoor, een magazijn of… iets ertussenin? Bedrijfsvastgoed uitgelegd
05 November 2024
Bedrijfsvastgoed in transitie: ontdek de toekomst van werkplekken
16 October 2024
Opbrengsteigendom: een slim pad naar passief inkomen en vermogensgroei
09 September 2024