Kantoor op toplocatie met parkeerplaatsen centrum Kortrijk
Een pand van CEUSTERS
Overzicht
- 233 m² bewoonbaar
Beschrijving
Kantoor met privatieve parkeerplaatsen te huur in Kortrijk
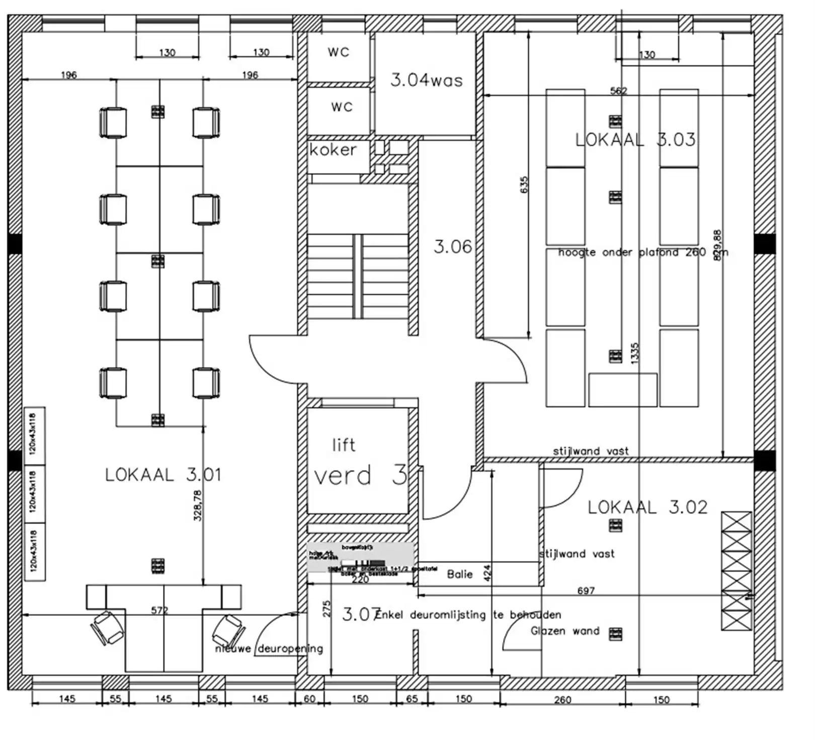
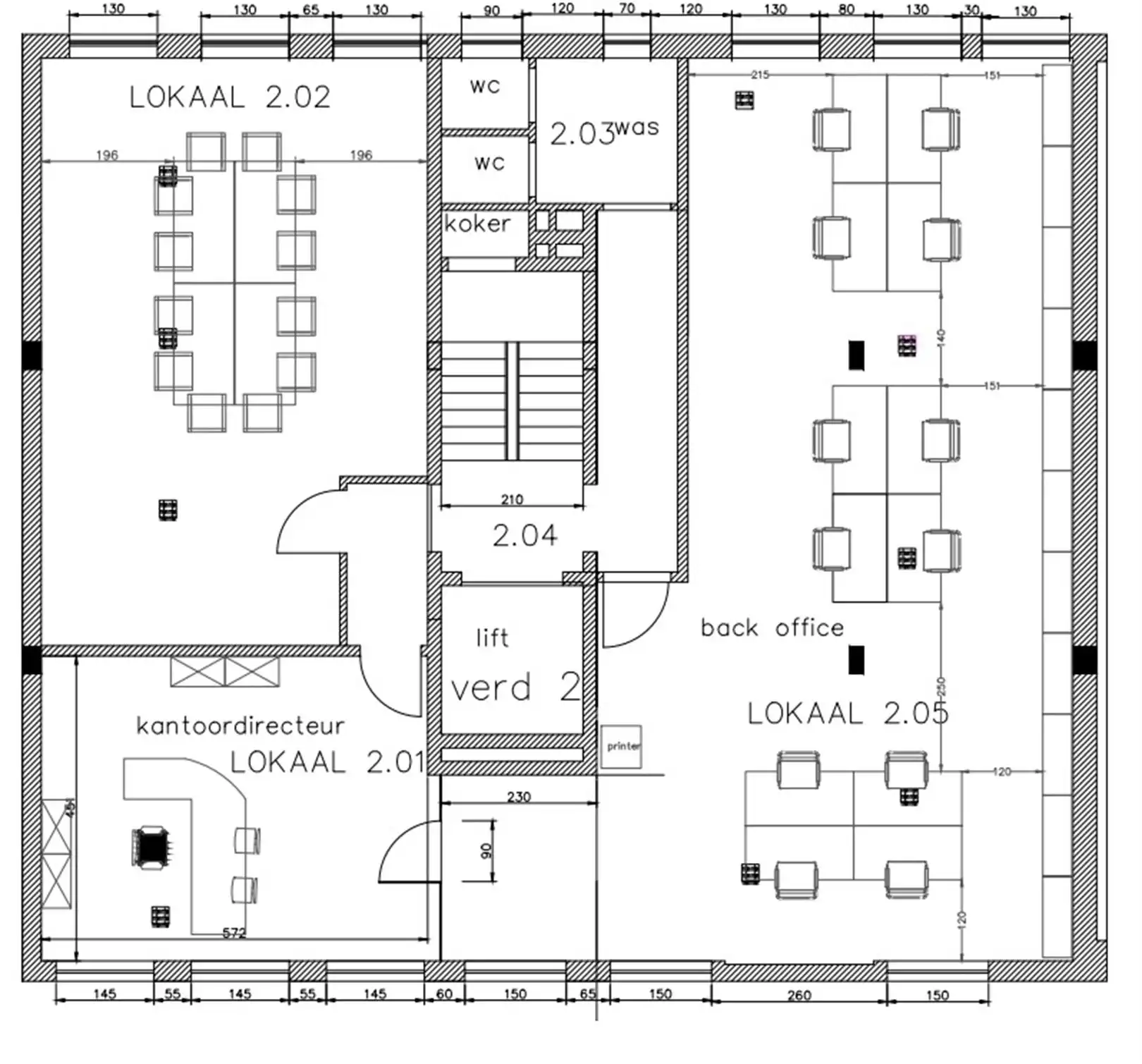
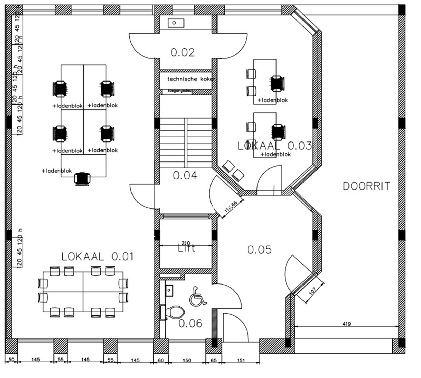
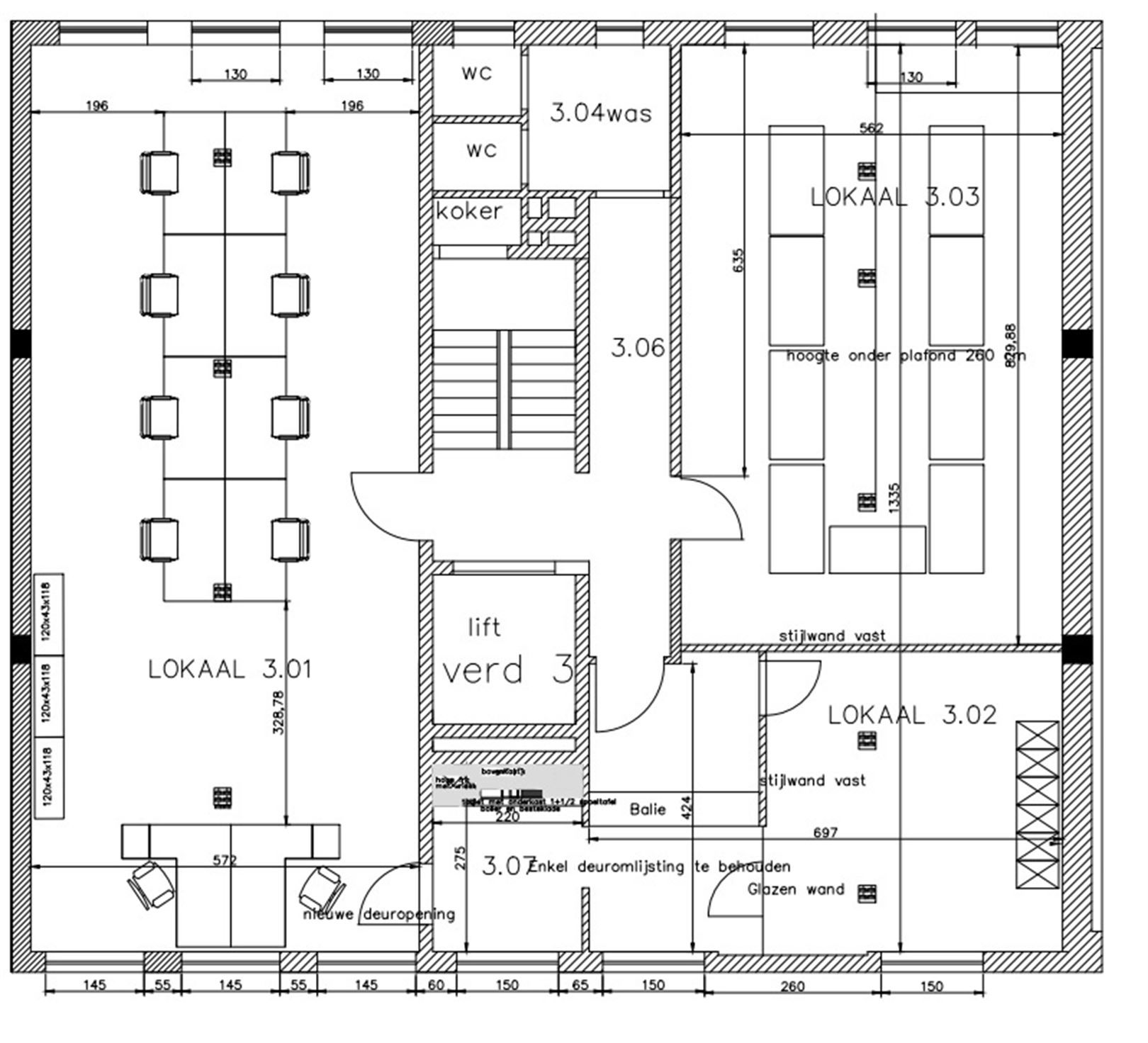
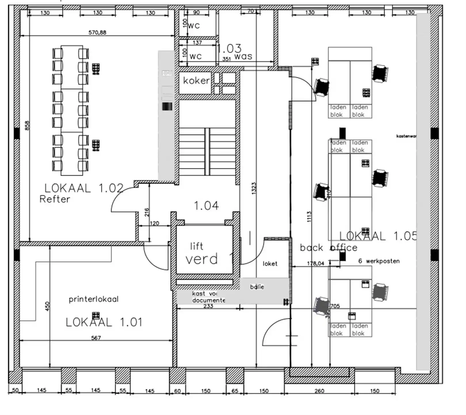
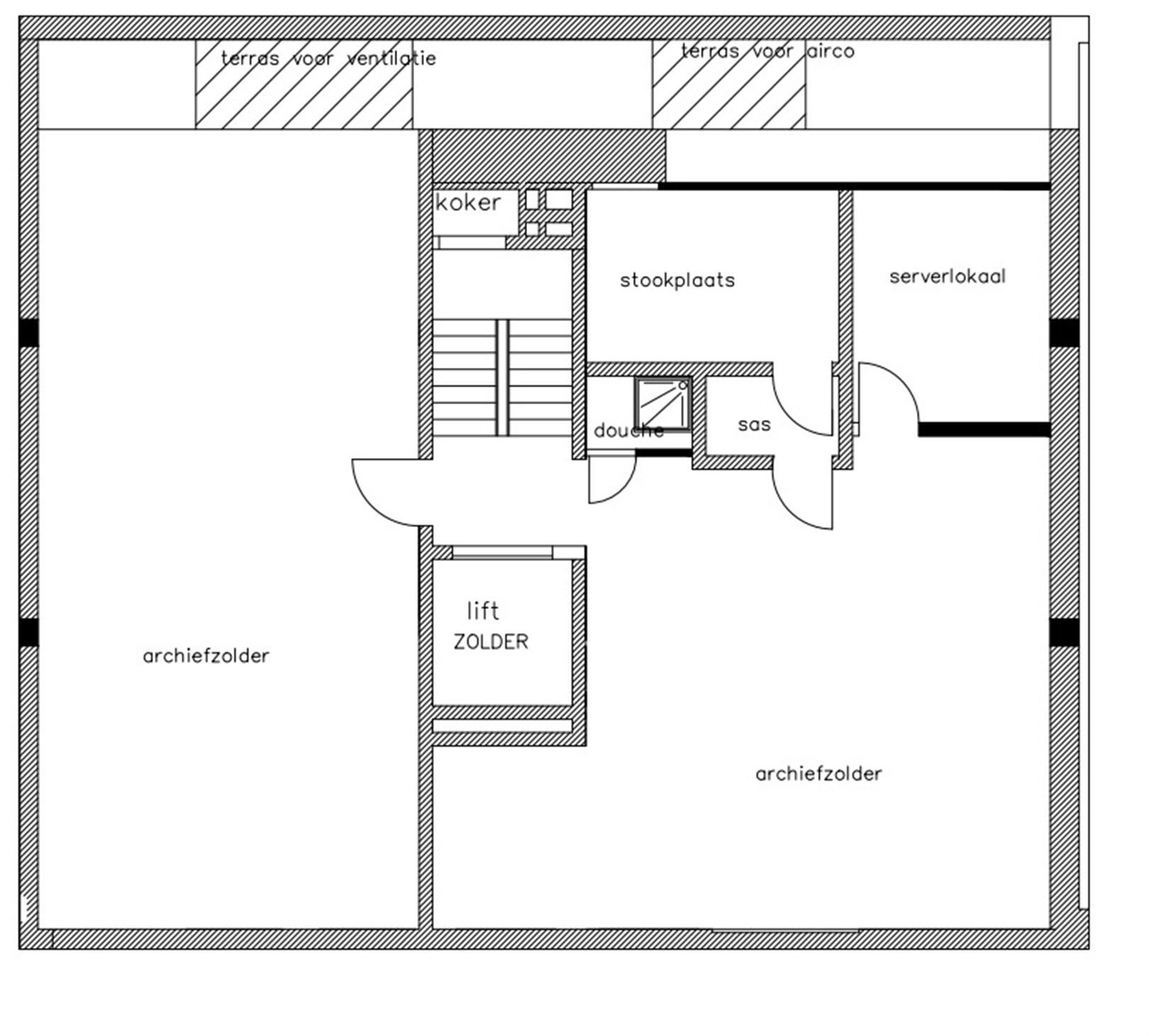
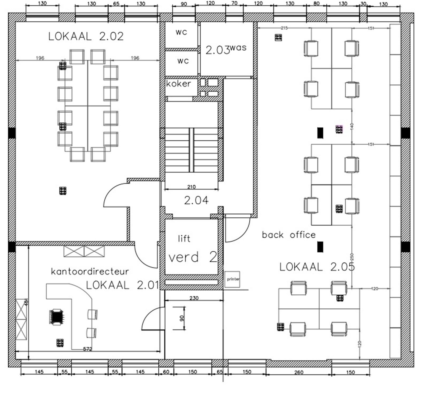
Gelegen op een toplocatie tussen het station en het Gerechtsgebouw, en op wandelafstand van de Grote Markt, vindt u dit karaktervolle kantoorgebouw met een totale oppervlakte van ca. 1000m².
Dankzij de indeling per verdieping is het gebouw geschikt voor zowel kleinere als groeiende organisaties die flexibiliteit belangrijk vinden.
Huren kan hier per verdiep, meerdere verdiepingen of in totaliteit.
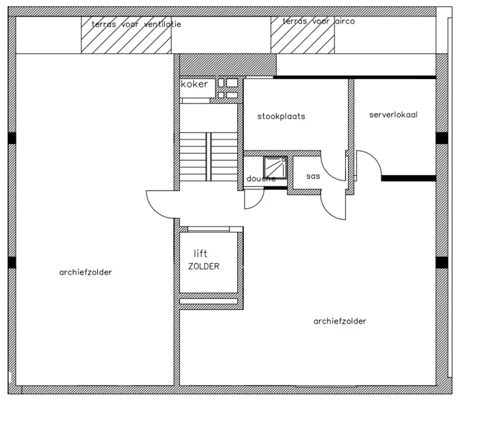
Verschillende opslagmogelijkheden in de kelder.
Pluspunten van dit gebouw:
- Centrale ligging, doch vlot bereikbaar met de wagen
- Moderne installaties: warmtepomp, ventilatiesysteem, zonnepanelen en hoogspanningscabine
- Uitgerust met toegangscontrole, UTP-bekabeling en fiberverbinding
- Comfortabel bereikbaar dankzij lift en hedendaagse voorzieningen
Parkeergelegenheid
Bij het gebouw horen 17 parkeerplaatsen achteraan, waarvan 6 voorzien zijn van laadpunten voor elektrische voertuigen, een zeldzame troef in het centrum van Kortrijk.
Dit kantoor biedt de ideale mix van bereikbaarheid, professionaliteit en duurzaamheid.
Huurprijzen zijn excl. 21% BTW
Energie
![]() |
- E-peil: E0
- Beglazing: Onbekend
Op de kaart

Financieel
| Prijs | |
|---|---|
| Maandelijkse kosten | € 0 |
| Kadastraal inkomen (niet geïndexeerd) | € 0 |
| Kadastraal inkomen (geïndexeerd) | € 0 |
Bijkomende info
Gebouw
| Bouwcertificaat | Nee |
|---|---|
| Bewoonbaar (m²) | 233 |
| Verdieping | 0 |
| Badkamers | 0 |
| Slaapkamers | 0 |
| Verdiepingen | 0 |
| Garages | 0 |
| Parkeerplaatsen | 0 |
| Doucheruimtes | 0 |
| Toiletten | 0 |
Faciliteiten
| Elektrisch keuringsattest | Nee |
|---|
Perceel
| Overstromingsgevoelig | Geen |
|---|---|
| P-score | B |
| G-score | B |
| Voorkeurrecht | Nee |
| Bebouwde oppervlakte (m²) | 0 |
| Tuin oppervlakte (m²) | 0 |
| Oppervlakte terras (m²) | 0 |
Vergunning
| Vergunning | Vergunning beschikbaar |
|---|
Uitrusting
| Investeringspand | Nee |
|---|---|
| Geschikt voor praktijk | Nee |
| Parking | Nee |
| Garage | Nee |
| Thuiskantoor | Nee |
| Kelder | Nee |
| Zolder | Nee |
| Tuin | Nee |
| Terras | Nee |
| Lift | Nee |
| Rioolaansluiting | Nee |
| Gasaansluiting | Nee |
| Wateraansluiting | Nee |
| Elektriciteitsaansluiting | Nee |
| TV aansluiting | Nee |
| Internetaansluiting | Nee |
| Telefoonaansluiting | Nee |
Appartementsblok
| Naam residentie | LEOPOLD-I-STRAAT 18 |
|---|---|
| Lift | Nee |
