Winkelruimte te huur gelegen langs Ter Ferrants in Kuurne
€ 6.666,67
Een pand van OREON PROPERTIES
Favoriet
Jouw zoektocht
Jouw scoretabel voor dit pand
Aan het laden...
Jouw geplande bezichtigingen
Aan het laden...
Overzicht
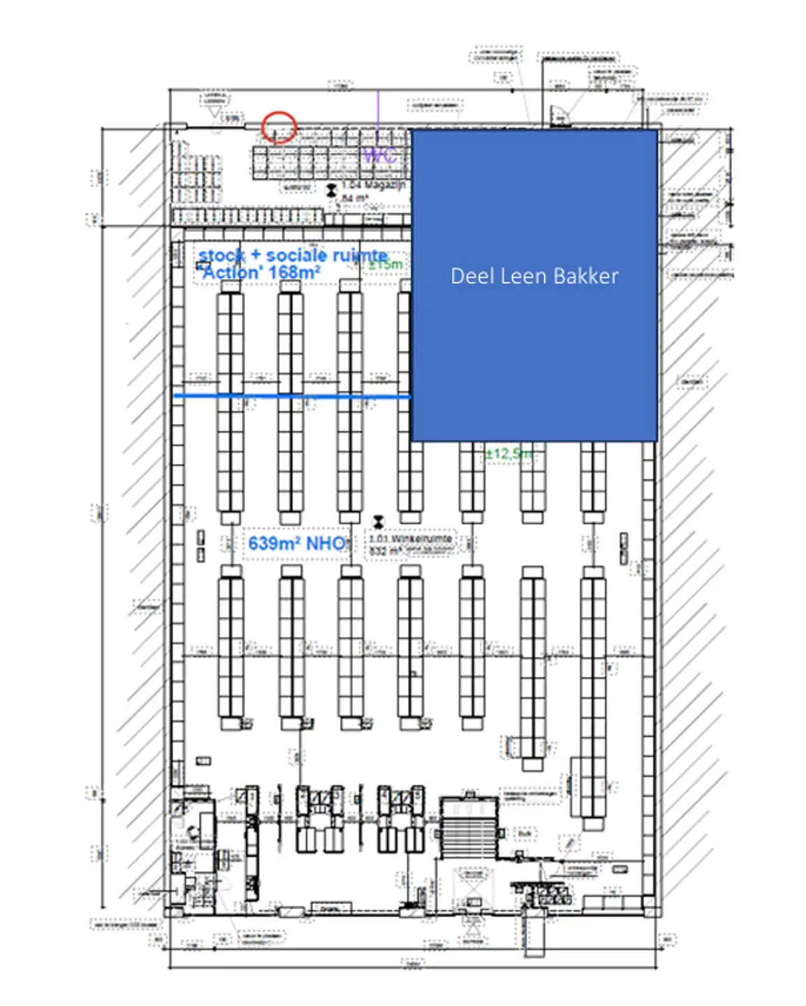
- 807 m² bewoonbaar
Beschrijving
Winkelruimte te huur met een oppervlakte van +/- 807m². Gelegen langs de Ter Ferrants 4 te Kuurne
Algemeen:
De winkelruimte heeft een oppervlakte van 807 m².
Het pand geniet van een uitstekende ligging in het winkelpark langs de Ringlaan en Brugsesteenweg. Dankzij de aanwezigheid van diverse grote winkels in dit winkelpark beschikt het pand over uitzonderlijke visibiliteit en passeert er dagelijks een groot aantal potentiële klanten.
De locatie langs de Brugsesteenweg en Ringlaan, de ring rond Kortrijk, zorgt bovendien voor een zeer vlotte bereikbaarheid. Daarnaast is er een ruimte gemeenschappelijke parking aanwezig, wat zowel voor klanten als personeel een belangrijke troef vormt.
Beschikbaarheid: na het bekomen van eventuele vergunningen.
Financieel:
Huurprijs/maand: € 6.666,67
Huurprijs/jaar: 80.000,00
Gemeenschappelijke lasten:
OV, verzekeringen, bijdrage gemeenschappelijke kosten voor onderhoud groenzones/parkeerplaats...
Privatieve lasten:
Abonnements- en verbruikskosten voor nutsvoorzieningen zoals gas, water en elektriciteit. Telefoon- en data-installatiekosten.
De winkelruimte heeft een oppervlakte van 807 m².
Het pand geniet van een uitstekende ligging in het winkelpark langs de Ringlaan en Brugsesteenweg. Dankzij de aanwezigheid van diverse grote winkels in dit winkelpark beschikt het pand over uitzonderlijke visibiliteit en passeert er dagelijks een groot aantal potentiële klanten.
De locatie langs de Brugsesteenweg en Ringlaan, de ring rond Kortrijk, zorgt bovendien voor een zeer vlotte bereikbaarheid. Daarnaast is er een ruimte gemeenschappelijke parking aanwezig, wat zowel voor klanten als personeel een belangrijke troef vormt.
Beschikbaarheid: na het bekomen van eventuele vergunningen.
Financieel:
Huurprijs/maand: € 6.666,67
Huurprijs/jaar: 80.000,00
Gemeenschappelijke lasten:
OV, verzekeringen, bijdrage gemeenschappelijke kosten voor onderhoud groenzones/parkeerplaats...
Privatieve lasten:
Abonnements- en verbruikskosten voor nutsvoorzieningen zoals gas, water en elektriciteit. Telefoon- en data-installatiekosten.
Energie
![]() |
Op de kaart

Financieel
| Prijs |
|---|
Bijkomende info
Gebouw
| Bewoonbaar (m²) | 807 |
|---|---|
| Badkamers | 0 |
| Slaapkamers | 0 |
| Parkeerplaatsen | 70 |
Faciliteiten
| Type vloer |
|---|
Perceel
| Tuin oppervlakte (m²) | 0 |
|---|
Vergunning
| Vergunning | Geen beschikbaar |
|---|---|
| Verkavelingsvergunning | Geen beschikbaar |
Uitrusting
| Parking | Ja |
|---|---|
| Garage | Nee |
| Tuin | Nee |
| Terras | Nee |
Een pand van
OREON PROPERTIES
Oreon Properties
Vastgoedmakelaar Oreon Properties is uw expert op het vlak van (ver)huur of (ver)koop van kantoren, logistiek of industrieel vastgoed, investeren in vastgoed en vastgoedbeheer. Investeerders en ondernemingen die op zoek zijn naar kantoren, logistiek of industrieel vastgoed kunnen bij Oreon Properties aankloppen voor professioneel advies op maat en begeleiding bij al hun investeringen en vastgoedtransacties.
Leer meer over vastgoed
04 January 2026
Zoek je een kantoor, een magazijn of… iets ertussenin? Bedrijfsvastgoed uitgelegd
05 November 2024
Bedrijfsvastgoed in transitie: ontdek de toekomst van werkplekken
16 October 2024
Opbrengsteigendom: een slim pad naar passief inkomen en vermogensgroei
09 September 2024
