Beschikbaar vanaf 1 apr. 2027
Nieuw
Logistiek met kantoren
€ 30.000
Een pand van CEUSTERS
Overzicht
- 6618 m² bewoonbaar
Beschrijving
Strategisch gelegen moderne logistieke bedrijfsruimte met kantoren langs de Ringlaan in Kuurne, gelegen in de industriezone Kortrijk Noord 2.
Specificaties magazijn:
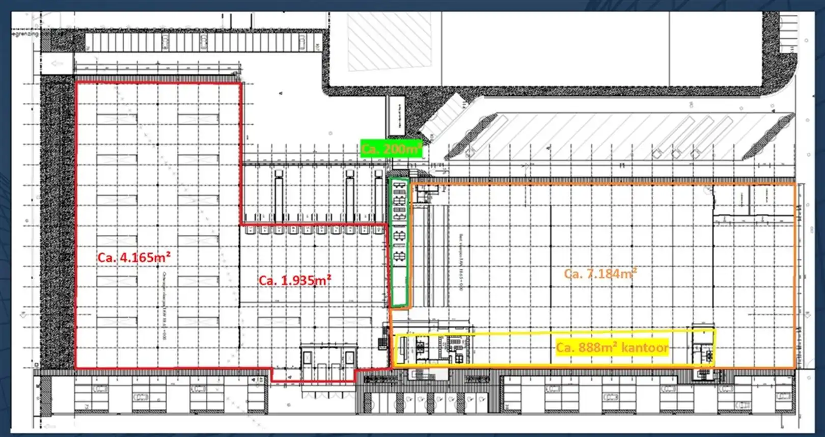
- Totale magazijnoppervlakte: 13.302 m² (deelbaar, optie vanaf ca. 6.118 m²)
- Vrije hoogte: ca. 8,2 m tot 10,2 m
- Constructie: betonnen structuur
- Vloer: polybetonvloer
- Verwarming: verwarmde magazijnruimte
- Verlichting: LED-verlichting
- Sprinklerinstallatie aanwezig
- Ventilatiesysteem
- Laad- en losvoorzieningen: 10 laadkades en 4 sectionale poorten
- Overdekte buitenruimte: ca. 208 m²
- Oplaadzone voor elektrische heftrucks
- Elektriciteit: hoogspanningscabine 10.000 V
- Inpandig magazijnkantoor: ca. 200 m²
- Magazijnrekken: eventueel over te nemen
Specificaties kantoor:
- Totale kantooroppervlakte: ca. 888 m² instapklare kantoren
- Indeling: open space en 4 vergaderzalen
- Ingerichte keuken/refter en sociale ruimtes met douches
- Sanitair voor dames en heren
- Afwerking: modern, lichtrijk en instapklaar, voorzien van verlaagd plafond en computervloer
- Technieken: HVAC-installatie, databekabeling
- Verlichting: LED-verlichting
- Veiligheid: brandhaspels en rookmelders
Kenmerken van de bereikbaarheid:
- Ligging langs de Ringlaan van Kuurne met directe aansluiting op de ring
- Vlotte en snelle verbinding met de E17
- Gelegen in industriezone Kortrijk Noord 2
- Goede bereikbaarheid voor zowel personen- als vrachtverkeer
Aanvullende informatie:
- Optie 1: totaliteit van 13.302 m² magazijn, 200 m² inpandige kantoren, 888 m² kantoren, parkeerplaatsen en buitenterrein
- Optie 2: ca. 6.118 m² magazijn met ca. 500 m² kantoor: 360.000 EUR/jaar.
- Onroerende voorheffing: ca. 7,5 EUR/m²/jaar
- Verzekering: ca. 1 EUR/m²/jaar
- Beheersfee van toepassing bij opsplitsing van het gebouw
- Algemene kosten: nog te bepalen
- Optioneel bij te huren hoekperceel: 60.000 EUR/jaar
Een gedetailleerde offerte op maat is mogelijk na een bezoek en toelichting van uw behoefte en gewenste huurtermijn.
Energie
![]() |
- E-peil: E0
- Beglazing: Onbekend
Op de kaart

Financieel
| Prijs | |
|---|---|
| Maandelijkse kosten | € 0 |
| Kadastraal inkomen (niet geïndexeerd) | € 0 |
| Kadastraal inkomen (geïndexeerd) | € 0 |
Bijkomende info
Gebouw
| Bouwcertificaat | Nee |
|---|---|
| Bewoonbaar (m²) | 6618 |
| Verdieping | 0 |
| Badkamers | 0 |
| Slaapkamers | 0 |
| Verdiepingen | 0 |
| Garages | 0 |
| Parkeerplaatsen | 0 |
| Doucheruimtes | 0 |
| Toiletten | 0 |
Faciliteiten
| Elektrisch keuringsattest | Nee |
|---|
Perceel
| Overstromingsgevoelig | Geen |
|---|---|
| Voorkeurrecht | Ja |
| Bebouwde oppervlakte (m²) | 0 |
| Tuin oppervlakte (m²) | 0 |
| Oppervlakte terras (m²) | 0 |
Vergunning
| Vergunning | Geen beschikbaar |
|---|---|
| Verkavelingsvergunning | Geen beschikbaar |
Uitrusting
| Investeringspand | Nee |
|---|---|
| Geschikt voor praktijk | Nee |
| Parking | Nee |
| Garage | Nee |
| Thuiskantoor | Nee |
| Kelder | Nee |
| Zolder | Nee |
| Tuin | Nee |
| Terras | Nee |
| Lift | Nee |
| Rioolaansluiting | Nee |
| Gasaansluiting | Nee |
| Wateraansluiting | Nee |
| Elektriciteitsaansluiting | Nee |
| TV aansluiting | Nee |
| Internetaansluiting | Nee |
| Telefoonaansluiting | Nee |
Appartementsblok
| Naam residentie | NOORDLAAN 2 KUURNE |
|---|---|
| Lift | Nee |
Een pand van
CEUSTERS
CEUSTERS
Onze experts in property management en vastgoedadvies stellen een kwalitatieve dienstverlening voorop. Creatief en flexibel gaat ons team op zoek naar kansen en oplossingen voor elke klant. Telkens een stapje verder. Naast onze kantoren in Antwerpen, Gent, Brussel, Hasselt en Rotterdam (Nederland), opereert CEUSTERS vanuit zes andere vestigingen verspreid over heel België. In deze snel veranderende wereld staat ons sterk inzicht in de lokale markt garant voor continuïteit.
NOORDLAAN 2 KUURNE
Leer meer over vastgoed
04 January 2026
Zoek je een kantoor, een magazijn of… iets ertussenin? Bedrijfsvastgoed uitgelegd
05 November 2024
Bedrijfsvastgoed in transitie: ontdek de toekomst van werkplekken
16 October 2024
Opbrengsteigendom: een slim pad naar passief inkomen en vermogensgroei
09 September 2024
