Moderne lichtrijke kantoren
Een pand van CEUSTERS
Overzicht
- 195 m² bewoonbaar
Beschrijving
Dit lichtrijk kantorenpark Z-Offices is gelegen langsheen de Blokkestraat te Zwevegem.
Deze kantoren zijn gelegen op 3km van het op- en afrittencomplex van de E17, hebben een vlotte verbinding naar de R8 en E403 en het centrum van Kortrijk.
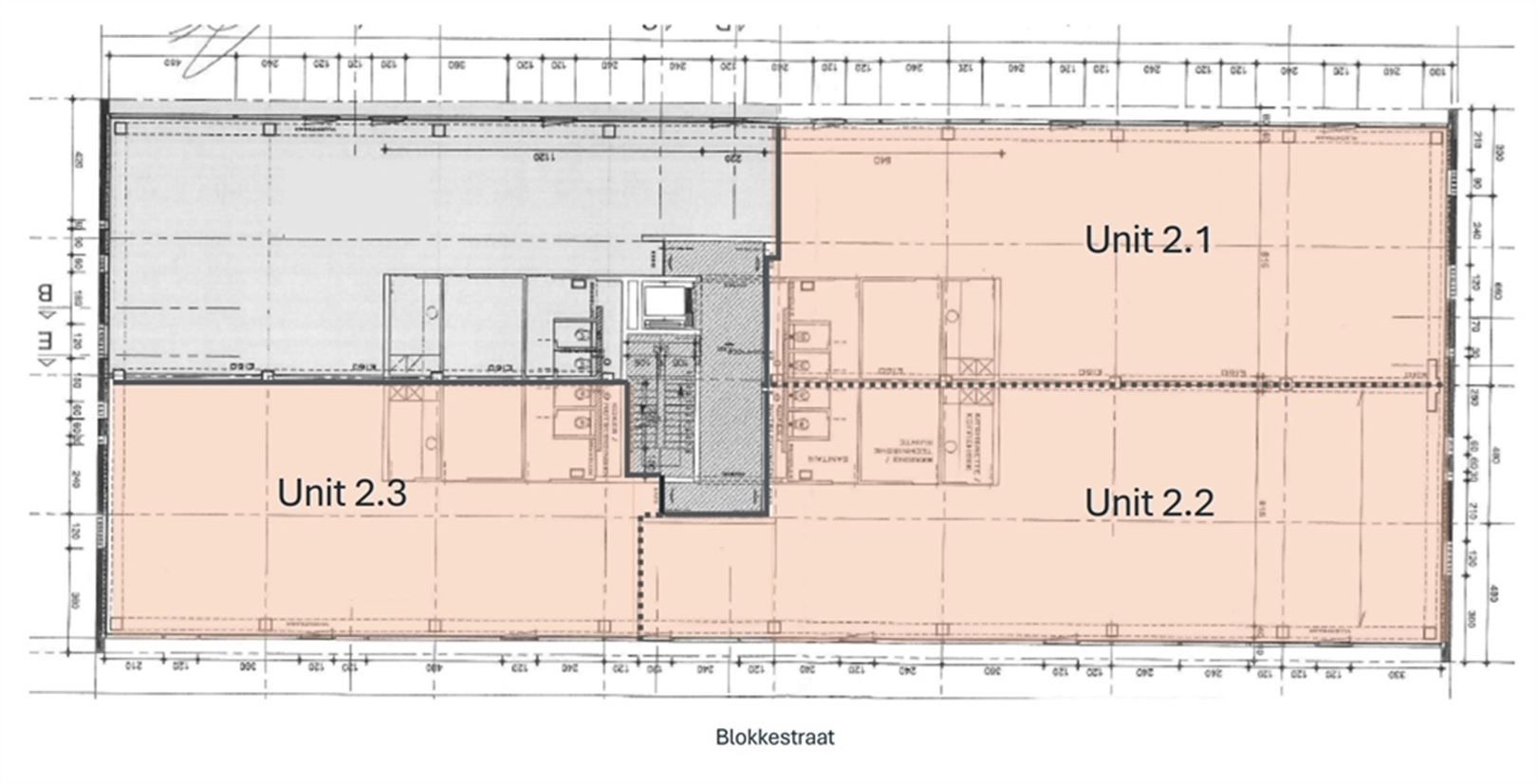
Op deze site staan 2 kantoorgebouwen van telkens 2.800m² verdeeld over 3 verdiepingen.
Gebouw A heeft een zichtlocatie langsheen de Blokkestraat, gebouw B geniet van een mooi groen uitzicht.
De aangeboden ruimtes kunnen afzonderlijk of gecombineerd gehuurd worden.
De 2 kantoorgebouwen hebben een moderne infrastructuur:
- veel ramen, die voor voldoende daglicht zorgen
- verlaagd plafond
- HVAC (koeling en verwarming)
- led-verlichting
- verhoogde computervloer
- databekabeling
- tapijttegels
- sanitaire voorzieningen
- groenaanleg rond de gebouwen en parking
Er is ook een fietsparking voorzien.
Parkeerplaatsen kunnen bijgehuurd worden aan 650€/pl/jaar zonder laadinfrastructuur.
Energie
- E-peil: E0
- Beglazing: Onbekend
Op de kaart

Financieel
| Maandelijkse kosten | € 0 |
|---|---|
| Kadastraal inkomen (niet geïndexeerd) | € 0 |
| Kadastraal inkomen (geïndexeerd) | € 0 |
Bijkomende info
Gebouw
| Bouwcertificaat | Nee |
|---|---|
| Bewoonbaar (m²) | 195 |
| Verdieping | 0 |
| Badkamers | 0 |
| Slaapkamers | 0 |
| Verdiepingen | 0 |
| Garages | 0 |
| Parkeerplaatsen | 0 |
| Doucheruimtes | 0 |
| Toiletten | 0 |
Faciliteiten
| Elektrisch keuringsattest | Ja |
|---|
Perceel
| Overstromingsgevoelig | Geen |
|---|---|
| Voorkeurrecht | Nee |
| Bebouwde oppervlakte (m²) | 0 |
| Tuin oppervlakte (m²) | 0 |
| Oppervlakte terras (m²) | 0 |
Uitrusting
| Investeringspand | Nee |
|---|---|
| Geschikt voor praktijk | Nee |
| Parking | Nee |
| Garage | Nee |
| Thuiskantoor | Nee |
| Kelder | Nee |
| Zolder | Nee |
| Tuin | Nee |
| Terras | Nee |
| Lift | Nee |
| Rioolaansluiting | Nee |
| Gasaansluiting | Nee |
| Wateraansluiting | Nee |
| Elektriciteitsaansluiting | Nee |
| TV aansluiting | Nee |
| Internetaansluiting | Nee |
| Telefoonaansluiting | Nee |
Appartementsblok
| Naam residentie | Z-Offices |
|---|---|
| Lift | Nee |