Nieuw
Ruim casco nieuwbouw handelspand te huur in de Zeelaan
€ 4.500
Overzicht
- 1 Toilet(ten)
Beschrijving
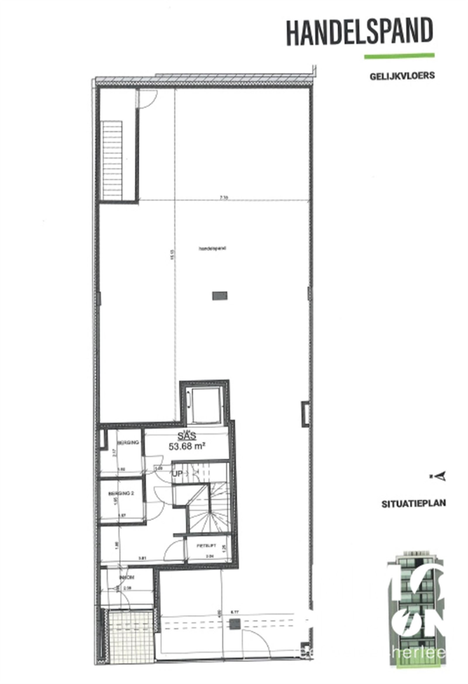
🏪 Casco handelspand te huur – Zeelaan, De Panne
Nieuwbouw • Energiezuinig • Toplocatie
In het hart van De Panne, aan de centrale en volledig vernieuwde Zeelaan, bevindt zich dit ruime casco handelspand. Het pand is ideaal voor ondernemers die hun zaak willen vestigen op een zichtlocatie met veel passage, op wandelafstand van strand, tram en station.
💡 Troeven
🏗️ Nieuw gebouw met moderne architectuur
🌿 Zeer energiezuinig – voldoet aan de nieuwste EPB-normen
⚙️ Casco oplevering – kies zelf vloeren, wanden, verlichting en voorzieningen
💼 Flexibele indeling – geschikt voor retail, horeca, kantoor of showroom
✨ Waarom dit handelspand kiezen?
Het pand combineert een moderne uitstraling, energiezuinigheid en centrale ligging.
U kunt het volledig naar eigen wens inrichten, zonder renovatiekosten.
Een perfecte kans om uw onderneming op een prominente kustlocatie te starten.
Nieuwbouw • Energiezuinig • Toplocatie
In het hart van De Panne, aan de centrale en volledig vernieuwde Zeelaan, bevindt zich dit ruime casco handelspand. Het pand is ideaal voor ondernemers die hun zaak willen vestigen op een zichtlocatie met veel passage, op wandelafstand van strand, tram en station.
💡 Troeven
🏗️ Nieuw gebouw met moderne architectuur
🌿 Zeer energiezuinig – voldoet aan de nieuwste EPB-normen
⚙️ Casco oplevering – kies zelf vloeren, wanden, verlichting en voorzieningen
💼 Flexibele indeling – geschikt voor retail, horeca, kantoor of showroom
✨ Waarom dit handelspand kiezen?
Het pand combineert een moderne uitstraling, energiezuinigheid en centrale ligging.
U kunt het volledig naar eigen wens inrichten, zonder renovatiekosten.
Een perfecte kans om uw onderneming op een prominente kustlocatie te starten.
Energie
- E-peil: E0
- Beglazing: Onbekend
Op de kaart

Financieel
| Prijs | |
|---|---|
| Maandelijkse kosten | € 0 |
| Kadastraal inkomen (niet geïndexeerd) | € 0 |
| Kadastraal inkomen (geïndexeerd) | € 0 |
Bijkomende info
Gebouw
| Bouwcertificaat | Nee |
|---|---|
| Verdieping | 0 |
| Gevelbreedte | 6.65 |
| Badkamers | 0 |
| Slaapkamers | 0 |
| Verdiepingen | 0 |
| Garages | 0 |
| Parkeerplaatsen | 0 |
| Doucheruimtes | 0 |
| Toiletten | 1 |
Faciliteiten
| Elektrisch keuringsattest | Nee |
|---|
Perceel
| Diepte (m) | 25 |
|---|---|
| Overstromingsgevoelig | Geen |
| Voorkeurrecht | Nee |
| Bebouwde oppervlakte (m²) | 0 |
| Tuin oppervlakte (m²) | 0 |
| Oppervlakte terras (m²) | 0 |
Vergunning
| Vergunning | Vergunning beschikbaar |
|---|---|
| Verkavelingsvergunning | Geen beschikbaar |
Uitrusting
| Investeringspand | Nee |
|---|---|
| Geschikt voor praktijk | Nee |
| Parking | Nee |
| Garage | Nee |
| Thuiskantoor | Ja |
| Kelder | Ja |
| Zolder | Nee |
| Tuin | Nee |
| Terras | Nee |
| Lift | Ja |
| Rioolaansluiting | Nee |
| Gasaansluiting | Nee |
| Wateraansluiting | Nee |
| Elektriciteitsaansluiting | Nee |
| TV aansluiting | Nee |
| Internetaansluiting | Nee |
| Telefoonaansluiting | Nee |
Appartementsblok
| Naam residentie | Res. RIVOLI |
|---|---|
| Lift | Ja |
Leer meer over vastgoed
05 November 2024
Bedrijfsvastgoed in transitie: ontdek de toekomst van werkplekken
16 October 2024
Opbrengsteigendom: een slim pad naar passief inkomen en vermogensgroei
09 September 2024
Tijdelijk vastgoed: flexibele oplossingen voor een dynamische markt
12 August 2024