Beschikbaar vanaf 1 feb. 2026
Nieuw
Nieuwbouw 2 slpk appartement met ruim zuidgericht terras (30m2) aan de Vaart
Een pand van Vastgoed Wanneyn Missiaen
Overzicht
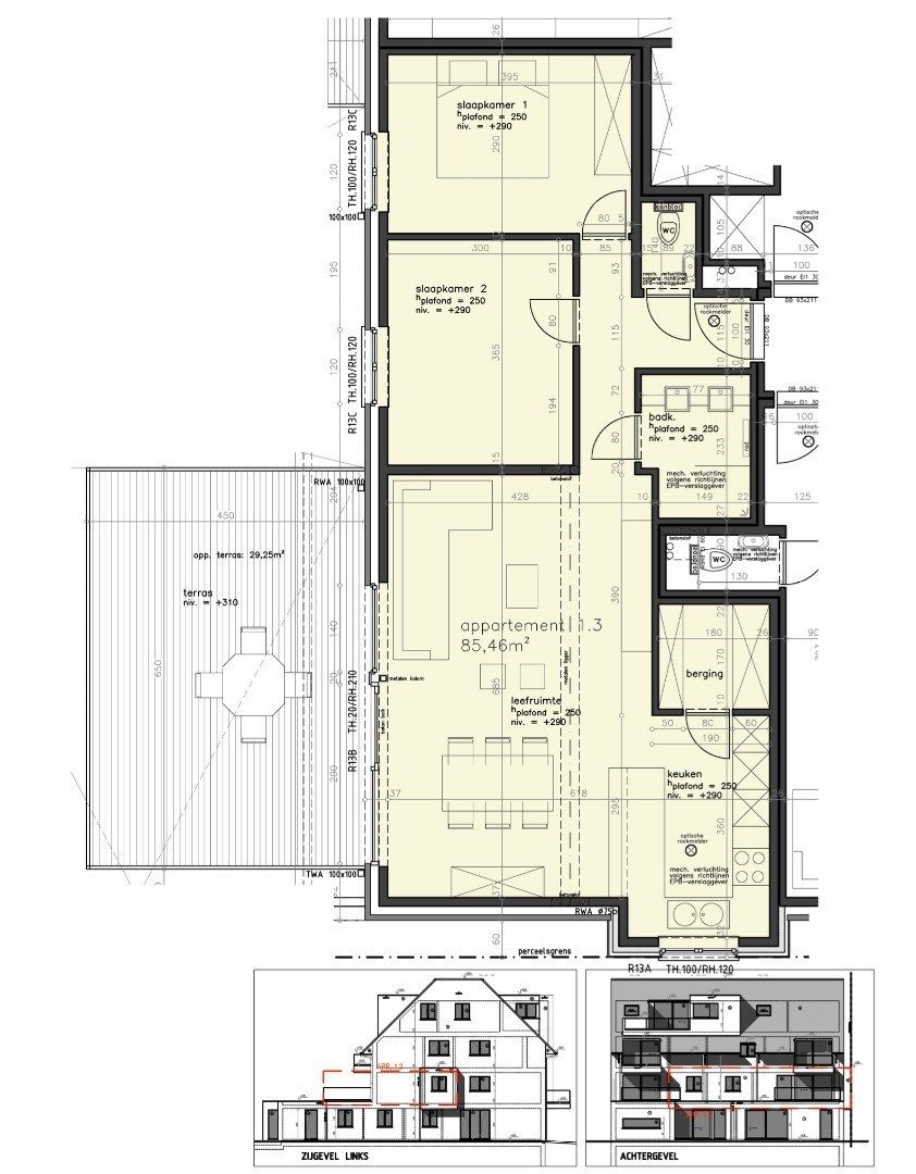
- 85 m² bewoonbaar
- 2 Slaapkamer(s)
- 1 Badkamer(s)
- 1 Toilet(ten)
- 1 Garage(s)
Beschrijving
Dit energiezuinig nieuwbouwappartement is gelegen aan de Vaart te Beernem met vlotte verbindingen naar het station van Beernem, op- en afrit van de autostrade, fietsen langs de Vaart tot in Gent of Brugge, op slechts 15 minuten rijden van Brugge...
Het appartement is gelegen op de eerste verdieping en heeft volgende indeling:
Inkom met gastentoilet, lichtrijke leefruimte met open keuken. De keuken is uitgerust met een ingebouwde frigo, vaatwas, kookplaat, dampkap en spoelbak. Palend aan de keuken bevindt zich nog een praktische berging. Vanuit de leefruimte is er toegang tot het grote zuidgerichte terras. Het terras meet 30m2. De badkamer is voorzien van een dubbele lavabo en inloopdouche en zijn er 2 slaapkamers.
Inclusief 1 parkeerplaats in de ondergrondse garage, er is ook een gemeenschappelijke fietsenberging. De verlichting en gordijnen zijn reeds voorzien.
Huurprijs appartement: 900 euro per maand
Syndic: 70 euro per maand
Wenst u een bezoek aan deze eigendom? Vraag uw bezoek dan snel aan via onze eigen website (www.vastgoedwm.be) en klik onder 'Te huur' door op het pand dat u wenst te bezoeken. Daar zal dan een knop staan 'Bezoekaanvraag'. Vanaf wij deze aanvraag hebben ontvangen, contacteren wij u zo spoedig mogelijk voor een bezoek.
Het appartement is gelegen op de eerste verdieping en heeft volgende indeling:
Inkom met gastentoilet, lichtrijke leefruimte met open keuken. De keuken is uitgerust met een ingebouwde frigo, vaatwas, kookplaat, dampkap en spoelbak. Palend aan de keuken bevindt zich nog een praktische berging. Vanuit de leefruimte is er toegang tot het grote zuidgerichte terras. Het terras meet 30m2. De badkamer is voorzien van een dubbele lavabo en inloopdouche en zijn er 2 slaapkamers.
Inclusief 1 parkeerplaats in de ondergrondse garage, er is ook een gemeenschappelijke fietsenberging. De verlichting en gordijnen zijn reeds voorzien.
Huurprijs appartement: 900 euro per maand
Syndic: 70 euro per maand
Wenst u een bezoek aan deze eigendom? Vraag uw bezoek dan snel aan via onze eigen website (www.vastgoedwm.be) en klik onder 'Te huur' door op het pand dat u wenst te bezoeken. Daar zal dan een knop staan 'Bezoekaanvraag'. Vanaf wij deze aanvraag hebben ontvangen, contacteren wij u zo spoedig mogelijk voor een bezoek.
Energie
![]() |
- E-peil: E30
- Verwarming: Gas
- Beglazing: Standaard dubbel
Zelfcheck
Op de kaart

Financieel
| Prijs |
|---|
Bijkomende info
Gebouw
| Bouwjaar | 2024 |
|---|---|
| Staat | Zo goed als nieuw |
| Is beschermd | Nee |
| Bewoonbaar (m²) | 85 |
| Verdieping | 1 |
| Badkamers | 1 |
| Slaapkamers | 2 |
| Garages | 1 |
| Parkeerplaatsen | 1 |
| Toiletten | 1 |
Ruimtes
| Terras | 30 m² |
|---|
Faciliteiten
| Keuken | Open keuken |
|---|---|
| Keuken uitrusting | Goed uitgerust |
| Materiaal ramenomlijstingen | PVC |
| Beglazing | Standaard dubbel |
| Luiken | Nee |
| Brandstof primaire verwarming | Gas |
| Primaire verwarming | Vloerverwarming |
| Warm water type | Geen verwarming |
Perceel
| Overstromingsgevoelig | Geen |
|---|---|
| P-score | A |
| G-score | A |
| Voorkeurrecht | Nee |
| Oppervlakte terras (m²) | 30 |
| Oriëntatie tuin | Zuid |
Vergunning
| Vergunning | Vergunning beschikbaar |
|---|---|
| Bouwovertreding dagvaardiging | Geen |
| Type gebied | Stedelijk |
Uitrusting
| Meerdere eigenaars | Nee |
|---|---|
| Geschikt als kangoeroewoning | Nee |
| Geschikt voor rolstoelgebruikers | Nee |
| Geschikt voor praktijk | Nee |
| Volledig onderkelderd | Nee |
| Parking | Ja |
| Garage | Ja |
| Thuiskantoor | Nee |
| Kelder | Nee |
| Zolder | Nee |
| Opslagruimte | Ja |
| Terras | Ja |
| Lift | Ja |
| Rioolaansluiting | Ja |
| Gasaansluiting | Ja |
| Wateraansluiting | Ja |
| Elektriciteitsaansluiting | Ja |
| TV aansluiting | Nee |
| Internetaansluiting | Ja |
| Zonnepanelen | Ja |
| Zonneboiler | Nee |
| Alarm | Nee |
| Zwembad | Nee |
| Jacuzzi | Nee |
| Toonzaal | Nee |
| Ventilatie | Nee |
Appartementsblok
| Lift | Ja |
|---|---|
| Ondergrondse parking | Ja |
| Intercom | Nee |
Een pand van
Vastgoed Wanneyn Missiaen
Vastgoed Wanneyn Missiaen
Ons enthousiast team bestaat uit 3 ervaren vastgoedmakelaars, 3 geroutineerde vrouwen die goed aanvoelen hoe we u het best kunnen adviseren en ontzorgen. Er komt toch zoveel bij kijken als je uw huis of appartement wilt verkopen of verhuren.
Meestal begint het met de vraag 'Wat is mijn huis, appartement, grond, handelspand waard?'
Bel ons en wij komen ter plaatse voor een vrijblijvende waardebepaling. Wij gaan u ter plaatse meteen aantonen hoe wij te werk gaan.
Ons kantoor is gevestigd in Beernem, nabij het station, wij zijn actief in de ruime regio +- 20 km rondom Beernem.
Wij zijn alle 3 lokaal sterk verankerd in deze regio omdat we er zelf wonen en werken, we kennen de streek door en door.
Daardoor zijn we ook dé ideale partner voor u als kopers, we zoeken mee naar je nieuwe woonplek of ideale investering.
Wij zijn alvast benieuwd wanneer we u mogen ontmoeten.
Elien, Jolien en Louise
TH/4804
Leer meer over vastgoed
26 October 2025
Fake huuradvertenties op Facebook
06 July 2025
Wie betaalt herstellingen aan de huurwoning?
01 July 2025
Ik wil mijn huurcontract opzeggen. Hoe doe ik dit?
20 April 2025
