Nieuw
Roeselare - centrum : Kantoorruimte van 218m² bruto op commerciële ligging
Een pand van Domicill Vastgoed
Overzicht
- 218 m² grond
Overstromingsgevaar gebouw
Overstromingsgevaar perceel
Beschrijving
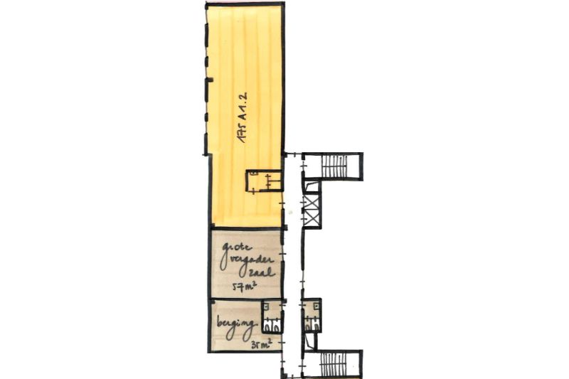
Roeselare - centrum : Kantoorruimte van 218m² bruto op commerciële ligging
Kom en ontdek het prachtige R-Plaza, een recent kantorencomplex perfect gelegen tussen Kortrijk en Brugge, pal aan afrit E403. Hier vind je een levendig geheel met een Albert Heijn, een apotheek en een winkelcentrum. De locatie is moeiteloos bereikbaar, met aparte autostaanplaatsen en een eigen ingang.
Dit veelzijdige complex, gelegen op 175A. De kantoorruimte van 218m² bruto kan gehuurd worden voor €2.092 per maand.
Je hebt de vrijheid om de ruimte naar eigen wens in te richten. Toiletten en gemeenschappelijke ruimtes zijn reeds beschikbaar. Er is een lift. De onroerende voorheffing en syndic wordt apart verrekend.
De autostaanplaatsen zijn beschikbaar voor verhuur tegen een tarief van €60 per maand.
Waar wacht je nog op? Maak deel uit van deze bruisende omgeving en creëer je ideale werkplek bij R-Plaza!
Bel ons vrijblijvend op voor een bezoek en info. Wij begeleiden u graag met de glimlach op zoek naar uw droomwoning & commercieel pand. T. 051 62 40 40.
Kom en ontdek het prachtige R-Plaza, een recent kantorencomplex perfect gelegen tussen Kortrijk en Brugge, pal aan afrit E403. Hier vind je een levendig geheel met een Albert Heijn, een apotheek en een winkelcentrum. De locatie is moeiteloos bereikbaar, met aparte autostaanplaatsen en een eigen ingang.
Dit veelzijdige complex, gelegen op 175A. De kantoorruimte van 218m² bruto kan gehuurd worden voor €2.092 per maand.
Je hebt de vrijheid om de ruimte naar eigen wens in te richten. Toiletten en gemeenschappelijke ruimtes zijn reeds beschikbaar. Er is een lift. De onroerende voorheffing en syndic wordt apart verrekend.
De autostaanplaatsen zijn beschikbaar voor verhuur tegen een tarief van €60 per maand.
Waar wacht je nog op? Maak deel uit van deze bruisende omgeving en creëer je ideale werkplek bij R-Plaza!
Bel ons vrijblijvend op voor een bezoek en info. Wij begeleiden u graag met de glimlach op zoek naar uw droomwoning & commercieel pand. T. 051 62 40 40.
Energie
- EPC Certificaat: 20240229-0030983544-NR-1
- E-peil: E0
- Beglazing: Onbekend
Op de kaart

Financieel
| Prijs | |
|---|---|
| Maandelijkse kosten | € 0 |
Bijkomende info
Gebouw
| Bouwcertificaat | Nee |
|---|---|
| Badkamers | 0 |
| Slaapkamers | 0 |
| Verdiepingen | 0 |
| Garages | 0 |
| Parkeerplaatsen | 0 |
| Toiletten | 0 |
Faciliteiten
| Septische tank | Nee |
|---|
Perceel
| Overstromingsgevoelig | Geen |
|---|---|
| P-score | D |
| G-score | D |
| Totale oppervlakte (m²) | 218 |
| Bebouwde oppervlakte (m²) | 0 |
Vergunning
| Verkavelingsvergunning | Geen beschikbaar |
|---|
Uitrusting
| Investeringspand | Nee |
|---|---|
| Parking | Nee |
| Garage | Nee |
| Lift | Ja |
| Rioolaansluiting | Ja |
| Gasaansluiting | Ja |
| Wateraansluiting | Ja |
| Elektriciteitsaansluiting | Ja |
| Internetaansluiting | Nee |
| Telefoonaansluiting | Nee |
| Zonnepanelen | Nee |
| Zonneboiler | Nee |
| Alarm | Nee |
| Videofoon | Nee |
| Grondwaterput | Nee |
Appartementsblok
| Lift | Ja |
|---|---|
| Intercom | Nee |
Een pand van
Domicill Vastgoed
Domicill Vastgoed
We zijn EEN TEAM GEDREVEN VASTGOEDMAKELAARS en bieden méér waarde in vastgoed en projecten.
We helpen kopers en verkopers aan hun warme thuis door hen volledig te ontzorgen.
Ook investeerders kunnen bij ons terecht. Voor hen komt er binnenkort een volledig platform online.
vh Koestraat 175A bus 44
Leer meer over vastgoed
05 November 2024
Bedrijfsvastgoed in transitie: ontdek de toekomst van werkplekken
16 October 2024
Opbrengsteigendom: een slim pad naar passief inkomen en vermogensgroei
09 September 2024
Tijdelijk vastgoed: flexibele oplossingen voor een dynamische markt
12 August 2024