Commerciële ruimte te huur
Een pand van Imfiro
Overzicht
- 286 m² bewoonbaar
Beschrijving
Exclusieve 286 m² kantoorruimte te huur – volledig ingericht, modern & onmiddellijk beschikbaar
Op zoek naar een representatieve kantoorruimte waar professionaliteit, comfort en uitstraling centraal staan?
Deze instapklare kantoorruimte van 286 m² biedt alles wat een moderne onderneming nodig heeft: een hedendaagse inrichting, hoogwaardige afwerking en een functionele indeling die efficiënt samenwerken stimuleert.
Dankzij de volledige inrichting en meubilering kunt u hier letterlijk morgen starten.
Geen investeringen, geen tijdverlies – enkel uw team meebrengen en beginnen.
Indeling & troeven
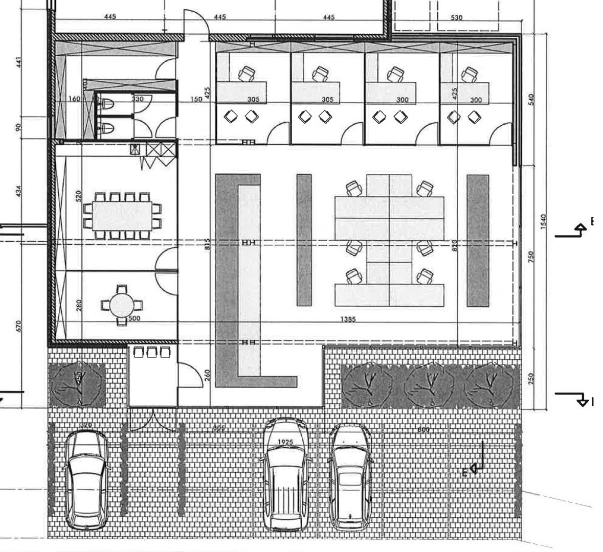
Bij binnenkomst wordt u verwelkomd in een ruime inkomhal met ontvangstbalie, ideaal om klanten en medewerkers stijlvol te ontvangen.
De kantoorruimte bestaat uit een uitgestrekt landschapskantoor, perfect voor teamwork en open communicatie.
Daarnaast zijn er meerdere vergaderzalen voor overleg, presentaties en online meetings.
Voor wie nood heeft aan privacy of focus zijn er afgesloten bureauruimtes aanwezig.
Verder beschikt het kantoor over:
Comfort & energie-efficiëntie
Het gebouw is uitgerust met warmtepompverwarming, airconditioning en energiezuinige technieken (B-label), waardoor u en uw medewerkers genieten van een optimaal binnenklimaat én lagere energiekosten.
De moderne inrichting, neutrale kleuren en kwalitatieve materialen zorgen bovendien voor een professionele uitstraling die indruk maakt op klanten en bezoekers.
Heeft u nood aan bijkomende ruimte? Er is mogelijkheid om extra stockageruimte bij te huren, wat deze locatie uiterst flexibel maakt.
Deze kantoorruimte vormt de ideale uitvalsbasis voor bedrijven die groei, efficiëntie en uitstraling belangrijk vinden.
Contacteer ons vandaag nog voor meer informatie of een bezoek, en ontdek zelf het comfort en de kwaliteit van deze unieke werkplek!
051 21 11 11 of matias@imfiro.be
Op zoek naar een representatieve kantoorruimte waar professionaliteit, comfort en uitstraling centraal staan?
Deze instapklare kantoorruimte van 286 m² biedt alles wat een moderne onderneming nodig heeft: een hedendaagse inrichting, hoogwaardige afwerking en een functionele indeling die efficiënt samenwerken stimuleert.
Dankzij de volledige inrichting en meubilering kunt u hier letterlijk morgen starten.
Geen investeringen, geen tijdverlies – enkel uw team meebrengen en beginnen.
Indeling & troeven
Bij binnenkomst wordt u verwelkomd in een ruime inkomhal met ontvangstbalie, ideaal om klanten en medewerkers stijlvol te ontvangen.
De kantoorruimte bestaat uit een uitgestrekt landschapskantoor, perfect voor teamwork en open communicatie.
Daarnaast zijn er meerdere vergaderzalen voor overleg, presentaties en online meetings.
Voor wie nood heeft aan privacy of focus zijn er afgesloten bureauruimtes aanwezig.
Verder beschikt het kantoor over:
- Een moderne keukenruimte
- Sanitair dames/heren
- Berging / serverlokaal
- Parkeerplaatsen vooraan het gebouw met laadpaal
Comfort & energie-efficiëntie
Het gebouw is uitgerust met warmtepompverwarming, airconditioning en energiezuinige technieken (B-label), waardoor u en uw medewerkers genieten van een optimaal binnenklimaat én lagere energiekosten.
De moderne inrichting, neutrale kleuren en kwalitatieve materialen zorgen bovendien voor een professionele uitstraling die indruk maakt op klanten en bezoekers.
Heeft u nood aan bijkomende ruimte? Er is mogelijkheid om extra stockageruimte bij te huren, wat deze locatie uiterst flexibel maakt.
Deze kantoorruimte vormt de ideale uitvalsbasis voor bedrijven die groei, efficiëntie en uitstraling belangrijk vinden.
Contacteer ons vandaag nog voor meer informatie of een bezoek, en ontdek zelf het comfort en de kwaliteit van deze unieke werkplek!
051 21 11 11 of matias@imfiro.be
Energie
![]() |
- EPC Certificaat: 20251112-0003724560-KNR-1
- Energieverbruik: 227 kWh/m²/jaar
- E-peil: E0
- Beglazing: Onbekend
Op de kaart

Financieel
| Prijs | |
|---|---|
| Maandelijkse kosten | € 0 |
Bijkomende info
Gebouw
| Staat | Goed onderhouden |
|---|---|
| Bewoonbaar (m²) | 286 |
| Badkamers | 0 |
| Slaapkamers | 0 |
| Verdiepingen | 0 |
| Garages | 0 |
| Parkeerplaatsen | 0 |
| Toiletten | 0 |
Faciliteiten
| Septische tank | Nee |
|---|
Perceel
| Overstromingsgevoelig | Geen |
|---|---|
| P-score | A |
| G-score | A |
| Bebouwde oppervlakte (m²) | 0 |
Vergunning
| Verkavelingsvergunning | Geen beschikbaar |
|---|
Uitrusting
| Investeringspand | Nee |
|---|---|
| Parking | Nee |
| Garage | Nee |
| Lift | Nee |
| Rioolaansluiting | Nee |
| Gasaansluiting | Nee |
| Wateraansluiting | Nee |
| Elektriciteitsaansluiting | Nee |
| Internetaansluiting | Nee |
| Telefoonaansluiting | Nee |
| Zonnepanelen | Nee |
| Zonneboiler | Nee |
| Alarm | Nee |
| Videofoon | Nee |
| Grondwaterput | Nee |
Appartementsblok
| Lift | Nee |
|---|---|
| Intercom | Nee |
Een pand van
Imfiro
Imfiro
Uw makelaar voor nieuwbouw en bestaand vastgoed
TH
Leer meer over vastgoed
04 January 2026
Zoek je een kantoor, een magazijn of… iets ertussenin? Bedrijfsvastgoed uitgelegd
05 November 2024
Bedrijfsvastgoed in transitie: ontdek de toekomst van werkplekken
16 October 2024
Opbrengsteigendom: een slim pad naar passief inkomen en vermogensgroei
09 September 2024
