Nieuw
Nieuwbouw appartement met ruim dakterras te Gent
Een pand van Fluo
Overzicht
- 82 m² bewoonbaar
- 107 m² grond
- 2 Slaapkamer(s)
- 1 Badkamer(s)
- 1 Toilet(ten)
Beschrijving
Instapklaar appartement te huur gelegen langs de Scheepvaartstraat 13 te Gent zonder syndicuskosten.
Dit appartement beschikt over alle hedendaagse comfort en is bovendien bijzonder lichtrijk!
Het is uitstekend gelegen in Gent, dichtbij Dok Noord, met een vlotte verbinding naar het centrum en de belangrijkste invalswegen.
Ideaal voor wie rustig wil wonen met de stad binnen handbereik.
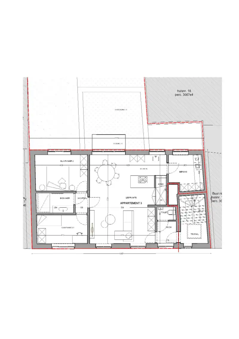
Het appartement heeft een bewoonbare oppervlakte van 82 m² en beschikt over een ruim dakterras van 25m² waar je de hele dag van de zon kan genieten.
Het appartement bestaat uit een ruime en lichtrijke leefruimte met open keuken. De keuken is volledig geïnstalleerd met o.a. oven, frigo en vaatwasser. Verder is er nog een ruime (was)berging. Er zijn twee volwaardige slaapkamers, een badkamer en een apart toilet.
In de huurprijs zit reeds een privé garagebox inbegrepen, daarnaast is er ook een gemeenschappelijke fietsenberging. Er zijn geen syndicuskosten.
Nog enkele pluspunten van dit appartement:
🚗 PRIVÉ GARAGEBOX EN FIETSENBERGING INBEGREPEN
💸 GEEN SYNDICUSKOSTEN
✨ ENERGIEZUINIG: ZONNEPANELEN
⚪ VOLLEDIG GESCHILDERD
🛋️ INCL. LICHTARMATUREN EN LAMELLEN
☀️ ZUIDGERICHTE TERRASSEN EN TUIN
🍀 RUSTIG GELEGEN
Leuke extra! Je kan gebruik maken van een promotie bij Telenet of Proximus.
Bij de leverancier naar keuze krijg je 6 maanden gratis internet/TV/telefonie.
Huurprijs € 1.300 per maand.
Het appartement is beschikbaar vanaf 15 mei.
Vraag nu uw bezoek aan via MijnHuurprofiel.
DOMICILIE VERPLICHT
Dit appartement beschikt over alle hedendaagse comfort en is bovendien bijzonder lichtrijk!
Het is uitstekend gelegen in Gent, dichtbij Dok Noord, met een vlotte verbinding naar het centrum en de belangrijkste invalswegen.
Ideaal voor wie rustig wil wonen met de stad binnen handbereik.
Het appartement heeft een bewoonbare oppervlakte van 82 m² en beschikt over een ruim dakterras van 25m² waar je de hele dag van de zon kan genieten.
Het appartement bestaat uit een ruime en lichtrijke leefruimte met open keuken. De keuken is volledig geïnstalleerd met o.a. oven, frigo en vaatwasser. Verder is er nog een ruime (was)berging. Er zijn twee volwaardige slaapkamers, een badkamer en een apart toilet.
In de huurprijs zit reeds een privé garagebox inbegrepen, daarnaast is er ook een gemeenschappelijke fietsenberging. Er zijn geen syndicuskosten.
Nog enkele pluspunten van dit appartement:
🚗 PRIVÉ GARAGEBOX EN FIETSENBERGING INBEGREPEN
💸 GEEN SYNDICUSKOSTEN
✨ ENERGIEZUINIG: ZONNEPANELEN
⚪ VOLLEDIG GESCHILDERD
🛋️ INCL. LICHTARMATUREN EN LAMELLEN
☀️ ZUIDGERICHTE TERRASSEN EN TUIN
🍀 RUSTIG GELEGEN
Leuke extra! Je kan gebruik maken van een promotie bij Telenet of Proximus.
Bij de leverancier naar keuze krijg je 6 maanden gratis internet/TV/telefonie.
Huurprijs € 1.300 per maand.
Het appartement is beschikbaar vanaf 15 mei.
Vraag nu uw bezoek aan via MijnHuurprofiel.
DOMICILIE VERPLICHT
Energie
![]() |
- E-peil: E20
- Verwarming: Gas
- Beglazing: Standaard dubbel
Zelfcheck
Op de kaart

Financieel
| Prijs | |
|---|---|
| Maandelijkse kosten | € 0 |
Bijkomende info
Gebouw
| Bouwjaar | 2026 |
|---|---|
| Staat | Nieuw |
| Bewoonbaar (m²) | 82 |
| Verdieping | 2 |
| Gevelbreedte | 10 |
| Badkamers | 1 |
| Slaapkamers | 2 |
| Verdiepingen | 3 |
| Garages | 0 |
| Parkeerplaatsen | 0 |
| Toiletten | 1 |
Faciliteiten
| Keuken uitrusting | Goed uitgerust |
|---|---|
| Beglazing | Standaard dubbel |
| Brandstof primaire verwarming | Gas |
| Septische tank | Nee |
Perceel
| Totale oppervlakte (m²) | 107 |
|---|---|
| Bebouwde oppervlakte (m²) | 0 |
| Oppervlakte terras (m²) | 25 |
| Oriëntatie tuin | Zuid |
Vergunning
| Verkavelingsvergunning | Geen beschikbaar |
|---|
Uitrusting
| Investeringspand | Nee |
|---|---|
| Parking | Nee |
| Garage | Nee |
| Opslagruimte | Ja |
| Terras | Ja |
| Lift | Nee |
| Rioolaansluiting | Ja |
| Gasaansluiting | Ja |
| Wateraansluiting | Ja |
| Elektriciteitsaansluiting | Ja |
| Internetaansluiting | Ja |
| Telefoonaansluiting | Ja |
| Zonnepanelen | Ja |
| Zonneboiler | Nee |
| Alarm | Nee |
| Videofoon | Ja |
| Grondwaterput | Nee |
Appartementsblok
| Aantal verdiepingen | 3 |
|---|---|
| Lift | Nee |
| Intercom | Ja |
Een pand van
Fluo
Expertise met een persoonlijke aanpak
Welkom bij Fluo, waar we geloven dat vastgoedtransacties meer zijn dan alleen een zakelijke overeenkomst. Of je nu voor het eerst een woning (ver)koopt, (ver)huurt of je vastgoedportefeuille wil uitbreiden, wij begeleiden je bij elke stap. Vanaf het eerste contact tot aan het ondertekenen van de akte of huurovereenkomst. We nemen de tijd om naar je te luisteren en geven duidelijk advies. In alle transparantie, eerlijkheid en discretie. We denken samen met jou vooruit om het maximale resultaat te behalen.
9000_GNT_SCHEEPVAARTSTRAAT13B_TH
Leer meer over vastgoed
26 October 2025
Fake huuradvertenties op Facebook
06 July 2025
Wie betaalt herstellingen aan de huurwoning?
01 July 2025
Ik wil mijn huurcontract opzeggen. Hoe doe ik dit?
20 April 2025
