Nieuw
Handelspand te huur
€ 2.200
Een pand van Oranjeberg Vastgoed
Overzicht
- 99 m² grond
- 1 Toilet(ten)
Beschrijving
Het pand biedt uitstekende mogelijkheden voor verschillende commerciële activiteiten, met uitzondering van horeca. Met zijn grote raampartijen beschikt het pand over veel natuurlijk licht en biedt het uitstekende zichtbaarheid voor voorbijgangers.
Het pand is uitermate goed bereikbaar via de Dampoort, vlakbij Portus ganda, Sint-Jacobs en Baudelopark. Gelegen in een bloeiende buurt met tal van andere winkels, profiteert het pand van een constante stroom van passanten, wat bijdraagt aan een dynamische en levendige winkelomgeving.
Kortom, dit handelspand biedt een flexibele en aantrekkelijke ruimte voor ondernemers die zich willen vestigen in een goed bereikbare en populaire straat.
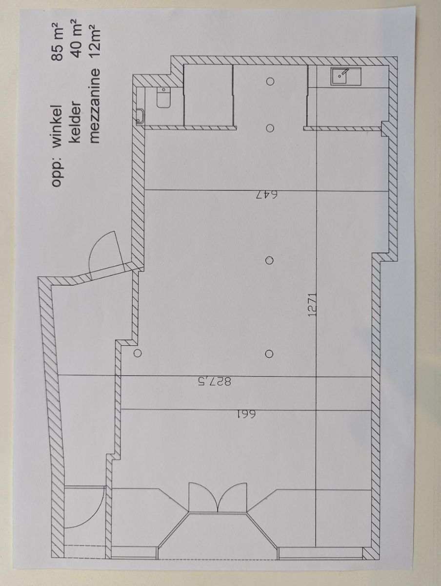
Oppervlakte winkel 85 m² + kelder 40m² + mezzanine 12m²
Beschikbaar vanaf 15 november 2025. OV is ten lasten van de huurder.
voor info of bezoek, aarzel niet om contact op te nemen via info@oranjeberg.be
Het pand is uitermate goed bereikbaar via de Dampoort, vlakbij Portus ganda, Sint-Jacobs en Baudelopark. Gelegen in een bloeiende buurt met tal van andere winkels, profiteert het pand van een constante stroom van passanten, wat bijdraagt aan een dynamische en levendige winkelomgeving.
Kortom, dit handelspand biedt een flexibele en aantrekkelijke ruimte voor ondernemers die zich willen vestigen in een goed bereikbare en populaire straat.
Oppervlakte winkel 85 m² + kelder 40m² + mezzanine 12m²
Beschikbaar vanaf 15 november 2025. OV is ten lasten van de huurder.
voor info of bezoek, aarzel niet om contact op te nemen via info@oranjeberg.be
Energie
![]() |
- EPC Certificaat: 20251013-0002949885-KNR-4
- E-peil: E0
- Beglazing: Onbekend
Op de kaart

Financieel
| Prijs | |
|---|---|
| Maandelijkse kosten | € 0 |
Bijkomende info
Gebouw
| Verdieping | 0 |
|---|---|
| Badkamers | 0 |
| Slaapkamers | 0 |
| Verdiepingen | 0 |
| Garages | 0 |
| Parkeerplaatsen | 0 |
| Toiletten | 1 |
Faciliteiten
| Septische tank | Nee |
|---|
Perceel
| Totale oppervlakte (m²) | 99 |
|---|---|
| Bebouwde oppervlakte (m²) | 0 |
Vergunning
| Verkavelingsvergunning | Geen beschikbaar |
|---|
Uitrusting
| Investeringspand | Nee |
|---|---|
| Parking | Nee |
| Garage | Nee |
| Kelder | Ja |
| Opslagruimte | Ja |
| Lift | Nee |
| Rioolaansluiting | Nee |
| Gasaansluiting | Nee |
| Wateraansluiting | Nee |
| Elektriciteitsaansluiting | Nee |
| Internetaansluiting | Nee |
| Telefoonaansluiting | Nee |
| Zonnepanelen | Nee |
| Zonneboiler | Nee |
| Alarm | Nee |
| Videofoon | Nee |
| Grondwaterput | Nee |
Appartementsblok
| Lift | Nee |
|---|---|
| Intercom | Nee |
Een pand van
Oranjeberg Vastgoed
Oranjeberg - Top in Vastgoed
Uitzonderlijke ervaring gekoppeld aan grote deskundigheid en persoonlijke service: makelaarskantoor Oranjeberg is een echt huis van vertrouwen!
Steendam 110 (TH 2025)
Leer meer over vastgoed
05 November 2024
Bedrijfsvastgoed in transitie: ontdek de toekomst van werkplekken
16 October 2024
Opbrengsteigendom: een slim pad naar passief inkomen en vermogensgroei
09 September 2024
Tijdelijk vastgoed: flexibele oplossingen voor een dynamische markt
12 August 2024
