2 nieuwbouw logistieke units met kantoor
€ 102.521,66
Een pand van CEUSTERS
Overzicht
- 20152 m² bewoonbaar
Beschrijving
Locatie: WLP XVIII bevindt zich in de stad Gent, in de provincie Oost-Vlaanderen. Deze locatie is strategisch gelegen naast het Kanaal Gent-Terneuzen en vlakbij de R4-ring rond Gent, wat zorgt voor een uitstekende bereikbaarheid zowel over de weg als over water.
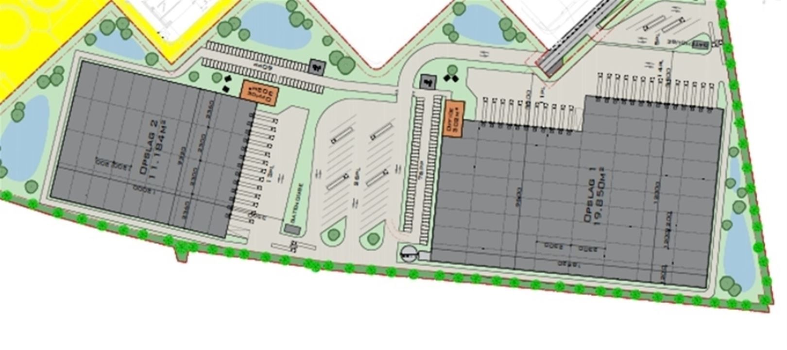
Ontwikkelingsmogelijkheden: Op de site kunnen twee gebouwen worden ontwikkeld, met een totale oppervlakte van 30.000 m² aan magazijnruimte. De centrale ligging biedt snelle verbindingen naar steden zoals Terneuzen, Kortrijk, Zeebrugge en Brussel, allemaal bereikbaar binnen 40 minuten.
Bereikbaarheid:
- Wegvervoer: Directe toegang via de R4-ring rond Gent.
- Watertransport: Toegang tot het Kanaal Gent-Terneuzen, ideaal voor bedrijven actief in de haven van Gent.
Duurzaamheid: Het project streeft naar een BREEAM Excellent certificering, wat het zal positioneren als een van de meest duurzame gebouwen in België. De site zal onder andere voorzien zijn van:
- Zonnepanelen
- Laadstations voor elektrische voertuigen
- Warmtepompen
- Waterrecuperatiesystemen
- Slimme LED-verlichting
Beschikbare Units:
- Hal 1: 19.850 m² + kantoorruimte
- Hal 2: ± 3.000 m² + kantoorruimte (flexibele oppervlaktes, uitbreidbaar of verkleinbaar)
- deze ruimte is ook voorzien van verwarming
Technische Specificaties:
- Vrije hoogte: 13,5m
- Elektrische sectionale poorten
- Laad-en loskades
- Vloerbelasting: 6T/m²
- Kolomraster: 23m x 12m
- Branddeuren, brandhaspels, rookmelders, pictogrammen
- Hoogspanningscabine
- Inbraakalarm
- Sprinklers
- Zonnepanelen
- Laad- en loskades
- Parkeerplaatsen
Oplevering:
- September 2025 (unit 1)
- Q3 2026 (Unit 2)
Energie
- E-peil: E0
- Beglazing: Onbekend
Op de kaart

Financieel
| Prijs | |
|---|---|
| Maandelijkse kosten | € 0 |
| Kadastraal inkomen (niet geïndexeerd) | € 0 |
| Kadastraal inkomen (geïndexeerd) | € 0 |
Bijkomende info
Gebouw
| Bouwcertificaat | Nee |
|---|---|
| Bewoonbaar (m²) | 20152 |
| Verdieping | 0 |
| Badkamers | 0 |
| Slaapkamers | 0 |
| Verdiepingen | 0 |
| Garages | 0 |
| Parkeerplaatsen | 0 |
| Doucheruimtes | 0 |
| Toiletten | 0 |
Faciliteiten
| Elektrisch keuringsattest | Nee |
|---|
Perceel
| Overstromingsgevoelig | Geen |
|---|---|
| Voorkeurrecht | Nee |
| Bebouwde oppervlakte (m²) | 0 |
| Tuin oppervlakte (m²) | 0 |
| Oppervlakte terras (m²) | 0 |
Vergunning
| Vergunning | Vergunning beschikbaar |
|---|---|
| Verkavelingsvergunning | Geen beschikbaar |
Uitrusting
| Investeringspand | Nee |
|---|---|
| Geschikt voor praktijk | Nee |
| Parking | Nee |
| Garage | Nee |
| Thuiskantoor | Nee |
| Kelder | Nee |
| Zolder | Nee |
| Tuin | Nee |
| Terras | Nee |
| Lift | Nee |
| Rioolaansluiting | Ja |
| Gasaansluiting | Ja |
| Wateraansluiting | Ja |
| Elektriciteitsaansluiting | Ja |
| TV aansluiting | Ja |
| Internetaansluiting | Ja |
| Telefoonaansluiting | Ja |
Appartementsblok
| Naam residentie | PANTSERSCHIPSTRAAT GENT |
|---|---|
| Lift | Nee |