Moderne kantoren aan Station Gent Dampoort
Een pand van CEUSTERS
Overzicht
- 257 m² bewoonbaar
Beschrijving
Instapklare gemeubelde kantoren te huur vlakbij station Dampoort.
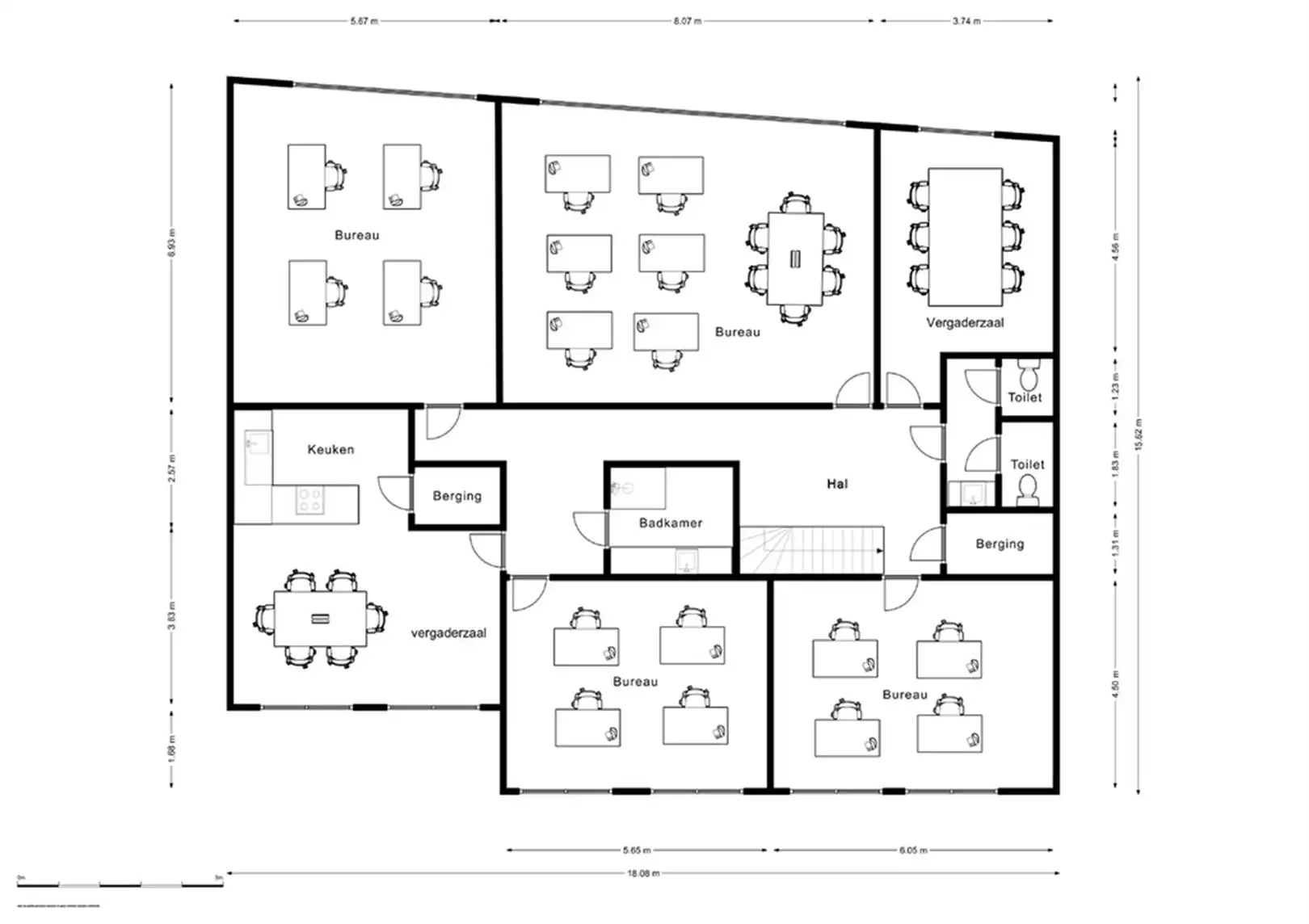
Heel het gebouw wordt verhuurd, in totaal zo'n 257m² aan moderne kantoren met veel lichtinval.
Het is opgedeeld in 2 aparte kantoren van 26m² en 24m², 1 grote open space van 90m², een aparte meetingroom en een ruime keuken met bijhorende eetruimte/meetingroom. Daarnaast is er een moderne badkamer en apart sanitair voor M/V.
Er is een terras aan de keuken én een ruim dakterras.
De ruimten zijn bemeubeld, deze meubels mogen blijven staan en zijn inbegrepen in de prijs.
Openbaar vervoer vlakbij met bus- en treinverbindingen Gent-Dampoort.
Er is ook de mogelijkheid tot het bij huren van parkeerplaatsen aan 115 EUR/maand incl. btw en kosten of garage boxen aan 130EUR/maand incl. BTW en kosten.
EPC-Label: C.
Kosten:
-Geen gemeenschappelijk kosten van toepassing aangezien het gebouw verhuurd wordt als geheel.
-Afrekening voor gas bedroeg voor januari 2025 389,26 EUR excl.BTW.
-Afrekening voor Elektriciteit bedroeg voor januari 2025 283,73EUR excl.BTW.
-Onroerende voorheffing bedroeg 3.268,87 EUR voor aanslagjaar 2024.
Energie
![]() |
- EPC Certificaat: 2624716-KNR-1
- E-peil: E0
- Beglazing: Onbekend
Op de kaart

Financieel
| Prijs | |
|---|---|
| Maandelijkse kosten | € 0 |
| Kadastraal inkomen (niet geïndexeerd) | € 0 |
| Kadastraal inkomen (geïndexeerd) | € 0 |
Bijkomende info
Gebouw
| Bouwcertificaat | Nee |
|---|---|
| Bewoonbaar (m²) | 257 |
| Verdieping | 0 |
| Badkamers | 0 |
| Slaapkamers | 0 |
| Verdiepingen | 0 |
| Garages | 0 |
| Parkeerplaatsen | 0 |
| Doucheruimtes | 0 |
| Toiletten | 0 |
Faciliteiten
| Elektrisch keuringsattest | Ja |
|---|
Perceel
| Overstromingsgevoelig | Geen |
|---|---|
| P-score | A |
| G-score | A |
| Voorkeurrecht | Nee |
| Bebouwde oppervlakte (m²) | 0 |
| Tuin oppervlakte (m²) | 0 |
| Oppervlakte terras (m²) | 0 |
Vergunning
| Vergunning | Vergunning beschikbaar |
|---|---|
| Verkavelingsvergunning | Geen beschikbaar |
Uitrusting
| Investeringspand | Nee |
|---|---|
| Geschikt voor praktijk | Nee |
| Parking | Nee |
| Garage | Nee |
| Thuiskantoor | Nee |
| Kelder | Nee |
| Zolder | Nee |
| Tuin | Nee |
| Terras | Nee |
| Lift | Nee |
| Rioolaansluiting | Ja |
| Gasaansluiting | Ja |
| Wateraansluiting | Ja |
| Elektriciteitsaansluiting | Ja |
| TV aansluiting | Ja |
| Internetaansluiting | Ja |
| Telefoonaansluiting | Ja |
Appartementsblok
| Naam residentie | DENDERMONDSESTEENWEG 40 GENT |
|---|---|
| Lift | Nee |
