THE OFFICE: kantoren nabij Klaverblad (E17/E40)
Prijs op aanvraag
Een pand van CEUSTERS
Jouw zoektocht
Overzicht
- 456 m² bewoonbaar
Overstromingsgevaar perceel
Beschrijving
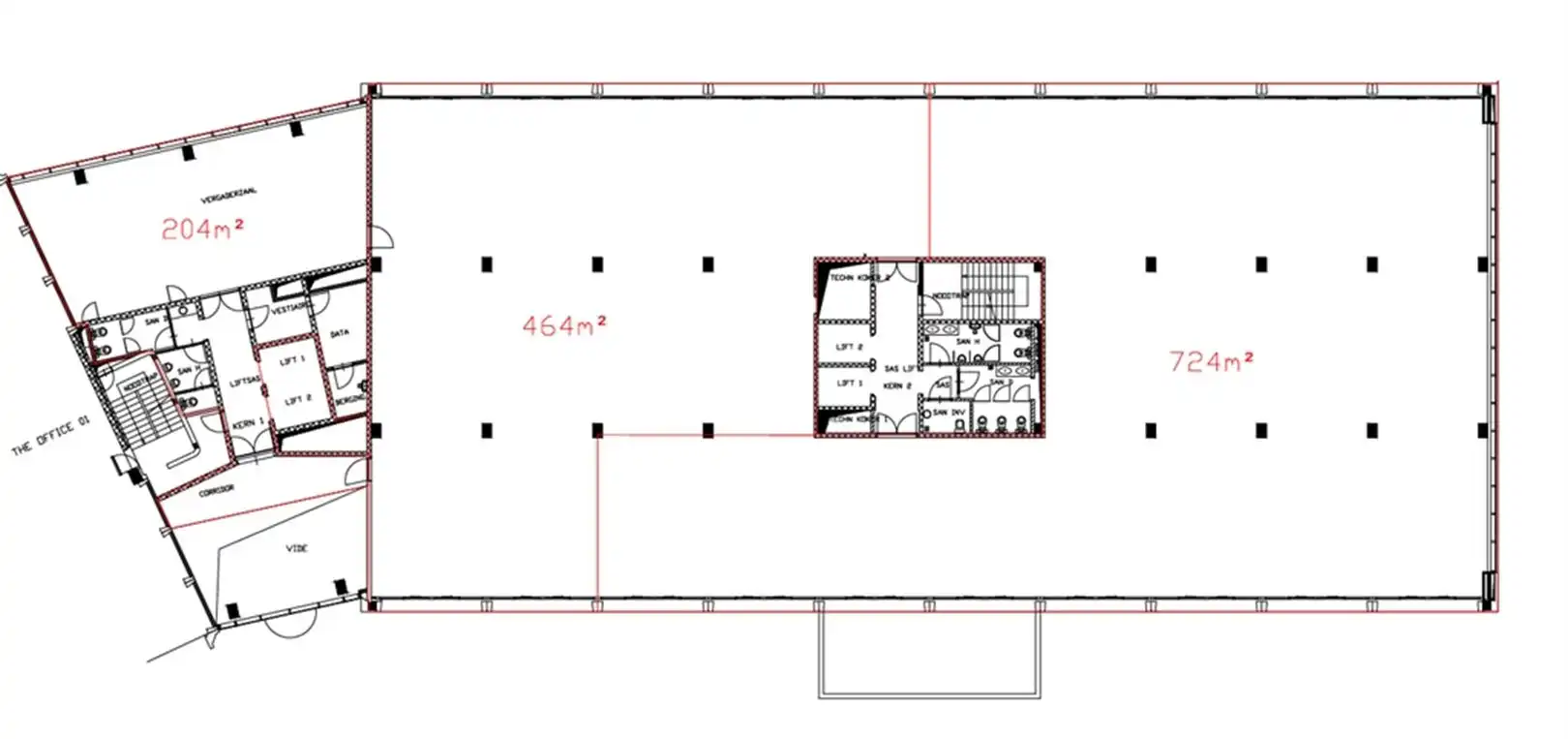
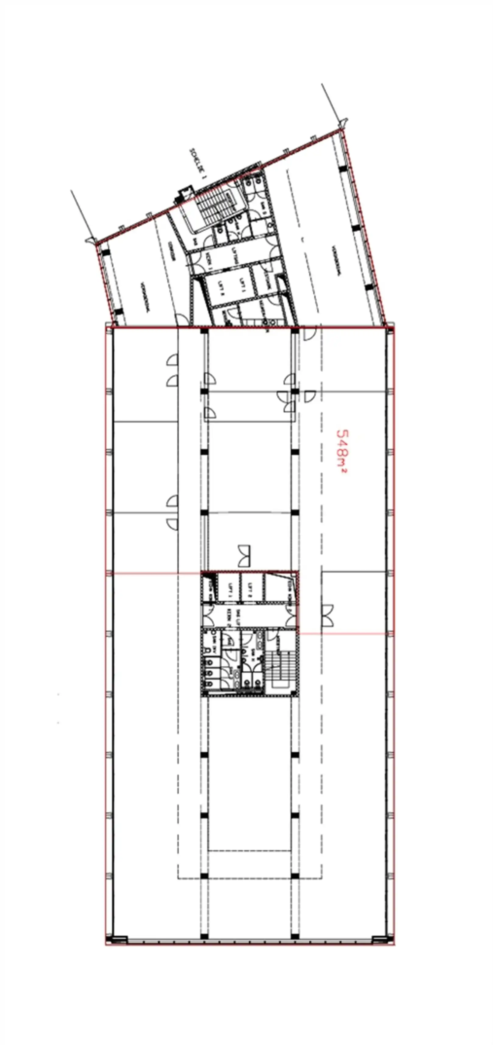
Het kantorencomplex bestaat uit 3 aanpalende gebouwen en is zeer rustig gelegen aan de oevers van de Schelde.
De gebouwen werden recent opgefrist met een strakke moderne look en beschikken over veel natuurlijk daglicht.
Zeer gunstige parkeerratio van 1/35m².
Parkeerplaatsen zijn beschikbaar zowel ondergronds (1.800€/pp/jr) op 2 niveaus, als bovengronds (1.000€/pp/jr),
Mogelijkheid tot huren van berging aan 65 €/m²/jaar. Er is tevens een gemeenschappelijke fietsenstalling voorzien en een fietsenstalling voor bezoekers.
De gemeenschappelijke kosten (18€/m²/jr) omvatten o.a;
- Conciërge
- Schoonmaak gemeenschappelijke delen
- Reiniging van de ramen (buiten)
- Perifere inbraakbeveiliging op niveau gelijk vloer
- Onderhoud wegenis, parking en groene zones
- Omniumonderhoudscontract liften
- Omniumonderhoudscontract HVAC-installatie
- Ruimen van aalputten
- Afvalverwerking
- Verbruik gemeenschappelijke delen elektriciteit, verwarming en water
- Verzekering gebouw
- Beheerskosten
- Huur brandblusapparaten in gemeenschappelijke delen
- Nazicht en onderhoud brandpreventiemateriaal
- Wettelijke periodieke controles technische installaties
Privatieve kosten (12€/m²/jr) omvatten:
- Elektriciteitsverbruik kantoren (gemeten via tussentellers)
- Elektriciteitsverbruik privatieve koeling (gemeten op basis van calorimeters)
- Gasverbruik privatieve verwarming (verdeling op basis van quotiteiten)
- Waterverbruik kantoren en sanitair (verdeling op basis van quotiteiten)
Het stadscentrum is op wandelafstand, openbaar vervoer vlakbij (Gent Sint-Pietersstation)
Het gebouw is heel goed gelegen vlakbij autosnelwegen E17/E40 en R4.
Energie
![]() |
- EPC Certificaat: 0020177523-NR-1
- E-peil: E0
- Beglazing: Onbekend
Op de kaart

Financieel
| Maandelijkse kosten | € 0 |
|---|---|
| Kadastraal inkomen (niet geïndexeerd) | € 0 |
| Kadastraal inkomen (geïndexeerd) | € 0 |
Bijkomende info
Gebouw
| Bouwcertificaat | Nee |
|---|---|
| Bewoonbaar (m²) | 456 |
| Verdieping | 0 |
| Badkamers | 0 |
| Slaapkamers | 0 |
| Verdiepingen | 0 |
| Garages | 0 |
| Parkeerplaatsen | 0 |
| Doucheruimtes | 0 |
| Toiletten | 0 |
Faciliteiten
| Elektrisch keuringsattest | Ja |
|---|
Perceel
| Overstromingsgevoelig | Geen |
|---|---|
| P-score | D |
| G-score | A |
| Voorkeurrecht | Nee |
| Bebouwde oppervlakte (m²) | 0 |
| Tuin oppervlakte (m²) | 0 |
| Oppervlakte terras (m²) | 0 |
Vergunning
| Vergunning | Vergunning beschikbaar |
|---|---|
| Verkavelingsvergunning | Geen beschikbaar |
Uitrusting
| Investeringspand | Nee |
|---|---|
| Geschikt voor praktijk | Nee |
| Parking | Nee |
| Garage | Nee |
| Thuiskantoor | Nee |
| Kelder | Nee |
| Zolder | Nee |
| Tuin | Nee |
| Terras | Nee |
| Lift | Nee |
| Rioolaansluiting | Ja |
| Gasaansluiting | Ja |
| Wateraansluiting | Ja |
| Elektriciteitsaansluiting | Ja |
| TV aansluiting | Ja |
| Internetaansluiting | Ja |
| Telefoonaansluiting | Ja |
Appartementsblok
| Naam residentie | MOUTSTRAAT 52 - 80 - THE OFFICE |
|---|---|
| Lift | Nee |
