Nieuw Virtual tour
Energiezuinige kantoren in kantoorproject Blue Towers te Gent
€ 5.323 (+€ 989)
Een pand van CD-Vastgoed bv
Favoriet
Jouw zoektocht
Jouw scoretabel voor dit pand
Aan het laden...
Jouw geplande bezichtigingen
Aan het laden...
Overzicht
- 365 m² grond
- 6 Toilet(ten)
Beschrijving
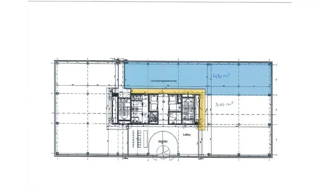
365m² high-end kantoren op gelijkvloers van Schelde offices
Ligging: uitstekend gelegen langs R4 (uitrit UZ) en vlakbij afrit klaverblad (E17xE40) en shuttledienst naar St. Pietersstation en Gent-centrum
Specificaties: glasgevel, aluminium schrijnwerk met extra isolerende beglazing, deels landscape, deels ingedeelde kantoren, geperforeerde koelplafonds, inbouw tl-verlichting, verhoogde vloeren met tapijttegels, sanitair en keuken per verdieping, BREEAM excellent, liften, mogelijkheid tot ondergrondse parkeerplaatsen
EPC-label X
Meer info of een bezoek inplannen? Contacteer Quinten 09/243 41 80
Bekijk virtual tour: https://walkly.app/-Vcvw7b
Ligging: uitstekend gelegen langs R4 (uitrit UZ) en vlakbij afrit klaverblad (E17xE40) en shuttledienst naar St. Pietersstation en Gent-centrum
Specificaties: glasgevel, aluminium schrijnwerk met extra isolerende beglazing, deels landscape, deels ingedeelde kantoren, geperforeerde koelplafonds, inbouw tl-verlichting, verhoogde vloeren met tapijttegels, sanitair en keuken per verdieping, BREEAM excellent, liften, mogelijkheid tot ondergrondse parkeerplaatsen
EPC-label X
Meer info of een bezoek inplannen? Contacteer Quinten 09/243 41 80
Bekijk virtual tour: https://walkly.app/-Vcvw7b
Energie
- EPC Certificaat: 19294380-NR-1
- Verwarming: Elektriciteit
- Beglazing: Standaard dubbel
Op de kaart

Virtual tour
Ontdek het hele pand alvorens je bezoek via de virtuele tour, werkelijkheid gemaakt door Walkly. Geen verassingen tijdens het bezoek!
Beleef de virtuele tourFinancieel
| Prijs | |
|---|---|
| Maandelijkse kosten | € 989 |
Bijkomende info
Gebouw
| Bouwjaar | 2014 |
|---|---|
| Staat | Goed onderhouden |
| Is beschermd | Nee |
| Verdieping | 0 |
| Verdiepingen | 11 |
| Toiletten | 6 |
Faciliteiten
| Materiaal ramenomlijstingen | Aluminium |
|---|---|
| Beglazing | Standaard dubbel |
| Luiken | Nee |
| Primaire verwarmingsbron | Bodemwater warmtepomp (geothermisch) |
| Brandstof primaire verwarming | Elektriciteit |
| Warm water type | Geen verwarming |
Perceel
| Overstromingsgevoelig | Mogelijk overstromingsgevoelig |
|---|---|
| P-score | A |
| G-score | A |
| Totale oppervlakte (m²) | 365 |
| Bebouwde oppervlakte (m²) | 365 |
Vergunning
| Vergunning | Vergunning beschikbaar |
|---|
Uitrusting
| Meerdere eigenaars | Nee |
|---|---|
| Geschikt als kangoeroewoning | Nee |
| Geschikt voor rolstoelgebruikers | Nee |
| Geschikt voor praktijk | Ja |
| Volledig onderkelderd | Nee |
| Parking | Nee |
| Garage | Nee |
| Thuiskantoor | Ja |
| Kelder | Nee |
| Zolder | Nee |
| Opslagruimte | Nee |
| Tuin | Nee |
| Terras | Nee |
| Lift | Ja |
| Rioolaansluiting | Ja |
| Gasaansluiting | Ja |
| Wateraansluiting | Ja |
| Elektriciteitsaansluiting | Ja |
| TV aansluiting | Nee |
| Internetaansluiting | Ja |
| Zonnepanelen | Ja |
| Zonneboiler | Nee |
| Alarm | Ja |
| Zwembad | Nee |
| Jacuzzi | Nee |
| Toonzaal | Nee |
| Ventilatie | Ja |
Appartementsblok
| Naam residentie | Blue Towers - Schelde |
|---|---|
| Aantal verdiepingen | 11 |
| Lift | Ja |
| Intercom | Nee |
Een pand van
CD-Vastgoed bv
Bedrijfsvastgoed voor de ondernemer en investeerder in Antwerpen en Oost-Vlaanderen
Kantoren, magazijnen, winkels, bouwgronden: CD-Vastgoed richt zich uitsluitend op het verkopen en verhuren van bedrijfsvastgoed. We weten waar kmo’s naar op zoek zijn. In elke fase van uw groei zorgen we ervoor dat het vinden van het geschikte vastgoed alvast één zorg minder is.
K-0013
Leer meer over vastgoed
04 January 2026
Zoek je een kantoor, een magazijn of… iets ertussenin? Bedrijfsvastgoed uitgelegd
05 November 2024
Bedrijfsvastgoed in transitie: ontdek de toekomst van werkplekken
16 October 2024
Opbrengsteigendom: een slim pad naar passief inkomen en vermogensgroei
09 September 2024