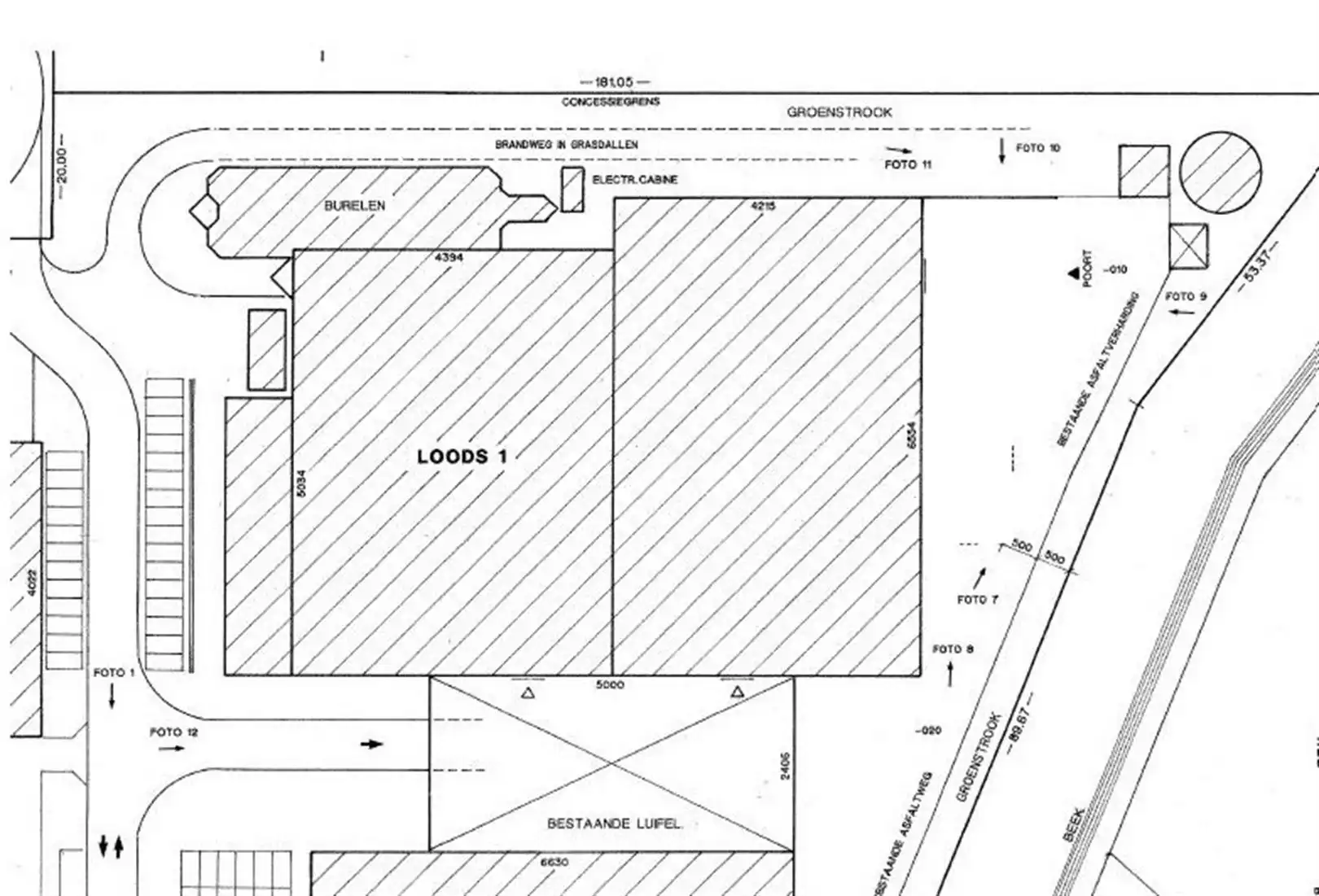
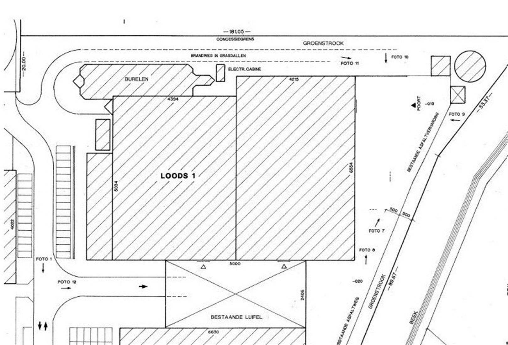
Magazijn met laad- en loskades en kantoren nabij R4
€ 36.000
Een pand van CEUSTERS
Favoriet
Jouw zoektocht
Jouw scoretabel voor dit pand
Aan het laden...
Jouw geplande bezichtigingen
Aan het laden...
Overzicht
- 7782 m² bewoonbaar
Overstromingsgevaar gebouw
Overstromingsgevaar perceel
Beschrijving
Specificaties magazijn:
- Beton & staalconstructie
- Betonvloer
- Lichtstraten
- Luchtventilatoren in magazijn
- Vrije hoogte: 6,1 m à 7.5 m
- LED-verlichting
- Automatische sectionale poorten: 3
- Laad- en loskades: 2
- Ruimtes die geschikt zijn voor voeding/koeling
- Buitenstockage achteraan
- Hoogspanningskabine met 1.25 MW
- Sprinkleristallatie
- Brandcentrale
- Persluchtinstallatie
Specificaties kantoren:
- Brandveiligheid: sensoren, brandhaspels, nooddeuren, noodverlichting
- Tegelvloer
- Verplaatsbare wanden
- Tl lampen en lichtkoepels
- Verwarming via radiatoren en HVAC
- Databekabeling
- Kleedkamers
- Sanitair
- Zonnewering buiten
- Refter
- Keuken
- Buitenparkeerplaatsen
De prijzen zijn inclusief parkeerplaaten en gemeenschappelijke lasten.
Plan uw bezoek voor meer informatie.
Energie
- E-peil: E0
- Beglazing: Onbekend
Op de kaart

Financieel
| Prijs | |
|---|---|
| Maandelijkse kosten | € 0 |
| Kadastraal inkomen (niet geïndexeerd) | € 0 |
| Kadastraal inkomen (geïndexeerd) | € 0 |
Bijkomende info
Gebouw
| Bouwcertificaat | Nee |
|---|---|
| Bewoonbaar (m²) | 7782 |
| Verdieping | 0 |
| Badkamers | 0 |
| Slaapkamers | 0 |
| Verdiepingen | 0 |
| Garages | 0 |
| Parkeerplaatsen | 0 |
| Doucheruimtes | 0 |
| Toiletten | 0 |
Faciliteiten
| Elektrisch keuringsattest | Nee |
|---|
Perceel
| Overstromingsgevoelig | Geen |
|---|---|
| P-score | D |
| G-score | D |
| Voorkeurrecht | Nee |
| Bebouwde oppervlakte (m²) | 0 |
| Tuin oppervlakte (m²) | 0 |
| Oppervlakte terras (m²) | 0 |
Vergunning
| Vergunning | Vergunning beschikbaar |
|---|---|
| Verkavelingsvergunning | Geen beschikbaar |
Uitrusting
| Investeringspand | Nee |
|---|---|
| Geschikt voor praktijk | Nee |
| Parking | Nee |
| Garage | Nee |
| Thuiskantoor | Nee |
| Kelder | Nee |
| Zolder | Nee |
| Tuin | Nee |
| Terras | Nee |
| Lift | Nee |
| Rioolaansluiting | Ja |
| Gasaansluiting | Nee |
| Wateraansluiting | Ja |
| Elektriciteitsaansluiting | Ja |
| TV aansluiting | Ja |
| Internetaansluiting | Ja |
| Telefoonaansluiting | Ja |
Appartementsblok
| Naam residentie | EDDASTRAAT 40 DESTELDONK |
|---|---|
| Lift | Nee |
Een pand van
CEUSTERS
CEUSTERS
Onze experts in property management en vastgoedadvies stellen een kwalitatieve dienstverlening voorop. Creatief en flexibel gaat ons team op zoek naar kansen en oplossingen voor elke klant. Telkens een stapje verder. Naast onze kantoren in Antwerpen, Gent, Brussel, Hasselt en Rotterdam (Nederland), opereert CEUSTERS vanuit zes andere vestigingen verspreid over heel België. In deze snel veranderende wereld staat ons sterk inzicht in de lokale markt garant voor continuïteit.
EDDASTRAAT 40 DESTELDONK SIDAPLEX
Leer meer over vastgoed
04 January 2026
Zoek je een kantoor, een magazijn of… iets ertussenin? Bedrijfsvastgoed uitgelegd
05 November 2024
Bedrijfsvastgoed in transitie: ontdek de toekomst van werkplekken
16 October 2024
Opbrengsteigendom: een slim pad naar passief inkomen en vermogensgroei
09 September 2024