Nieuw
Budgetvriendelijke kantoren te huur vlakbij E17 in Gentbrugge
€ 2.868,75
Een pand van CD-Vastgoed bv
Overzicht
- 405 m² bewoonbaar
- 405 m² grond
- 2 Toilet(ten)
Beschrijving
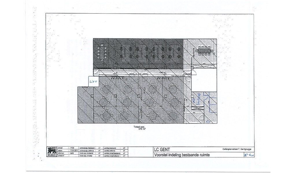
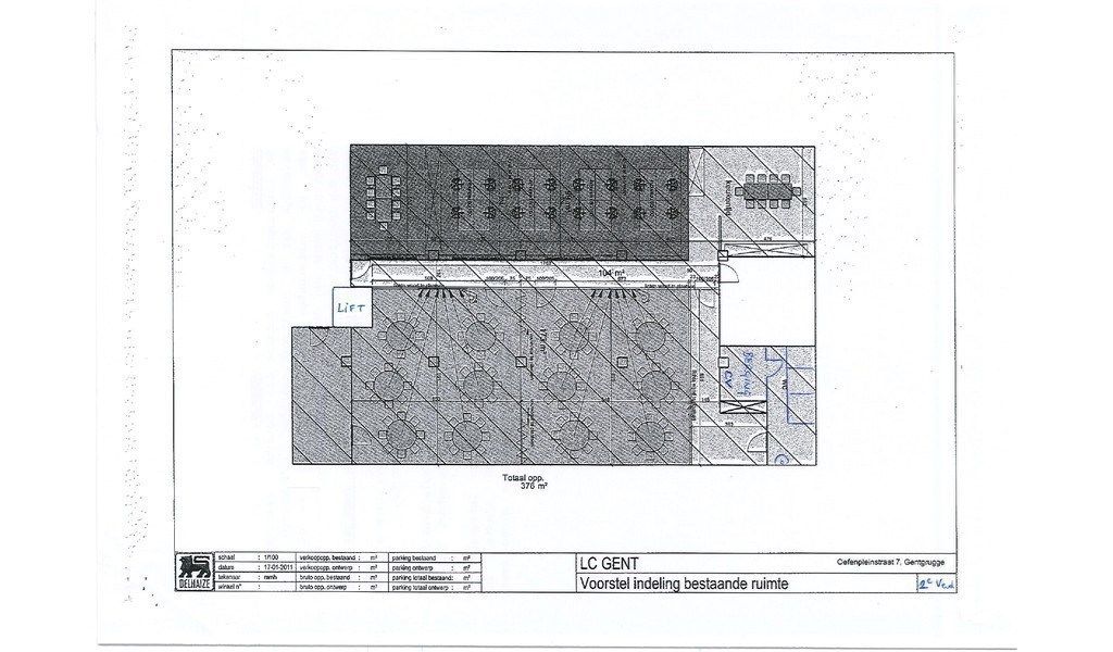
405m² kantoorruimte op 2e verdieping met ruime parking
Ligging: vlakbij E17; openbaar vervoer op wandelafstand
Indeling: 2 grote landscape ruimtes + 1 aparte ruimte + vergaderzaal + kitchenette + privatief sanitair H/D
Specificaties: aluminium schrijnwerk met dubbel glas, opengaande ramen, verlaagd tegelplafond met inbouw tl-armaturen, verhoogde vloer met tapijttegels, vloercontactdozen, cv op aardgas, airco, brand- en inbraakalarm, telenetaansluiting, lift, mogelijkheid tot publiciteit op totem, ruime gemeenschappelijke parking
Meer info of een bezoek inplannen? Contacteer Christoph 09/243 41 83
Ligging: vlakbij E17; openbaar vervoer op wandelafstand
Indeling: 2 grote landscape ruimtes + 1 aparte ruimte + vergaderzaal + kitchenette + privatief sanitair H/D
Specificaties: aluminium schrijnwerk met dubbel glas, opengaande ramen, verlaagd tegelplafond met inbouw tl-armaturen, verhoogde vloer met tapijttegels, vloercontactdozen, cv op aardgas, airco, brand- en inbraakalarm, telenetaansluiting, lift, mogelijkheid tot publiciteit op totem, ruime gemeenschappelijke parking
Meer info of een bezoek inplannen? Contacteer Christoph 09/243 41 83
Energie
- EPC Certificaat: 6530518-NR-1
- Verwarming: Gas
- Beglazing: Standaard dubbel
Op de kaart

Financieel
| Prijs | |
|---|---|
| Maandelijkse kosten | € 0 |
| Kadastraal inkomen (niet geïndexeerd) | € 0 |
| Kadastraal inkomen (geïndexeerd) | € 0 |
Bijkomende info
Gebouw
| Staat | Goed onderhouden |
|---|---|
| Is beschermd | Nee |
| Bewoonbaar (m²) | 405 |
| Verdieping | 2 |
| Verdiepingen | 3 |
| Keukens | 1 |
| Kantoorruimtes | 4 |
| Toiletten | 2 |
Ruimtes
| Keuken | 15 m² |
|---|
Faciliteiten
| Materiaal ramenomlijstingen | Aluminium |
|---|---|
| Beglazing | Standaard dubbel |
| Luiken | Nee |
| Brandstof primaire verwarming | Gas |
| Warm water type | Geen verwarming |
Perceel
| Overstromingsgevoelig | Geen |
|---|---|
| P-score | A |
| G-score | A |
| Totale oppervlakte (m²) | 405 |
| Bebouwde oppervlakte (m²) | 405 |
Vergunning
| Vergunning | Vergunning beschikbaar |
|---|
Uitrusting
| Meerdere eigenaars | Nee |
|---|---|
| Geschikt als kangoeroewoning | Nee |
| Geschikt voor rolstoelgebruikers | Nee |
| Geschikt voor praktijk | Ja |
| Volledig onderkelderd | Nee |
| Parking | Nee |
| Garage | Nee |
| Thuiskantoor | Ja |
| Kelder | Nee |
| Zolder | Nee |
| Opslagruimte | Nee |
| Tuin | Nee |
| Terras | Nee |
| Lift | Ja |
| Rioolaansluiting | Ja |
| Gasaansluiting | Ja |
| Wateraansluiting | Ja |
| Elektriciteitsaansluiting | Ja |
| TV aansluiting | Nee |
| Internetaansluiting | Ja |
| Zonnepanelen | Nee |
| Zonneboiler | Nee |
| Alarm | Ja |
| Zwembad | Nee |
| Jacuzzi | Nee |
| Toonzaal | Nee |
| Ventilatie | Nee |
Appartementsblok
| Aantal verdiepingen | 3 |
|---|---|
| Lift | Ja |
| Intercom | Ja |
Een pand van
CD-Vastgoed bv
Bedrijfsvastgoed voor de ondernemer en investeerder in Antwerpen en Oost-Vlaanderen
Kantoren, magazijnen, winkels, bouwgronden: CD-Vastgoed richt zich uitsluitend op het verkopen en verhuren van bedrijfsvastgoed. We weten waar kmo’s naar op zoek zijn. In elke fase van uw groei zorgen we ervoor dat het vinden van het geschikte vastgoed alvast één zorg minder is.
K-0931
Leer meer over vastgoed
05 November 2024
Bedrijfsvastgoed in transitie: ontdek de toekomst van werkplekken
16 October 2024
Opbrengsteigendom: een slim pad naar passief inkomen en vermogensgroei
09 September 2024
Tijdelijk vastgoed: flexibele oplossingen voor een dynamische markt
12 August 2024