Stijlvolle nieuwbouwkantoren langsheen de Kortrijksesteenweg aan de op- en afrit van de E40 en R4.
€ 8.182,75 (+€ 534)
Een pand van CEUSTERS
Overzicht
- 561.1 m² bewoonbaar
Beschrijving
Nieuwe kantorenontwikkeling met een strategisch ligging langsheen de Kortrijksesteenweg, een van de belangrijkste invalswegen naar Gent.
Zowel Brussel als Antwerpen zijn vlot bereikbaar. Het gebouw situeert zich dan ook vlak aan de op- en afrit van de E40 en R4.
Op het gelijkvloers heeft Bioplanet en Bike Republic zijn intrek genomen, de bovenliggende verdiepen zijn voor kantoren.
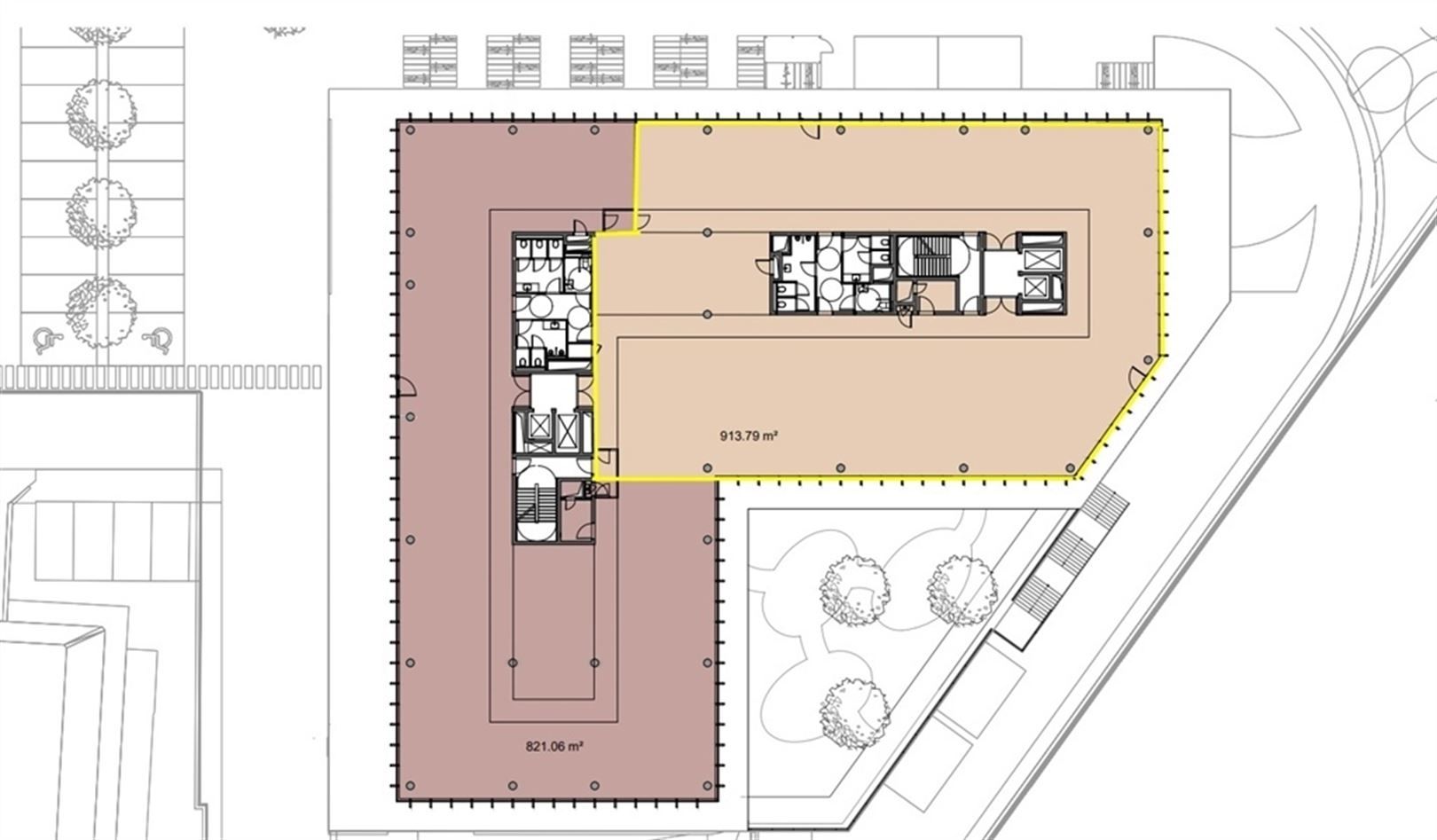
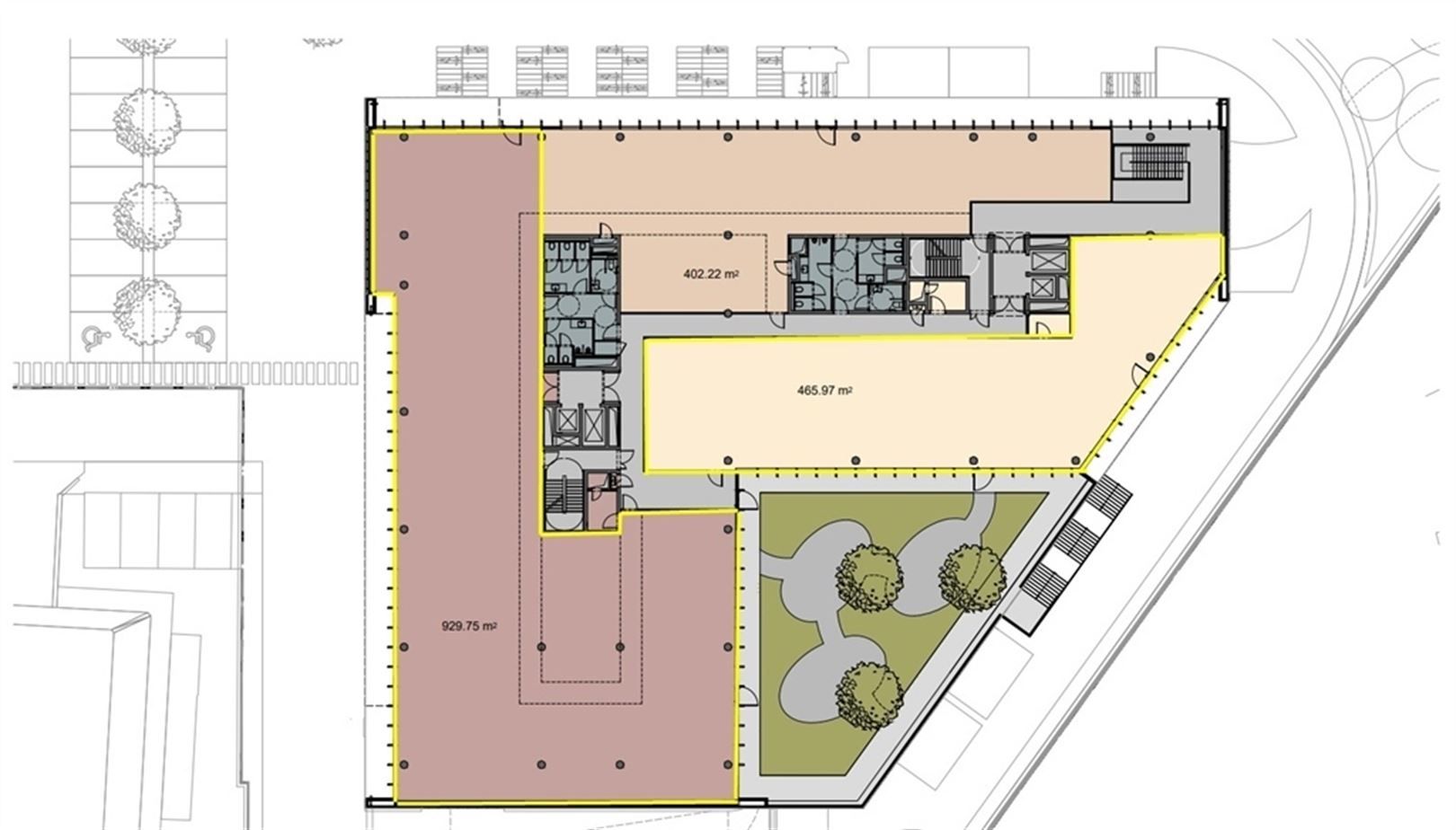
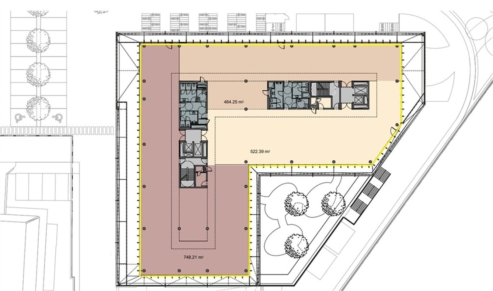
Mogelijkheid tot huren per plateau/kleinere units (vanaf ca. 400m²) naargelang uw noden en volgens beschikbaarheid.
De ruimtes worden instapklaar afgewerkt.
Een gemeenschappelijke daktuin op de eerste verdieping alsook een dakterras staan ter beschikking van de huurders.
Ondergrondse parking op -1 en -2 (Parkeerratio 1/45), daarnaast zijn er ook goede verbindingen met het openbaar vervoer .
Zo biedt Tramlijn 1 een zeer vlotte en snelle verbinding naar het Sint-Pietersstation in Gent en het centrum van de stad. Ook is er een rechtstreekse fietsverbinding van het treinstation Gent Sint-Pieters naar de site van The Loop.
Douches met lockers voorzien alsook een droogkamer voor natte sportkledij.
De commerciële gelijkvloers en bovenliggende vier verdiepingen kantoorruimte zijn opgetrokken in een esthetische architectuur in combinatie met kwaliteitsvolle materialen.
Huurprijzen zijn exclusief 21% BTW.
Energie
![]() |
- EPC Certificaat: 44021-G-DBA_2017021480/EP16647/A001/D01/SD001
- E-peil: E0
- Beglazing: Onbekend
Op de kaart

Financieel
| Prijs | |
|---|---|
| Maandelijkse kosten | € 534 |
| Kadastraal inkomen (niet geïndexeerd) | € 0 |
| Kadastraal inkomen (geïndexeerd) | € 0 |
Bijkomende info
Gebouw
| Bouwcertificaat | Nee |
|---|---|
| Bewoonbaar (m²) | 561.1 |
| Verdieping | 0 |
| Badkamers | 0 |
| Slaapkamers | 0 |
| Verdiepingen | 0 |
| Garages | 0 |
| Parkeerplaatsen | 0 |
| Doucheruimtes | 0 |
| Toiletten | 0 |
Faciliteiten
| Elektrisch keuringsattest | Ja |
|---|
Perceel
| Overstromingsgevoelig | Geen |
|---|---|
| Voorkeurrecht | Nee |
| Bebouwde oppervlakte (m²) | 0 |
| Tuin oppervlakte (m²) | 0 |
| Oppervlakte terras (m²) | 0 |
Vergunning
| Vergunning | Vergunning beschikbaar |
|---|---|
| Verkavelingsvergunning | Geen beschikbaar |
| Type gebied | Stedelijk |
Uitrusting
| Investeringspand | Nee |
|---|---|
| Geschikt voor praktijk | Nee |
| Parking | Nee |
| Garage | Nee |
| Thuiskantoor | Nee |
| Kelder | Nee |
| Zolder | Nee |
| Tuin | Nee |
| Terras | Nee |
| Lift | Nee |
| Rioolaansluiting | Ja |
| Gasaansluiting | Ja |
| Wateraansluiting | Ja |
| Elektriciteitsaansluiting | Ja |
| TV aansluiting | Ja |
| Internetaansluiting | Ja |
| Telefoonaansluiting | Ja |
Appartementsblok
| Naam residentie | MG SQUARE |
|---|---|
| Lift | Nee |
