Kantoren in nieuwbouwproject Ouverture lansgheen Kortrijksesteenweg
Een pand van CEUSTERS
Overzicht
- 400 m² bewoonbaar
Beschrijving
Ouverture is een nieuwbouwproject, strategisch gelegen langs de E40 met uitzicht op het iconische KBC-gebouw. Dit multifunctionele en duurzame project beschikt over een BREEAM Excellent-certificaat en is meer dan een gebouw: het is een herkenningspunt. Met kantoren, retail, horeca en andere voorzieningen biedt Ouverture alles voor een moderne en efficiënte werkomgeving. Dankzij de toplocatie hebben uw team en klanten directe toegang tot de snelweg, terwijl de bruisende omgeving samenwerking en netwerken moeiteloos stimuleert.
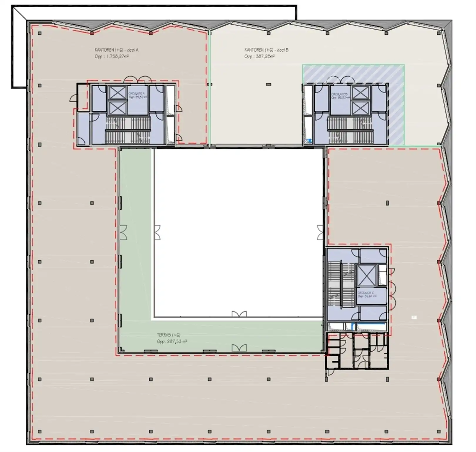
Op het gelijkvloers en de eerste verdieping vindt u een ruime retailzone. Daarboven bevinden zich twee parkeerniveaus, een dubbele verdiepingshoogte gewijd aan sportfaciliteiten en een cafetaria, gevolgd door vier kantoorverdiepingen. Deze kantoren kijken uit op een verhoogd groen patio, die bescherming biedt tegen wind en geluid. Ondergronds zijn nog twee extra parkeerniveaus voorzien. Het volledige gebouw is toegankelijk via een royale inkomhal met directe toegang tot alle verdiepingen.
De buitenruimtes bieden een groene en rustige omgeving, ideaal voor informele vergaderingen, ontspanning of zakelijke evenementen.
Onder Ouverture bevinden zich vier niveaus beveiligde ondergrondse parking met 400 plaatsen (parkeerratio 1/30). Het gebouw beschikt over laadstations, een afgesloten en veilige fietsenstalling, en op het gelijkvloers praktische douche- en droogruimtes.
Kantoorruimte: 9.660 m² verdeeld over 4 verdiepingen, beschikbaar vanaf ca. 400 m². De bruto-oppervlakte per verdieping varieert tussen 2.000 m² en 3.000 m².
- Kantoren worden landscape afgewerkt
- Privatief terras per kantoor
Gemeenschappelijke lasten en openbaar vervoer: ten laste van de huurders
Beschikbaarheid: Onmiddellijk
Belangrijkste troeven:
- Strategische ligging langs de E40
- Duurzaam met BREEAM Excellent-certificaat
- Ruime ondergrondse parking (400 plaatsen, parkeerratio 1/30)
- Privatief terras per kantoor
Energie
- E-peil: E0
- Beglazing: Onbekend
Op de kaart

Financieel
| Prijs | |
|---|---|
| Maandelijkse kosten | € 0 |
| Kadastraal inkomen (niet geïndexeerd) | € 0 |
| Kadastraal inkomen (geïndexeerd) | € 0 |
Bijkomende info
Gebouw
| Bouwcertificaat | Ja |
|---|---|
| Bewoonbaar (m²) | 400 |
| Verdieping | 0 |
| Badkamers | 0 |
| Slaapkamers | 0 |
| Verdiepingen | 0 |
| Garages | 0 |
| Parkeerplaatsen | 0 |
| Doucheruimtes | 0 |
| Toiletten | 0 |
Faciliteiten
| Elektrisch keuringsattest | Ja |
|---|
Perceel
| Overstromingsgevoelig | Geen |
|---|---|
| Voorkeurrecht | Nee |
| Bebouwde oppervlakte (m²) | 0 |
| Tuin oppervlakte (m²) | 0 |
| Oppervlakte terras (m²) | 0 |
Vergunning
| Vergunning | Vergunning beschikbaar |
|---|
Uitrusting
| Investeringspand | Nee |
|---|---|
| Geschikt voor praktijk | Nee |
| Parking | Nee |
| Garage | Nee |
| Thuiskantoor | Nee |
| Kelder | Nee |
| Zolder | Nee |
| Tuin | Nee |
| Terras | Nee |
| Lift | Nee |
| Rioolaansluiting | Ja |
| Gasaansluiting | Ja |
| Wateraansluiting | Ja |
| Elektriciteitsaansluiting | Ja |
| TV aansluiting | Ja |
| Internetaansluiting | Ja |
| Telefoonaansluiting | Ja |
Appartementsblok
| Naam residentie | OUVERTURE |
|---|---|
| Lift | Nee |